JOIN BLT AWARDS 2026

 

CO00

  • Prize
    Winner in Interior Design - Commercial Interior Design
  • Design Company
    Arshia Architects
  • Lead Designer
    Arshia Mahmoodi
  • Design Team
    Xinlei Li, Julia Kravtsova, Ruby Wu
  • Architecture Firm
    Arshia Architects
  • Interior Designer
    Arshia Mahmoodi
  • Construction Company
    PWC Companies
  • Project Location
    1500 Cornerside Blvd, Tysons, VA 22182
  • Project Date
    April, 2020

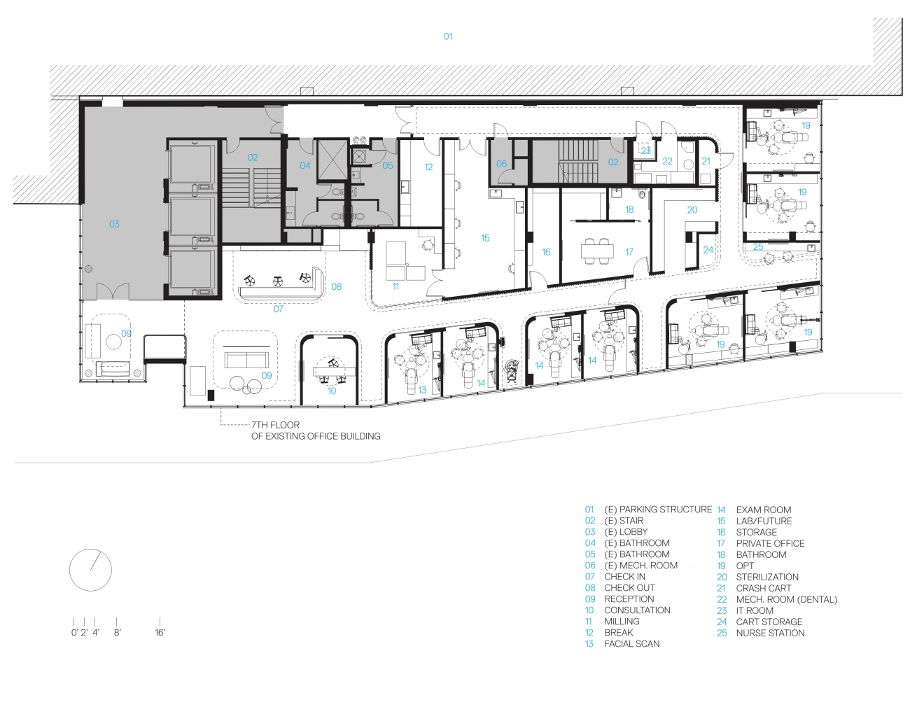
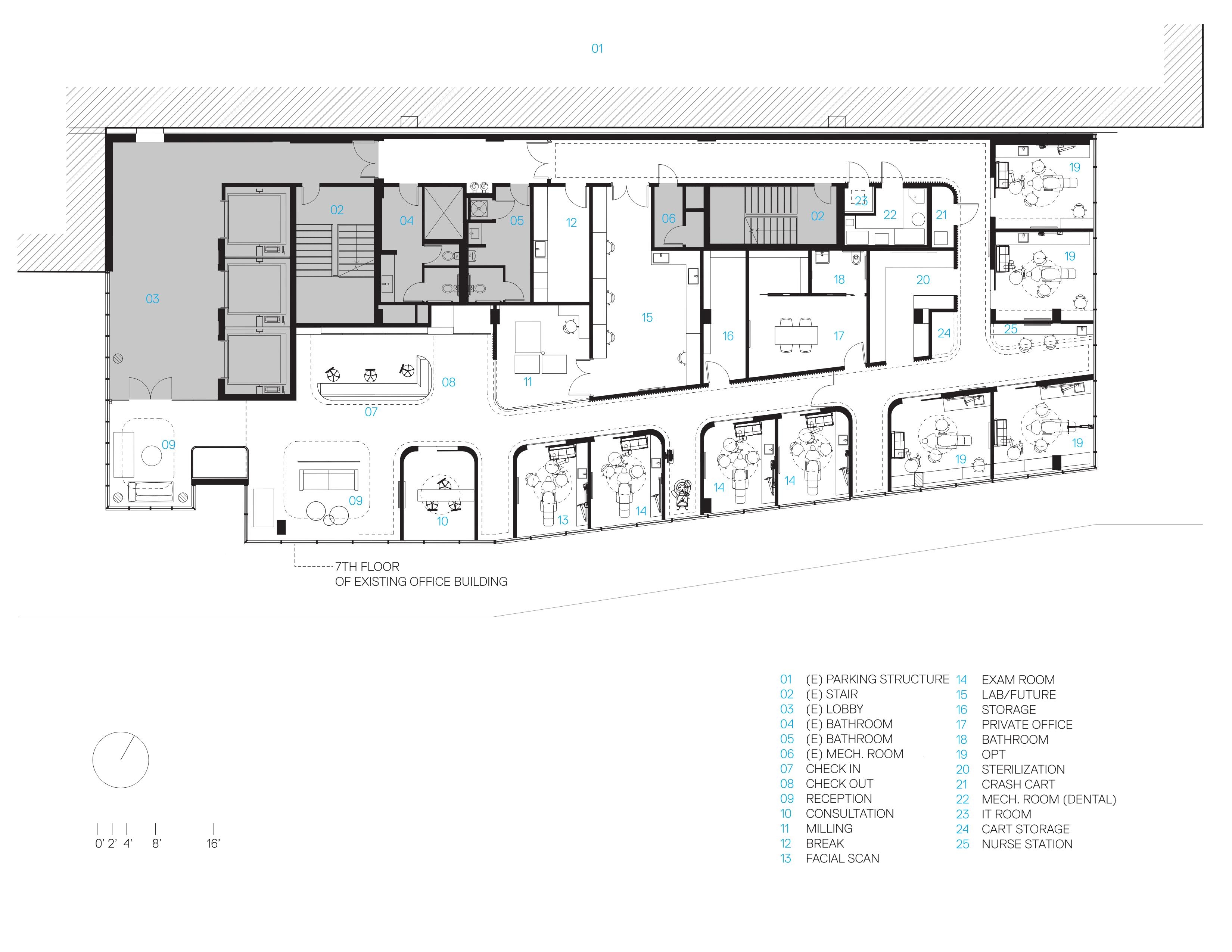
The balance between utility and beauty is the driving factor behind this project. To create a streamlined yet expansive healing space, the concept incorporates psychological care for the patients and relieves any anxiety that is associated with a typical surgical facility through a carefully designed interior environment.
An urban design approach at a much smaller scale was employed in this project. The Clinic Promenade was remodeled and re-examined for its importance as a counterpoint to the substantial offices. Groupings of the clinic's programs were based on the promenade's sequence of experiences. In the reception area, guests may get a glimpse of the whole operation and the clinic's vision for health thanks to soft walls, informal furniture layout and indoor greenery. Intersections between office peninsulas were added to enliven the promenade and to separate surgical areas for improved sound isolation. Corridors were also used to their fullest potential in every way imaginable. The nurse station, sterilizing room, crash cart room, and dental cart parking are all located at the corner of the promenade, creating supplementary common areas that break up the linear experience.




BLT Built Design Awards 2026
Privacy Overview

This website uses cookies so that we can provide you with the best user experience possible. Cookie information is stored in your browser and performs functions such as recognising you when you return to our website and helping our team to understand which sections of the website you find most interesting and useful.