JOIN BLT AWARDS 2026

 

XC273 by XCOMMONS

  • Prize
    Winner in Architectural Design - Restoration and Renovation
  • Design Company
    dongqi Design
  • Lead Designer
    JIANG Nan
  • Design Team
    Edoardo Nieri, Weijing He, Danyi Zhang, Ning Wang, Hardy Huang
  • Architecture Firm
    dongqi Design
  • Photo Credit
    Raitt Liu
  • Project Location
    Shanghai, China
  • Project Date
    Feb 2022

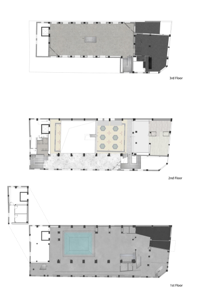
Situated in the heart of Shanghai city, the three-story old factory that we was commissioned to renovate presents itself as a historical ruin where the raw structure was truly exposed in all its magnificent. Conscious of this beauty, we developed its own approach that enhances the peculiar characteristics of the building by creating a contrast between the old and new finish materials for this new fashion and art hub that is going to break the rules of the retail experience. We keep all the differences of the space and show the history of the building so that people walking in could feel that the boundaries between the past and the present are completely blurred, as if they had walked into a timeless space.




BLT Built Design Awards 2026
Privacy Overview

This website uses cookies so that we can provide you with the best user experience possible. Cookie information is stored in your browser and performs functions such as recognising you when you return to our website and helping our team to understand which sections of the website you find most interesting and useful.