JOIN BLT AWARDS 2026

 

Villa Sjöviken

  • Prize
    Winner in Architectural Design - Residential
  • Design Company
    Jenni Reuter Architects
  • Lead Designer
    Jenni Reuter
  • Architecture Firm
    Jenni Reuter Architects
  • Interior Designer
    Jenni Reuter Architects
  • Photo Credit
    Marc Goodwin and Juha Ilonen
  • Project Location
    Kemiö island
  • Client
    Private
  • Project Date
    1.7.2022

Villa Sjöviken

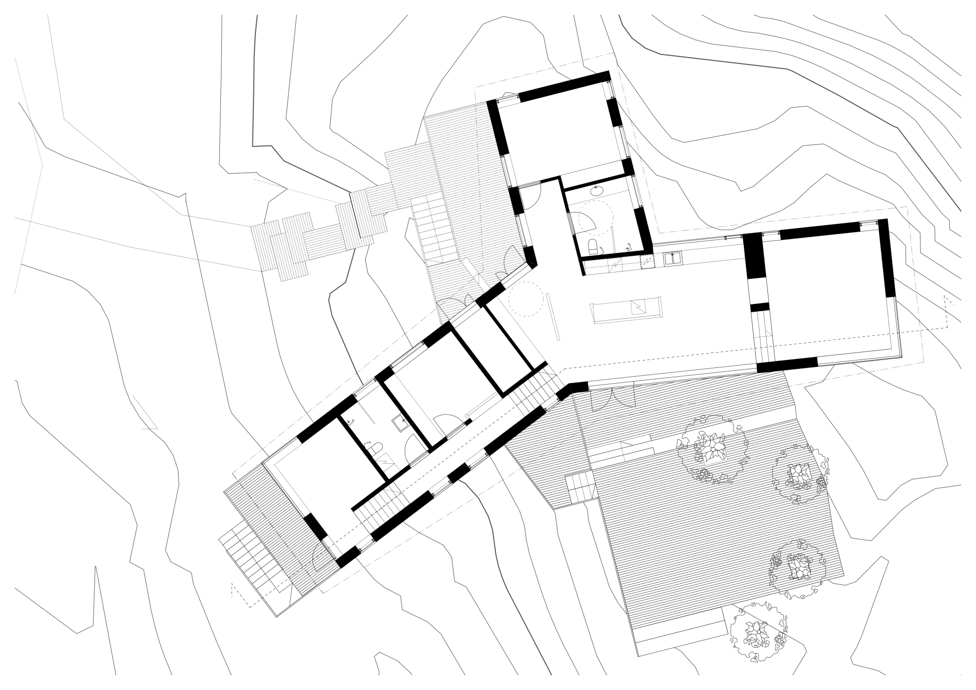
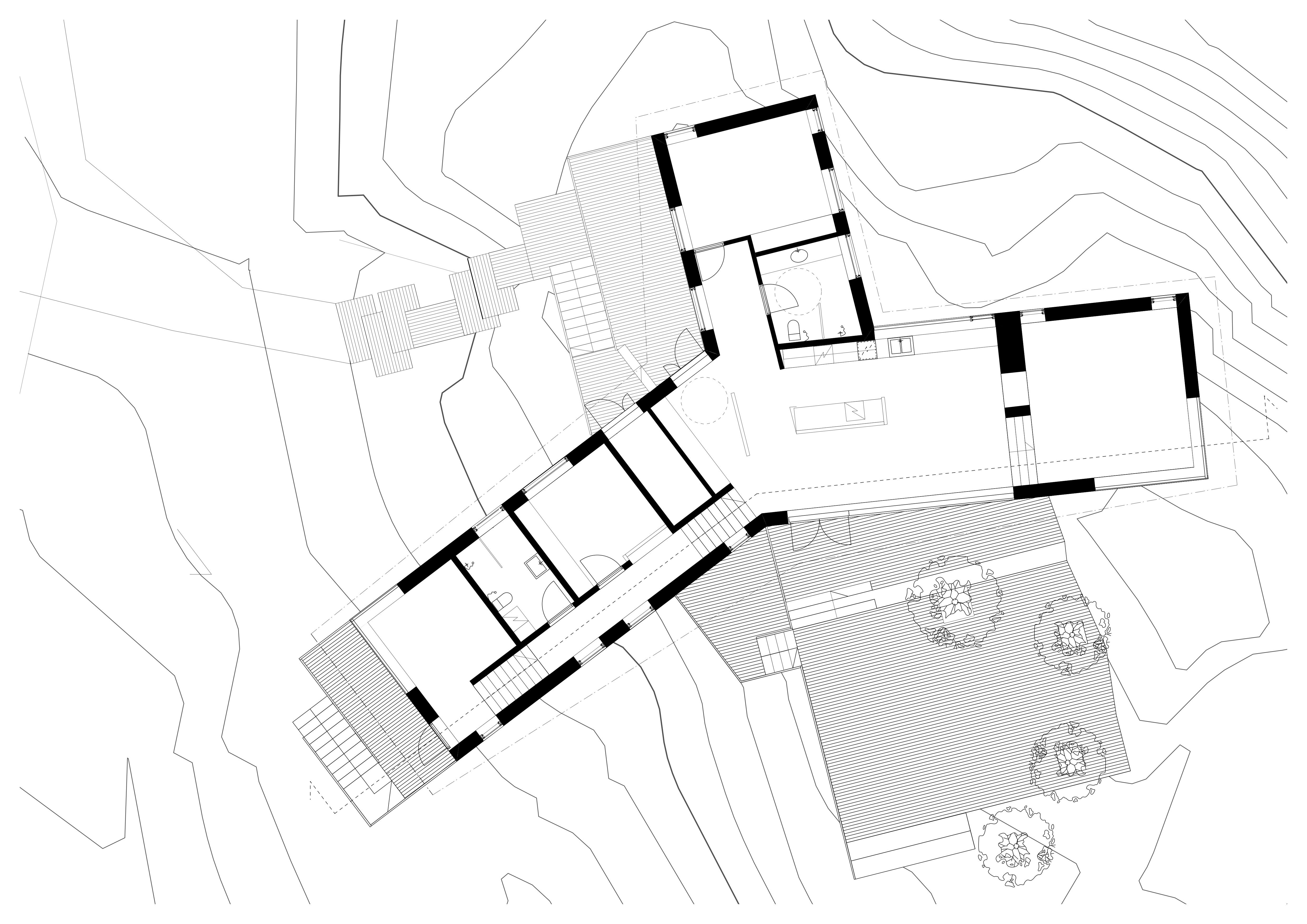
Villa Sjöviken is a one-family house on the Kemiö island in Southern Finland. The steep site inspired to design a building on several levels adjusted to the fragile archipelago nature.

The site is approached through the forest and the sea view is experienced only after entering the house. The heart of the house is the see-through fireplace, surrounded by an open kitchen, dining and living area. From the core of the building there are views to four directions. The bedroom, bath and study rooms are located more privately in their own wings, with their own framed views and soundscapes. The building has only one “floor” with over four meters from the lowest floor level to the highest. This creates a strong bodily experience when moving through the spaces.

The wooden building has been crafted to sit in the topography with the façade cladding adjusted to follow the rock surface. The interior has a limited, calm material palette and views to the surrounding nature in the main focus.

Bio
Jenni Reuter (b. 1972) is Associate Professor in Architectural Principles and Theory at Aalto University in Helsinki, Finland.

She also works as a practising architect, both in her own office and together with architects Saija Hollmén and Helena Sandman. Their works have been honoured with both national and international awards and have been published and exhibited widely, among others at the Venice Art biennale and the Venice Architecture biennale several times.

Other prizes
2022 Architecture of Necessity international award (Hollmén Reuter Sandman, HRS) 2020 Teaching Award presented by Aalto University School of Arts, Design and Architecture 2017 Teacher of the Year (elected by students), Department of Architecture, Aalto University, School of Art, Design and Architecture 2017 Nomination for the Barbara Cappochin Prize for the KWIECO Shelter House (HRS) 2017 Finnish Cultural Foundation Award 2016 Best Humanitarian of the Year award, presented by DK Nordic Award/EOAW to Ukumbi NGO (HRS) 2016 Nominated by the Architectural Review for the Moira Gemmill Prize (HRS) 2014 Finnish representative in the Golden Cubes Awards for architecture and children interdisciplinary course arranged by the Aalto University in Annantalo in Helsinki, Finland 2014 HRS nominated for the BSI Swiss Architectural Award 2014 2012 Asko Avonius-prize (HRS) 2011 HRS nominated for the Iakhov Chernikov international prize 2009 Finnish State award for arts to Ukumbi NGO 2009 The Kordelin Prize (HRS) 2008 Holcim Foundation Acknoledgement Award for Sustainable Architecture (HRS) 2008 The Most Beautiful Book of the year award for the book MAISON LOUIS CARRÉ in the Alvar Aalto monograph series. Graphic design for the series made by Jenni Reuter and the book by Teppo Järvinen. 2005 The Most Beautiful Book of the year award for the graphic design of the book Italia la bella – Arkitekterna Hilding och Eva Ekelunds resedagbok 1921-1922 (JR) 2004 Nomination for the Aga Khan Award for Architecture (HRS) 2003 Bauwelt Prize for the Women’s Centre in Senegal (HRS) 2003 Special commendation in Young Architect of the Year Award 2003, Corus and Building Design (HRS) 2002-03 One-year artist grant, Swedish Cultural Fund in Finland 2002 Pietilä Award, Building Information Foundation RTS, Finland (HRS) 2002 Highly commended for the ar+d award. Emerging Architect competition organised by Architectural Review and d-line (HRS)


BLT Built Design Awards 2026
Privacy Overview

This website uses cookies so that we can provide you with the best user experience possible. Cookie information is stored in your browser and performs functions such as recognising you when you return to our website and helping our team to understand which sections of the website you find most interesting and useful.