JOIN BLT AWARDS 2026

 

House Nordlicht

  • Prize
    Winner in Architectural Design - Residential
  • Design Company
    FACE2050
  • Lead Designer
    Florian Schätz
  • Design Team
    Astrid Mayadinta
  • Architecture Firm
    Büro Florian Schätz
  • Interior Designer
    Büro Florian Schätz
  • Construction Company
    F. Wimmer Baugeschäft und Zimmerei GmbH
  • Photo Credit
    Rainer Taepper
  • Project Location
    Waldkirchen, Bavaria,Germany
  • Client
    Friederike und Sten
  • Project Date
    2021

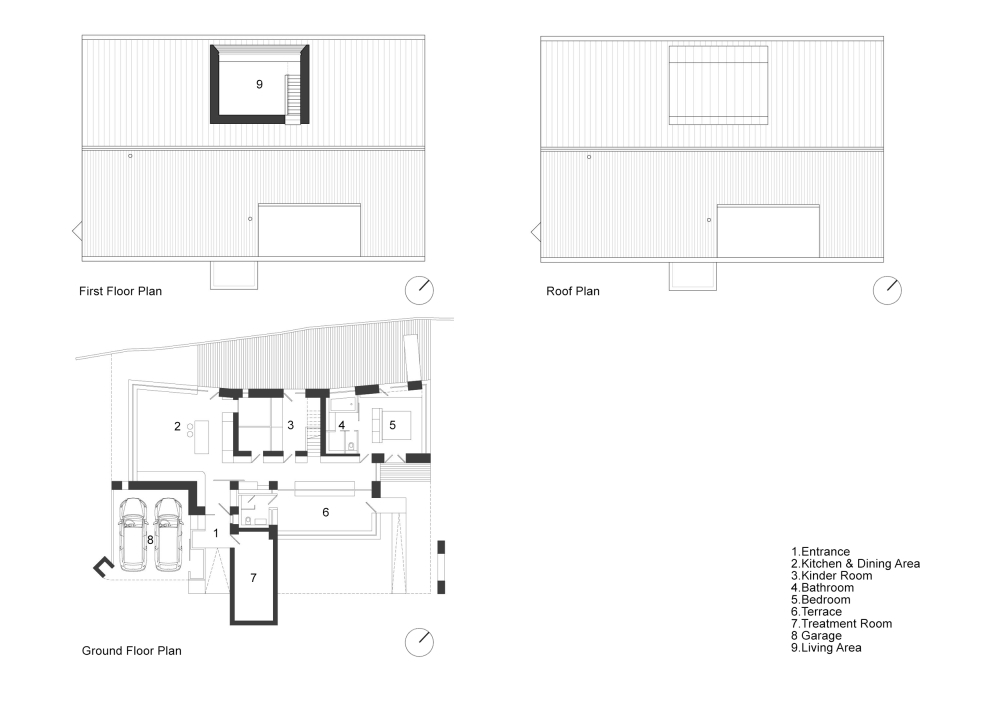
A stonemason and his wife wanted a new home that was seamless, sculptural and surrounded by nature.

Like a boulder, the sculptural cast of fair-faced concrete sits on a gentle rolling hill. The pitched roof cantilevers against the sloping landscape backdrop and frames the views of the near Bavarian National Park.

The monolithic structure follows the formal principles of curating space and framing the surrounding landscape through solid and void. The modern interpretation of vernacular architecture of the region, a single-storey volume with an extensive overhanging roof that withstands the harsh winter and hot temperature in summer, becomes an inhabitable seamless sculpture cast in concrete. Rooflines, concrete structures, and void spaces craft high rooms with wide openings. A massive dormer offering magnificent views to the West sets a striking accent.

60cm walls of thermal insulated lightweight concrete create pure living athmosphere. Due to excellent thermal insulation with concrete aggregates of expanded clay and foam-glass, the House Nordlicht has an A-plus low energetic performance. The energy consumption of the bungalow is as low as 32 kWh/m2.

Bio
FACE2O5O IS AN AWARD WINNING GERMAN DESIGN CONSULTANCY. HAVING COMPLETED MORE THAN 12O CULTURAL, COMMERCIAL AND RESIDENTIAL PROJECTS, STUDIES AND COMMISSIONS, WE ARE PROVIDING FULL ARCHITECTURAL, PRODUCT AND DESIGN SERVICES FOR A WIDE RANGE OF CLIENTS IN THE GOVERNMENTAL AND PRIVATE SECTOR

Other prizes
Singapore President Design Awards Hong Kong Design Awards Architekturen Bayerische Architektenkammer A'Design Award




BLT Built Design Awards 2026
Privacy Overview

This website uses cookies so that we can provide you with the best user experience possible. Cookie information is stored in your browser and performs functions such as recognising you when you return to our website and helping our team to understand which sections of the website you find most interesting and useful.