JOIN BLT AWARDS 2026

 

Library of Lixia District

  • Prize
    Winner in Interior Design - Public Building
  • Design Company
    Vantree Design
  • Lead Designer
    Muchuan Xu, Minxi Cai, Shangzhao Yang
  • Design Team
    Zhongning Zhang, Guanbao Ye
  • Photo Credit
    Vantree Design
  • Project Location
    Jinan, Shandong Province
  • Client
    Lixia Holding Group
  • Project Date
    June, 2021

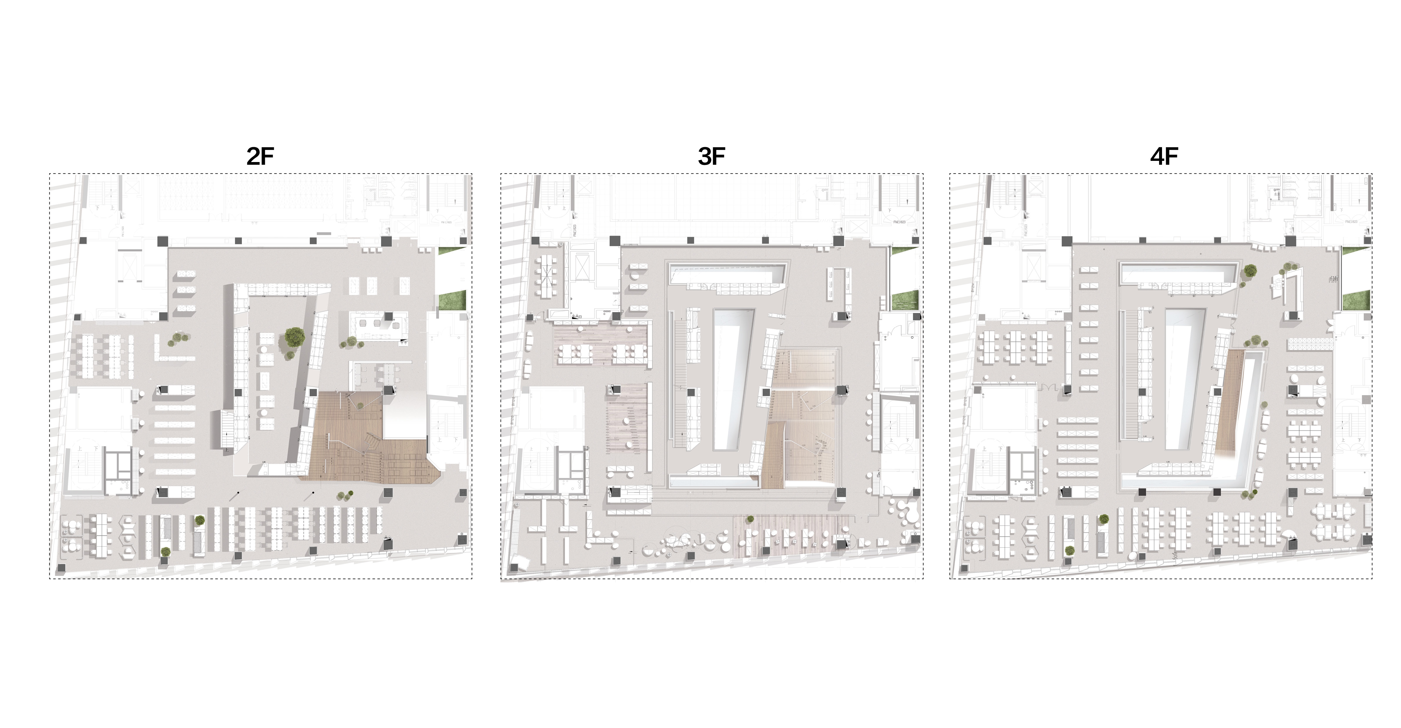
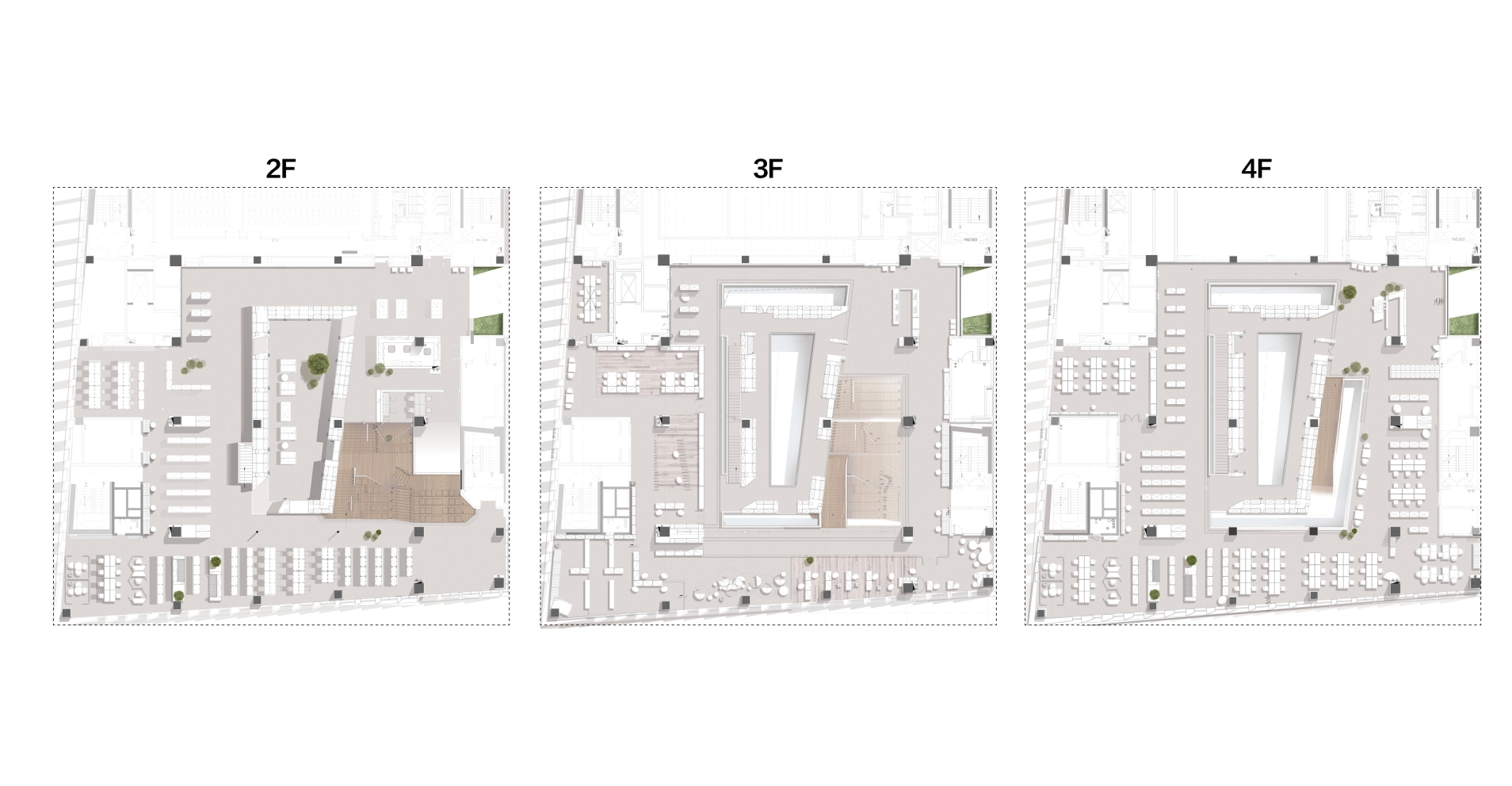
The project is located in Lixia District of Jinan, Shandong Province, surrounded by cultural, educational and creative commercial resources. As one of the eight venues of the cultural and archives center, the library occupies the 2nd to 4th floors on the southwest side of the center.
In the library block, we analyze and reconstruct the original situation to find pointcuts. After clarifying the overall optimization direction, through the analysis of the functions and structure of the traditional library, the functions and streamlines’ relationships among them were reorganized and constructed. At the same time, in response to the theme of "sharing" and the trend of the era, we started from people's perception and experience, optimized the sight relationship in the space, placed space nodes, added functional spaces, reorganized people's social behavior, and promoted the realization of "shared knowledge".




BLT Built Design Awards 2026
Privacy Overview

This website uses cookies so that we can provide you with the best user experience possible. Cookie information is stored in your browser and performs functions such as recognising you when you return to our website and helping our team to understand which sections of the website you find most interesting and useful.