JOIN BLT AWARDS 2026

 

Sushi Kamosu– A traditional Japanese Sushi-ya imagery built in modern commercial building

  • Prize
    Winner in Interior Design - Hospitality: Bar and Restaurant
  • Design Company
    in Him's Interior Design
  • Lead Designer
    Samuel Lam

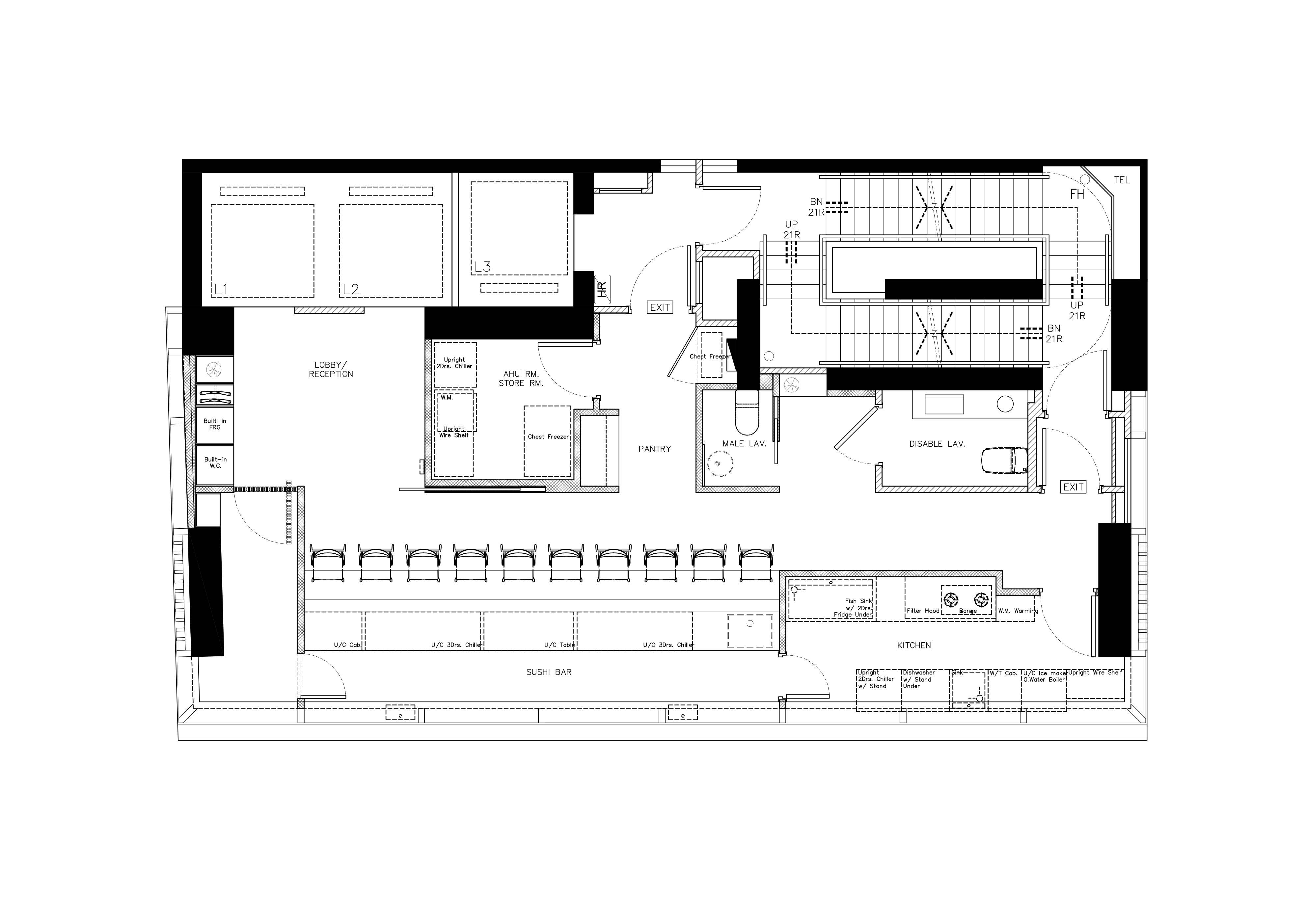
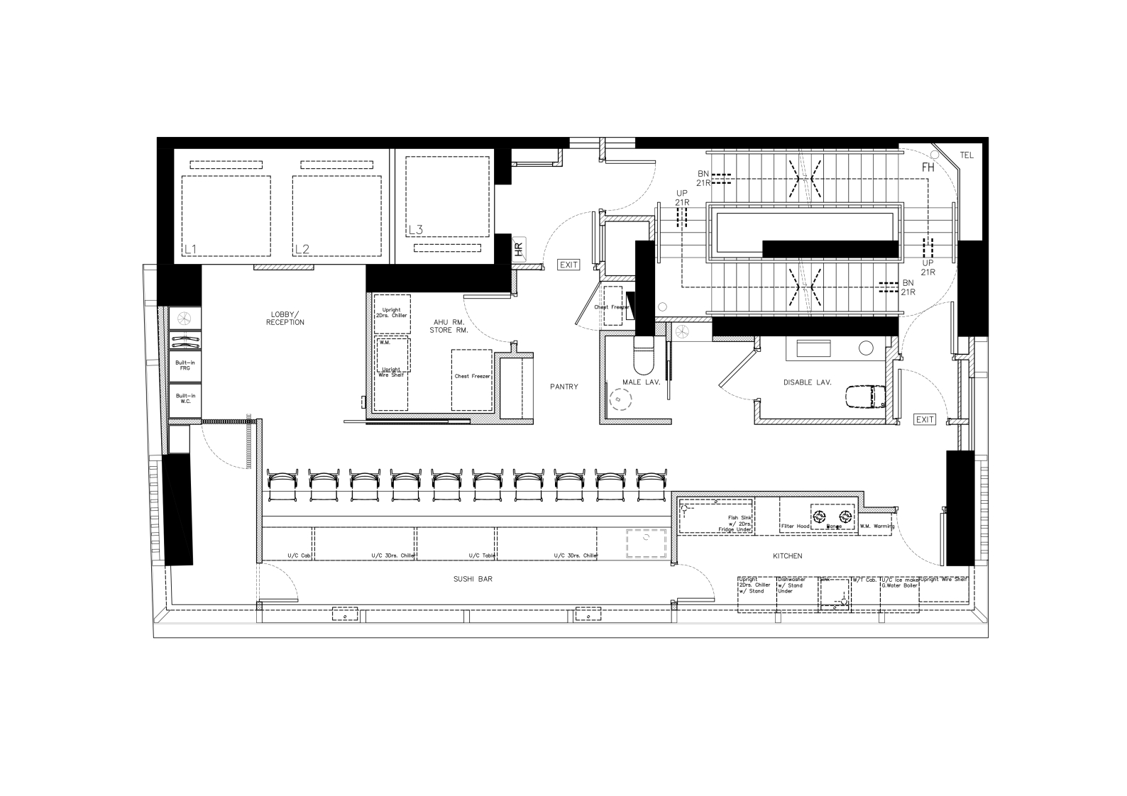
Sushi Kamosu is an Edomae Nigiri-Zushi Sushi-ya located on the 15th floor of a Hong Kong commercial building, the greatest challenge of this project is to express the Tradition, Spirit and Culture with design language and pass a Japanese Sushi-ya imagery to customer.

Pitched roof and Plaid sliding door being used in lobby, the first sight while steps out from the elevator, giving the Japanese traditional house-like vision, customers feel entering a different world and start to preparing on coming food experience. Monochrome is the main colour, with strong Japanese feature that adding modern feeling but aligning with whole theme of design. After passing the main door, typical Sushi-ya dinning area brings everyone to Japan locally and enjoy food there.

The main concept of this project is presenting a mix of traditional and modern, designer pays tribute to the Craftsmanship of Sushi Chef, who very focus on how to enhance and stimulate the best tasting experience based on the nature of food, which similar to designing industry how they come up the best design with different limitation in project.




BLT Built Design Awards 2026
Privacy Overview

This website uses cookies so that we can provide you with the best user experience possible. Cookie information is stored in your browser and performs functions such as recognising you when you return to our website and helping our team to understand which sections of the website you find most interesting and useful.