JOIN BLT AWARDS 2026

 

Brazilian Pavilion for Expo Osaka 2025

  • Prize
    Winner in Architectural Design - Cultural
  • Design Company
    Studio Mk27
  • Lead Designer
    Marcio Kogan, Renata Furlanetto
  • Design Team
    Marcelo Dantas and Tarsila Riso (art curators)
  • Architecture Firm
    Studio MK27
  • Interior Designer
    Diana Radomysler, Pedro Ribeiro (Studio mk27)
  • Photo Credit
    Blackhaus Studio (renderings)
  • Project Location
    Osaka, Japan
  • Client
    Apex
  • Project Date
    2025

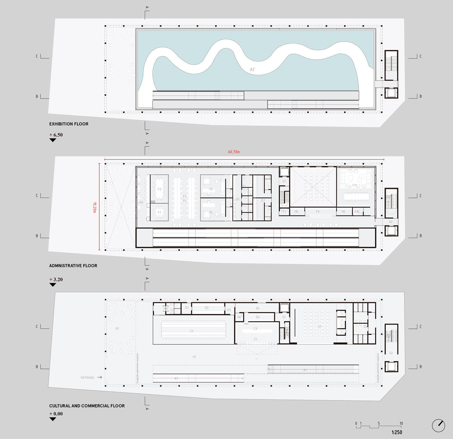
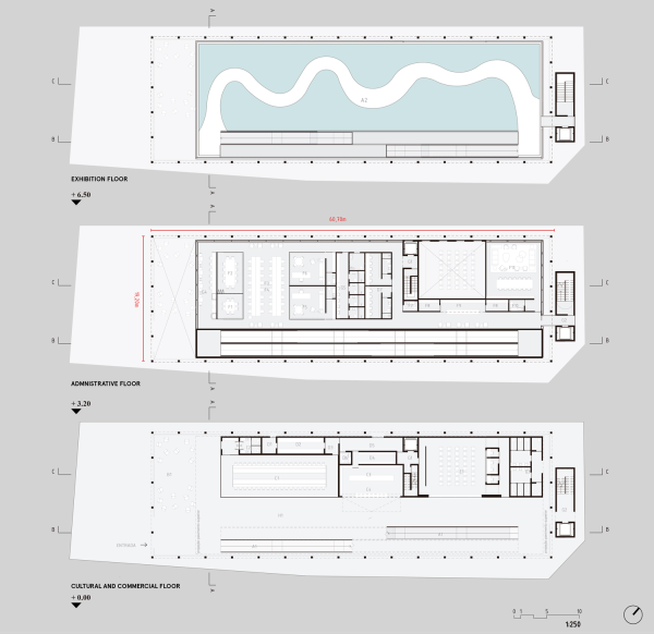
The Brazil pavilion projects a subtle shade over Osakan soil. Throughout its three floors, the pavilion approaches water as the source of life by means of the Flying Rivers: dense clouds filled with water that fly above Brazilian territory.
The volume stands as a canopy suspended by porticos that draws a memorable curve in the horizon. Within it, a solid central nucleus surrounded by a metallic curtain composed of a fluid weave that moves with the wind and serves as a screen to the outside world.
A fold in the curtain reveals the inside of the pavilion to the public. Inside this ample double height space permeated by fresh vapor, a hermetic volume hangs beneath a cloud, supported by two elements: a translucid box and a tunnel, reflective and profound.
The tunnel leads to the first immersive experience within the ramps that rise to the exhibition space above. On the rooftop, a sensory and immersive experience invites visitors for a walk on water: an artificial riverbed, over which the exhibition will be reflected. Beneath the canopy, a cloud of vapor forms, dense yet fleeting, as if it will pour the waters of the Amazon over Osakan soil.




BLT Built Design Awards 2026
Privacy Overview

This website uses cookies so that we can provide you with the best user experience possible. Cookie information is stored in your browser and performs functions such as recognising you when you return to our website and helping our team to understand which sections of the website you find most interesting and useful.