JOIN BLT AWARDS 2026

 

Gallery U/a

  • Prize
    Winner in Architectural Design - Small Architecture
  • Design Company
    Satoshi Okada Architects
  • Lead Designer
    Satoshi Okada
  • Architecture Firm
    Satoshi Okada architects
  • Construction Company
    Takahashi Kogyo
  • Photo Credit
    Satoshi Shigeta
  • Project Location
    Shizuoka Prefecture
  • Project Date
    7 April 2019
  • Project Link

It is a garage for storing supercars. It was a trial toward designing the most beautiful garage in the world today.
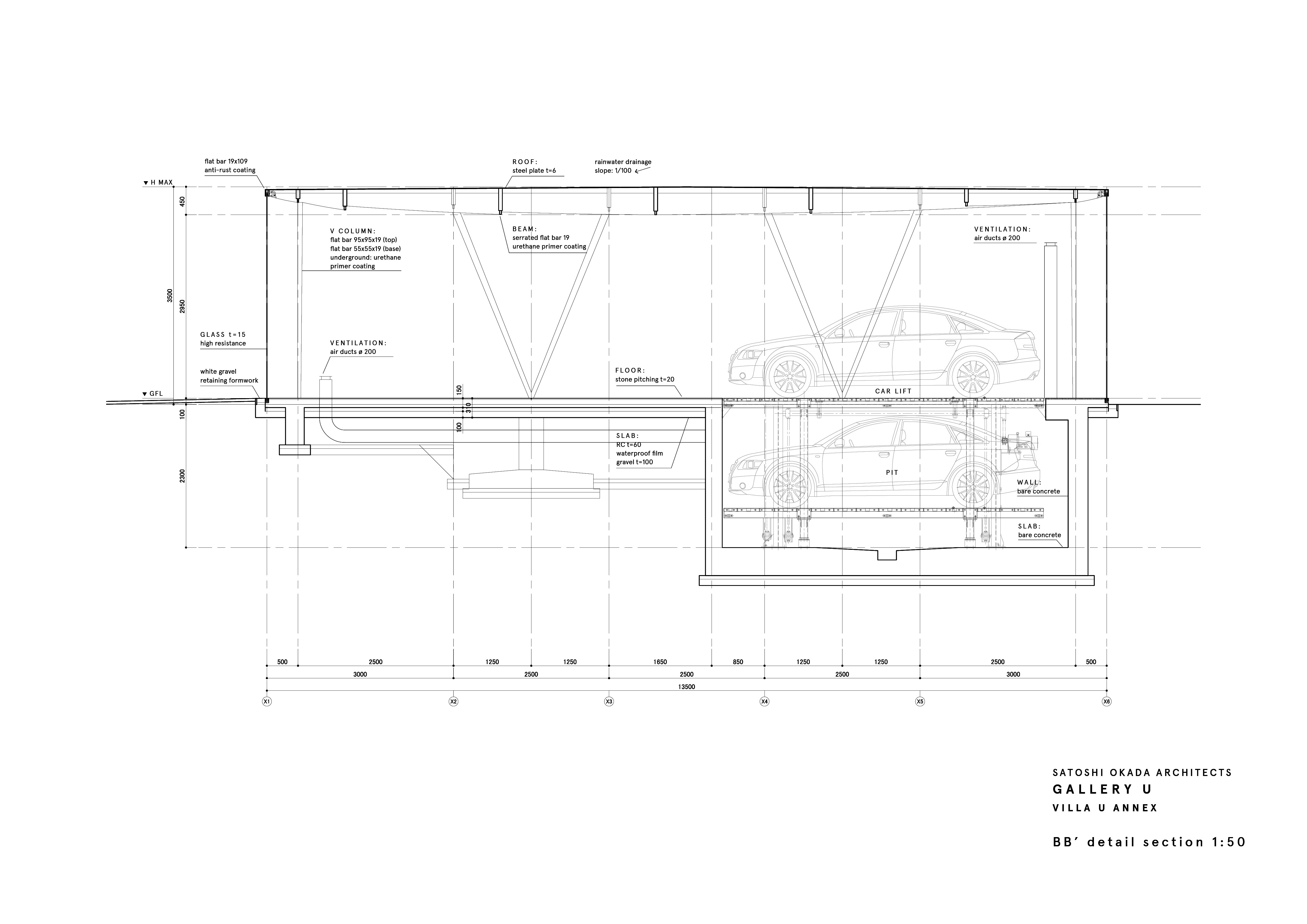
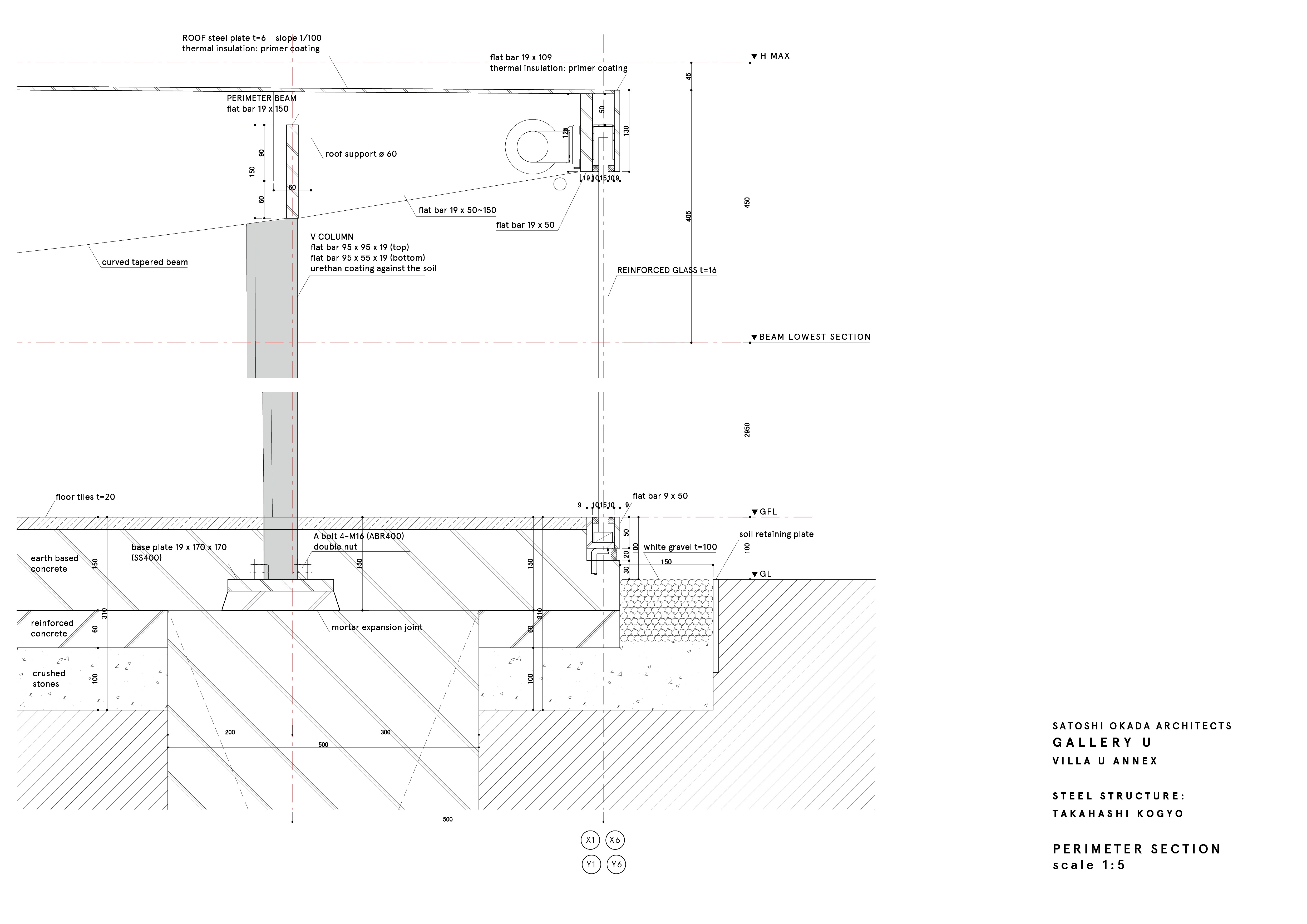
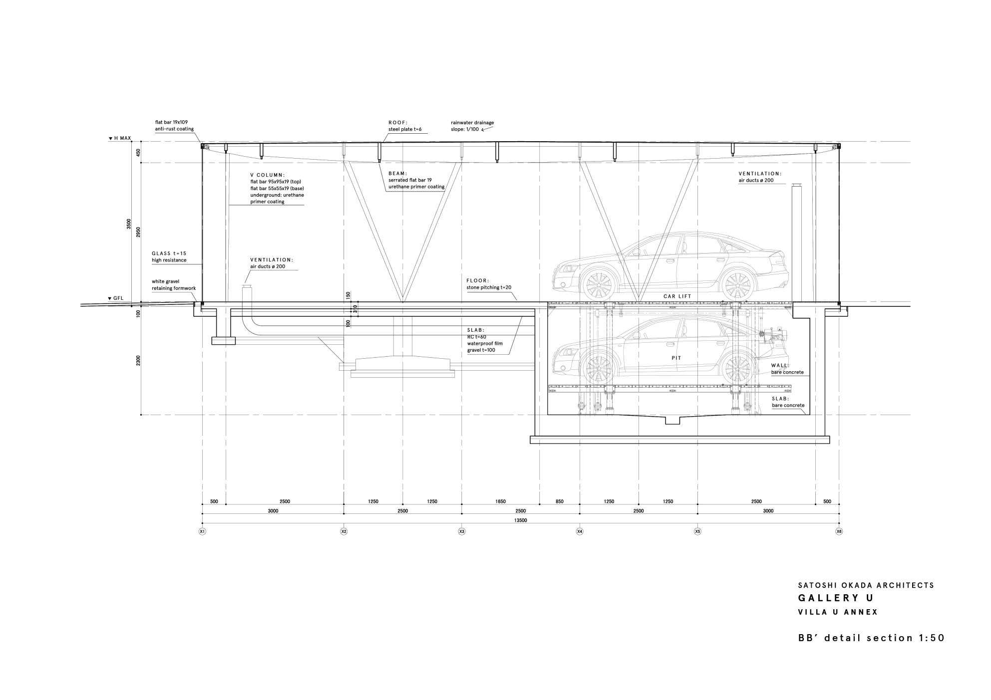
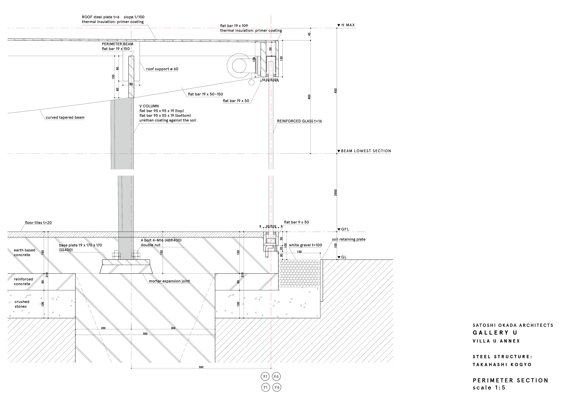
To make the beautiful cars brightly shining in the bamboo grove, it’d be preferable if the architecture were invisible. The flat cube, consisting of a 13.5 m square with a height of 3.5 m, is entirely glazed except the thin roof, constructed of an extremely light steel structure.
The structural design integrated two theories from history. One is the catenary curve, proposed by Father Carlo Lodoli in 18th century Venice, is applied to beams with a lattice pattern tapering toward edges. The other is the V-shaped column proposed by Viollet-le-Duc in 19th century Paris. The columns are narrowed toward the base to make them appear even slender.
Air conditioning system was designed with policy of using as least electricity as possible. 2 pipes - one is long, the other is short - are installed on the floor and connected to be buried underground. When a small pipe fan is activated to exhaust indoor air, outdoor fresh air draws in. The natural air-condition is realized to stabilize indoor temperature & humidity by utilizing geothermal heat, which is stable around 18?.

Bio
Satoshi Okada architects pursues intensity of beauty in architecture as its core value. Its designs are conceived to stimulate sensual perception: physical interactions and experiences between human and architectures thus overcome cultural and geographical barriers, triggering intuition above rational comprehension. SOA maintains an open-minded attitude toward the most unconventional desiderata and engages with heartfelt design at all scales, a broad variety of appointments and opportunities, ranging from those designs of public facilities to residential buildings and furniture to products.

Other prizes
Below are the most distiguished prizes each from both abroad and domestic: 1. Dedalo Minosse International Prize Grand-prix, Italy 2006 2. Japan Institute of Architects Prize Grand-prix, Japan 2008




BLT Built Design Awards 2026
Privacy Overview

This website uses cookies so that we can provide you with the best user experience possible. Cookie information is stored in your browser and performs functions such as recognising you when you return to our website and helping our team to understand which sections of the website you find most interesting and useful.