JOIN BLT AWARDS 2026

 

Habitual Vicissitudes

  • Prize
    Winner in Interior Design - Residential
  • University
    The Hong Kong Polytechnic University
  • Lead Designer
    Tak Mei Wong
  • Project Date
    Apr 2023
  • Project Link

Sub-title: The Notion of Transparency, Translucency, and Opacity - Testing of Different Design Components for Addressing Visibility in High-Density Living Environments

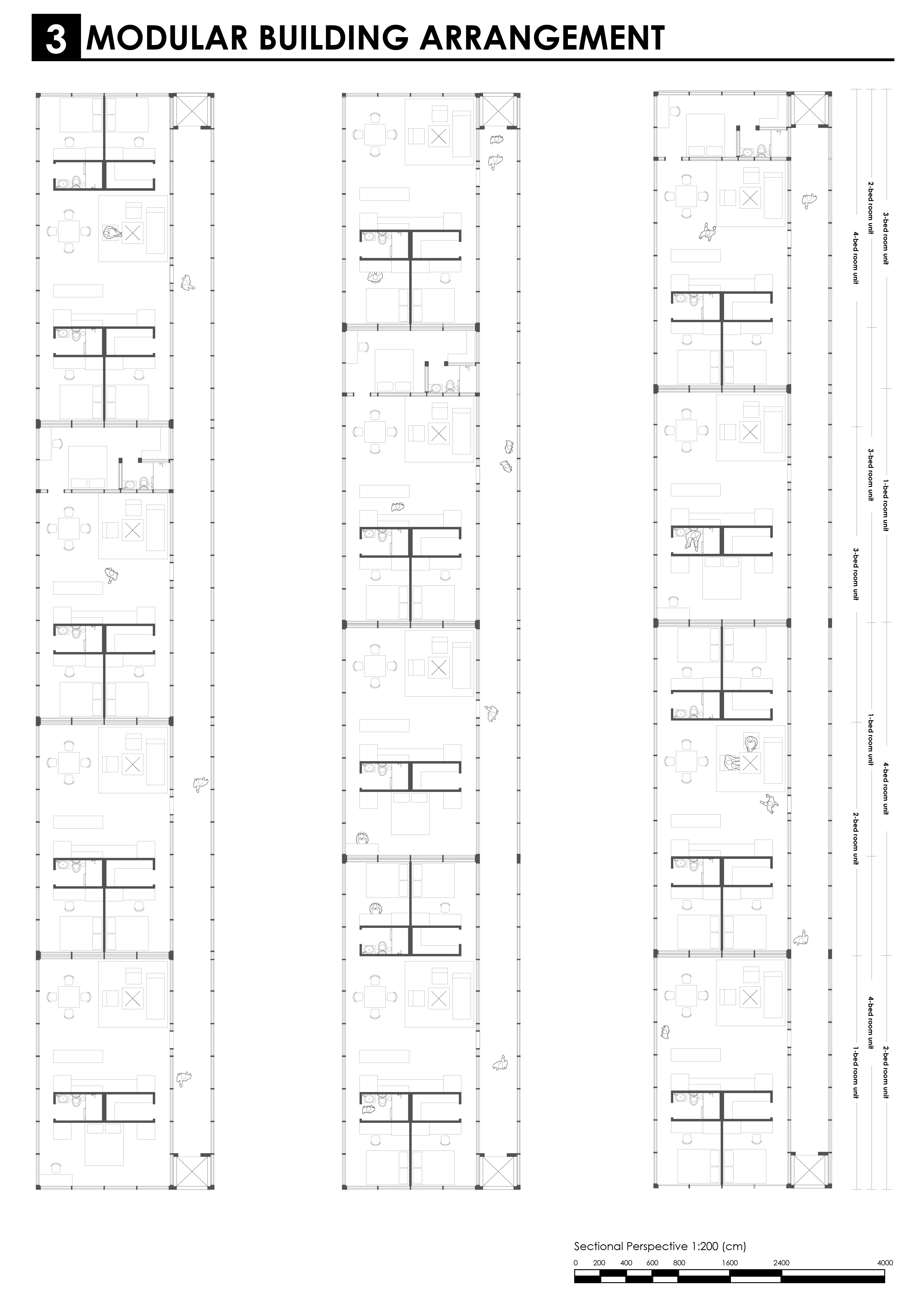
In contemporary urban environments, high-density buildings often compromise privacy, leading to an issue over visibility and the infringement on personal space. The project investigates how levels of transparency in architectural elements can be manipulated to create a sense of privacy while maintaining a connection with the surrounding environment. This includes the strategic use of materials, such as frosted glass and perforated screens, that allow residents to control the degree of visibility into and out of their living spaces according to transparency, translucency, and opacity.

The project future delves into the concept of "seen or not being seen," exploring how residents can choose to engage or disengage from their surroundings through various design components.This involves a critical examination of interior elements such as curtain, louver, and screen usage and its impact on user behavior and decision-making, as well as the alternatives that offer more flexibility and control over visibility.

Other prizes
- HKSAR Government Scholarship Fund - Talent Development Scholarship 2022/23 - Formica Scholarship 2023 - Asia Young Designer Award 2022 - Gold - Disney Imaginations Hong Kong 2022 Design Competition - Finalist - Year 3 Best Development in Semester 1 - Asia Young Designer Award 2020 - Silver




BLT Built Design Awards 2026
Privacy Overview

This website uses cookies so that we can provide you with the best user experience possible. Cookie information is stored in your browser and performs functions such as recognising you when you return to our website and helping our team to understand which sections of the website you find most interesting and useful.