JOIN BLT AWARDS 2026

 

Canvas House

  • Prize
    Winner in Architectural Design - Residential
  • Design Company
    PARTISANS
  • Lead Designer
    Alex Josephson
  • Design Team
    Suzan Ibrahim, Tim Melnichuk, Nathan Bishop, Teddy Shropshire
  • Architecture Firm
    PARTISANS
  • Interior Designer
    Patti Rosati Studios
  • Lighting Design
    N/A
  • Construction Company
    Duffy & Associates
  • Photo Credit
    Younes Bounhar, Teddy Shropshire
  • Project Location
    Toronto, Canada
  • Client
    Confidential
  • Project Date
    September 1, 2023

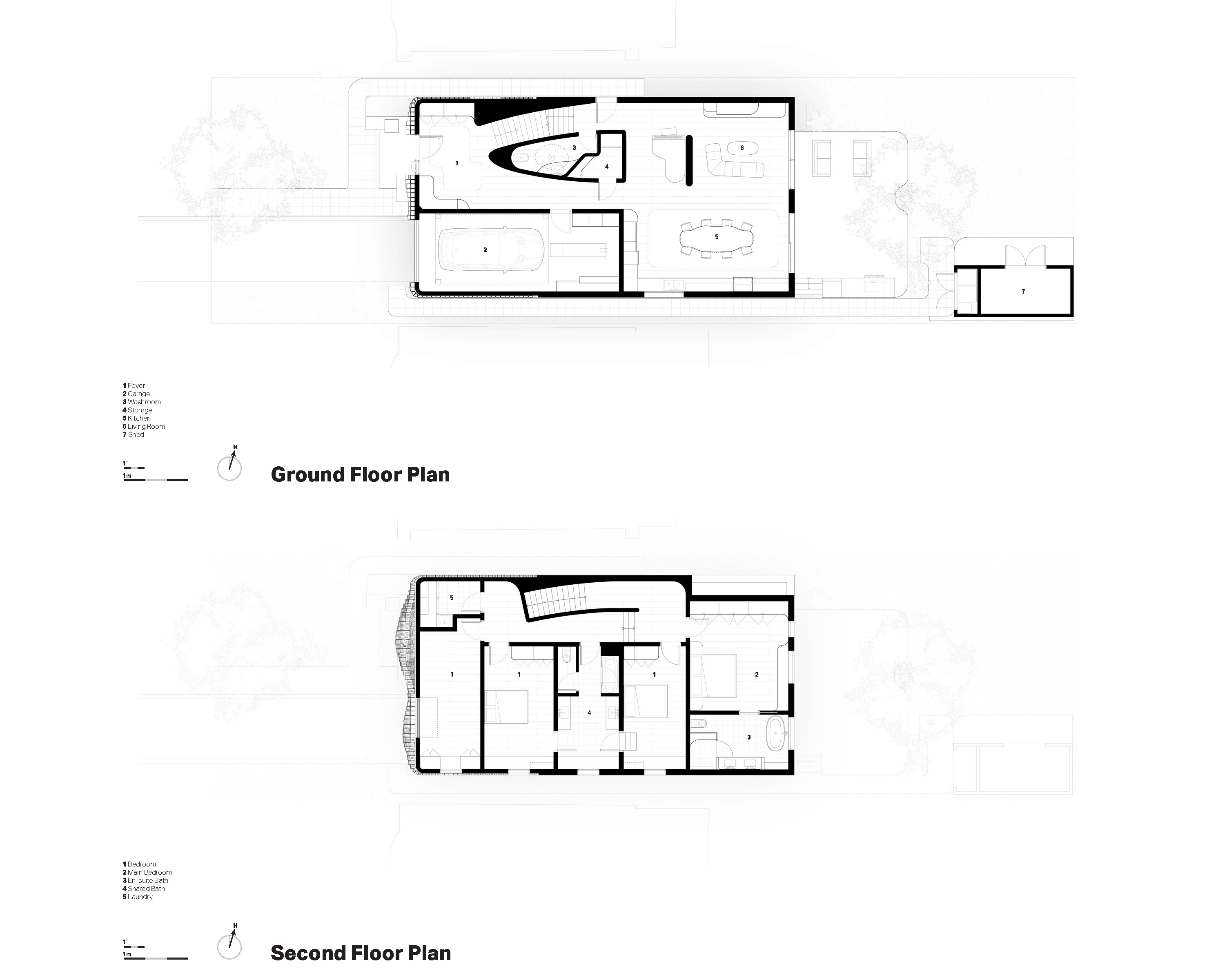
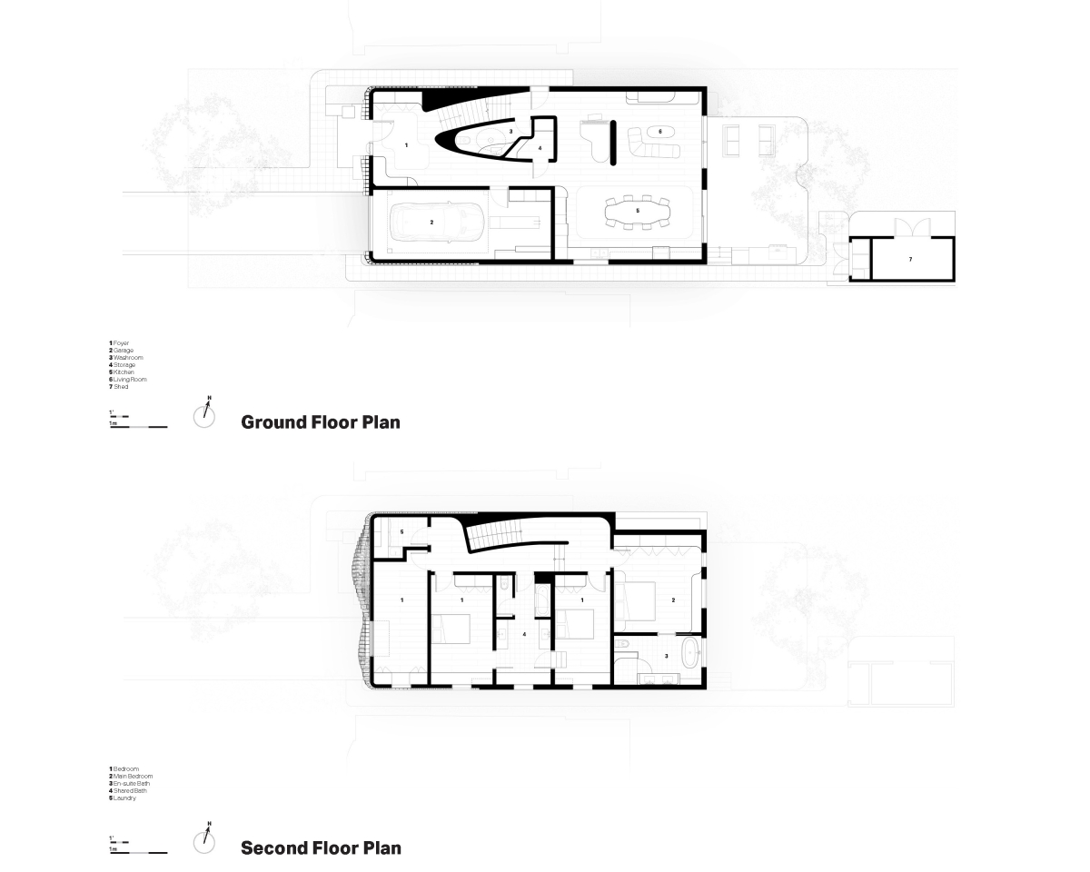
A vessel for a contemporary art collection, Canvas House exemplifies the art it contains through its sculptural facade. On the inside, the warmth of a home meets the light and contemplative characteristics of a gallery - materially muted finishes, the careful integration of light, and seamless wall transitions provide an organic interior that highlights the artworks.
The undulating brick façade emulates a “canvas” where an architectural artwork is “painted” with brick. Within the client’s collection, one of Larry Poon’s dot paintings inspired the design. Poons' dots fluttered beyond the two-dimensional confines of the canvas, appearing like glowing, vibrating pixels. We set out to design a façade that attained the same dimensionality and movement, but beyond the confines of the architectural form. The design would need to convey architectural movement in not just form, but also light. The new brick bond-pattern we created, which we call the voxel-bond, is formed by a repeating unit of 5 bricks. The optics are accomplished by individually improvised corbel variations. Through the dints of cast shadows and plays of light, the facade transcends its three-dimensional wave-like form.




BLT Built Design Awards 2026
Privacy Overview

This website uses cookies so that we can provide you with the best user experience possible. Cookie information is stored in your browser and performs functions such as recognising you when you return to our website and helping our team to understand which sections of the website you find most interesting and useful.