JOIN BLT AWARDS 2026

 

Tetovska

  • Prize
    Winner in Interior Design - Houses
  • Design Company
    Petokraka
  • Lead Designer
    Aleksa Bijelovic, Milica Maksimovic
  • Architecture Firm
    Dejan Miljkovic, Jovan Mitrovic
  • Interior Designer
    Petokraka with Kosta Glusica
  • Photo Credit
    Relja Ivanic
  • Project Location
    Belgrade, Serbia
  • Client
    Kosta Glusica
  • Project Date
    2019

'An interior mise-en-scène employs the physicality of the theatrical set and amalgamates this with filmic ideas relating to perception and interpretation.'
— From 'Creating Interior Atmosphere, Mise-en-scene and Interior Design' by Jean Whitehead

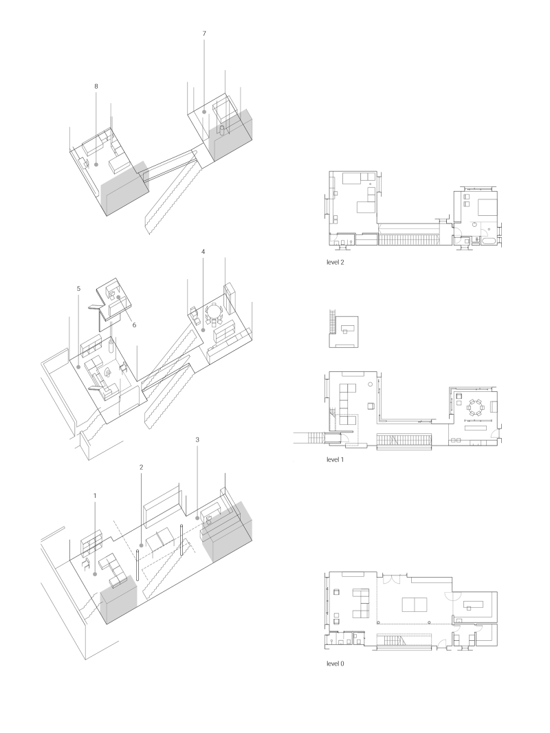
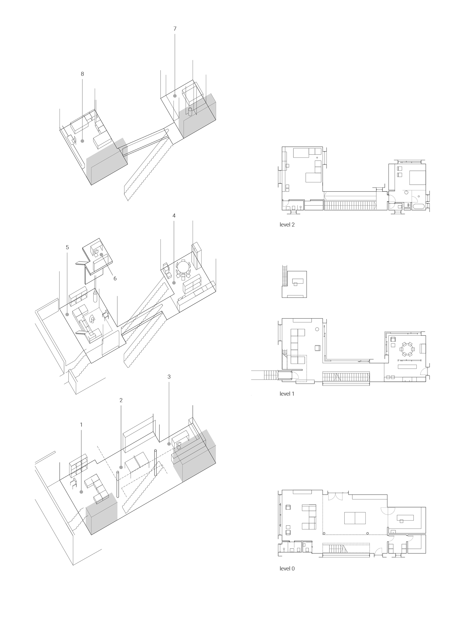
Creative Practice Petokraka worked closely with the client to devise a distinct domestic ambience and spatial scenery via custom-designed structures and objects, from staircases, partitions, and cabinetry to lighting and furniture pieces, responding to the inside/outside beton brut body of the main structure. The voluminous three-level semi-open plan house consists of a living room with an elevated study area and a kitchen with dining on the ground floor, a multifunctional space, a workshop and a guest apartment on the lower ground, and bedrooms with ensuite bathrooms on level 2. The interior architecture project lasted over five years, expanding synchronously with the building construction. It included work on the ever-evolving layout and diligent details development following the on-site progress.

Drawing Label — 1) Guest apartment 2) Recreation area 3) Workshop 4) Kitchen and dining 5) Living room 6) Study 7) Bedroom 8) Bedroom

Bio
Petokraka is an independent creative practice founded in Belgrade, Serbia, by architects Aleksa Bijelovic and Milica Maksimovic.

A place of interdisciplinary actions and cross-disciplinary methodologies, Petokraka aims to create new experiences by open interpretation — devising concepts and creating spaces, objects, and situations. The field of action spans interior architecture and adaptive reuse, exhibition design and spatial installations, object design, visual art, identity and graphic design.

The practice operates in Belgrade, Serbia and Perth, Western Australia.




BLT Built Design Awards 2026
Privacy Overview

This website uses cookies so that we can provide you with the best user experience possible. Cookie information is stored in your browser and performs functions such as recognising you when you return to our website and helping our team to understand which sections of the website you find most interesting and useful.