JOIN BLT AWARDS 2026

 

BUGAAN RAMA 9 - MENGJAI

  • Prize
    Winner in Landscape Architecture - Residential Landscape
  • Design Company
    TK STUDIO
  • Lead Designer
    Tawatchai Kobkaikit
  • Design Team
    Jeerawat Siriwetch, Patipan Potiyaraj
  • Lighting Design
    TK STUDIO
  • Other Credit
    makeAscene limited
  • Photo Credit
    Rungkit Charoenwat
  • Project Location
    Rama9-Mengjai
  • Client
    Sansiri Public Company Limited
  • Project Date
    27 January 2024

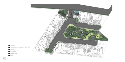
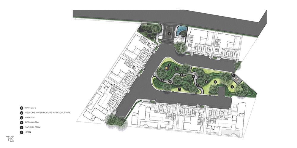
BuGaan Rama 9 is an exclusive housing project situated on a 5,900 square meter plot in Mengjai, a high-density residential area in Bangkok. Comprising just 8 luxurious units, BuGaan Rama 9 is part of the Sansiri Luxury Collection (SLC) and is developed by Sansiri Public Company Limited.The project’s design presents a unique challenge: to create a luxurious living environment within a compact space. To address this, BuGaan Rama 9 was developed under the concept of “Modern Organic,” which seeks to blend contemporary living with natural elements in a harmonious and innovative way. The Modern Organic concept is reflected in the architectural and the landscape design, emphasizing simplicity, clarity, and the use of durable natural materials.Modern Organic concept embodies a design philosophy that integrates modern living with the organic forms of nature. This concept is realized through a clean, straightforward architectural style combined with the use of natural materials like stone, wood, and steel to create an elegant yet bold appearance. The project’s design aims to provide residents with a private, serene, and aesthetically pleasing environment.




BLT Built Design Awards 2026
Privacy Overview

This website uses cookies so that we can provide you with the best user experience possible. Cookie information is stored in your browser and performs functions such as recognising you when you return to our website and helping our team to understand which sections of the website you find most interesting and useful.