JOIN BLT AWARDS 2026

 

Grande Armée - l1ve

  • Prize
    Winner in Architectural Design - Commercial
  • Design Company
    Baumschlager Eberle Architekten
  • Lead Designer
    Baumschlager Eberle Architekten
  • Architecture Firm
    Baumschlager Eberle Architekten
  • Construction Company
    Eiffage
  • Photo Credit
    Cyrille Weiner
  • Project Location
    75, avenue de la Grande Armée, 75116 Paris
  • Client
    Gecina
  • Project Date
    2022

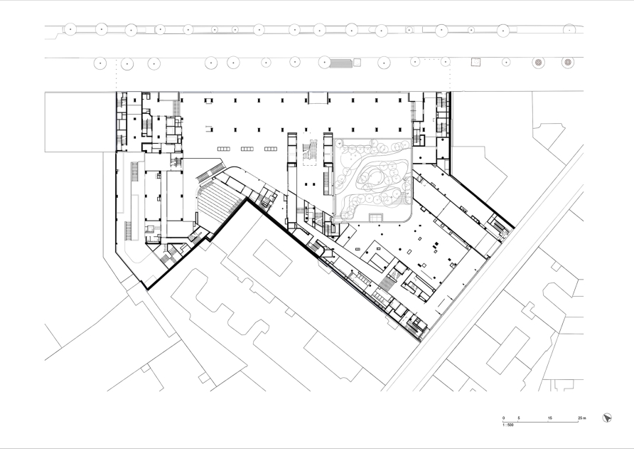
Address, physiognomy and recycling in Paris
‘A restructuring project made it possible to intensify the strong architectural gesture’ - this is the basic idea behind the renovation of the former Peugeot headquarters near the Arc de Triomphe. The project now offers the central Parisian urban space an exciting 110 metre long façade. The existing concrete structure forms the backdrop for an innovative window system. Rhythm, plasticity and self-imposed order are found in a façade that gives the ‘Grande Armée - l1ve’ project a strong physiognomy.

However, the project with its 35,000 m² of gross floor area achieves more: open office structures, spacious green areas and terraces combine to create a living environment that can be adapted to contemporary lifestyles. The existing structures for these interventions were adopted and offered the potential for further development.

The handling of the demolition material was also innovative: 5,150 tonnes were recycled and 80 tonnes were reused directly in the reconstruction. ‘Grande Armée - l1ve’ is also an important contribution to the circular economy.

Bio
PR-Abteilung

Other prizes
BLT Built Design Award - Winner "Architectural design - Hospitality" 2023




BLT Built Design Awards 2026
Privacy Overview

This website uses cookies so that we can provide you with the best user experience possible. Cookie information is stored in your browser and performs functions such as recognising you when you return to our website and helping our team to understand which sections of the website you find most interesting and useful.