JOIN BLT AWARDS 2026

 

Noke

  • Prize
    Winner in Interior Design - Commercial / Interior Design - Retails / Shops
  • Design Company
    AI Group Co., Ltd
  • Lead Designer
    Tomo Huang
  • Interior Designer
    Tomo Huang
  • Photo Credit
    Eric Ho
  • Project Location
    Taipei, Taiwan
  • Client
    JUT RETAIL DEVELOPMENT COMPANY LIMITED
  • Project Date
    2023/5

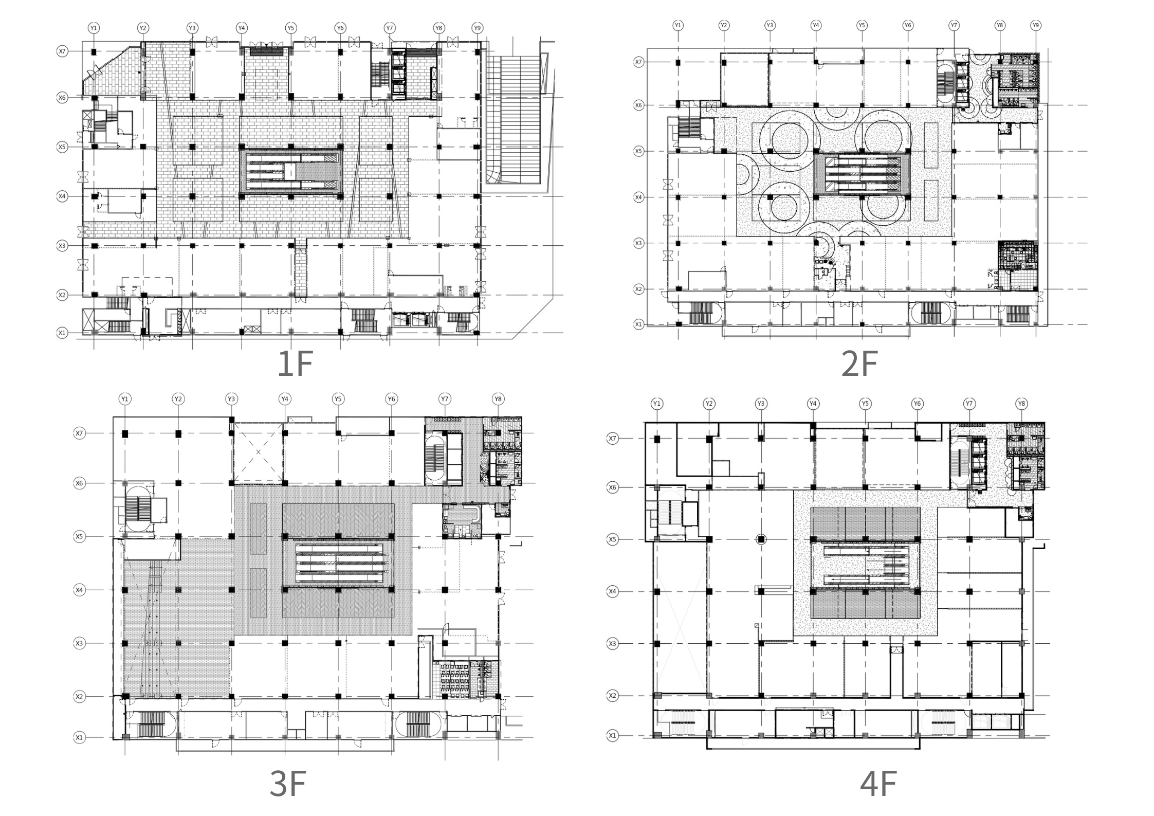
Inspired by Zhang Daqian's landscape paintings, Noke displays abstract representations of mountain landscapes at various altitudes. Therefore, the first floor of this shopping center evokes the image of paddy fields. Ripples on a lake inspired the visual of the second floor. The lines and dots on the third-floor ceiling are modeled after light piercing through the needles of pine trees. Sea of clouds becomes the circles of the fourth floor. The fifth and sixth floors mix the ambiance of a mountain hut and of a mountain train station.

Noke prioritizes customer comfort by widening aisles and arranging products in clean and minimalist spaces. Its open layout creates visual appeal, but also eliminates subconscious hesitations caused by spatial divisions.

From flame-retardant wallpaper to robust melamine laminated board, building materials reflect a commitment to quality, ensuring safety and durability. The extensive use of windows enhances natural lighting, significantly reducing the need for artificial lighting during daylight hours compared to competitors. This aligns perfectly with the theme of natural mountain scenery, further enhancing the immersive experience for customers.




BLT Built Design Awards 2026
Privacy Overview

This website uses cookies so that we can provide you with the best user experience possible. Cookie information is stored in your browser and performs functions such as recognising you when you return to our website and helping our team to understand which sections of the website you find most interesting and useful.