JOIN BLT AWARDS 2026

 

Stealth House

  • Prize
    Winner in Architectural Design - Small Architecture
  • Design Company
    Specht Novak
  • Lead Designer
    Scott Specht
  • Design Team
    Scott Specht, Jakeb Novak, Travis Power
  • Architecture Firm
    Specht Novak
  • Interior Designer
    Scott Specht and Shiraz Bakshai
  • Lighting Design
    Specht Novak
  • Construction Company
    Smock Build
  • Photo Credit
    Leonid Furmansky
  • Project Location
    Austin, Texas, USA
  • Client
    Scott Specht and Shiraz Bakshai
  • Project Date
    August 2024
  • Project Link

The Stealth House

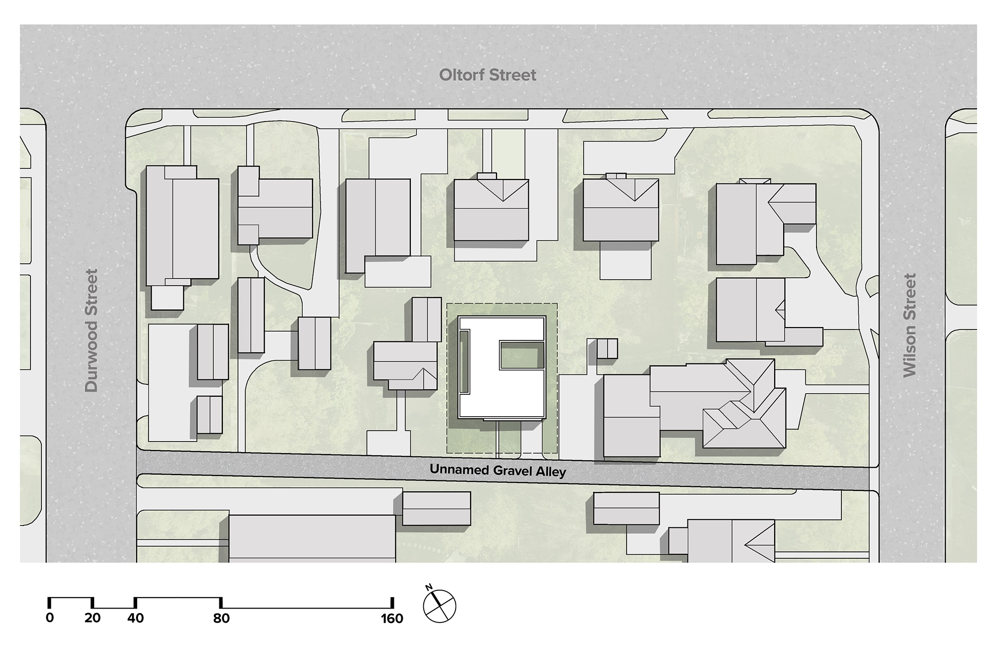
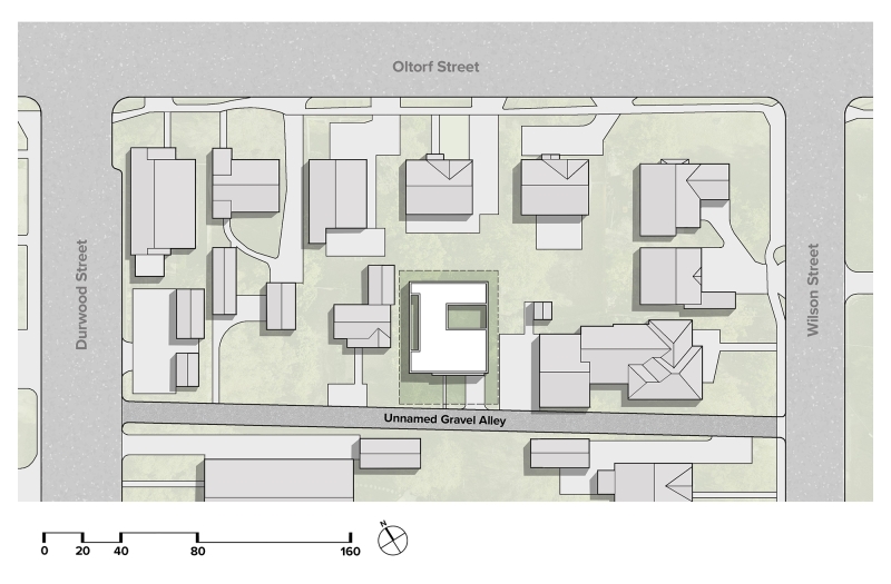
Urban densification is reshaping American cities as zoning reforms encourage more housing on smaller lots—yet few architects address the resulting privacy, light, and spatial challenges. The Stealth House offers a thoughtful solution.

No Windows

This 1,100 sf alley-access ADU embraces its narrow site and nonexistent views as catalysts for innovation. By eliminating perimeter windows and channeling light through interior courtyards, it ensures privacy while transforming how space is experienced.

A Quiet Presence

Its corrugated Cor-Ten steel façade offers durability and a subtle, warm backdrop. A tile-clad entry panel serves as a customizable canvas—art display, identity marker, or even leased signage—reinforcing the home’s adaptability.

A Sanctuary Within

Centered on two glazed courtyards, the interior is bathed in natural light. An olive tree filters sunlight , and a bamboo-lined aviary provides habitat and serenity. Together, they create a “peaceful oasis” amid the city.

A Prototype for Future Living

By reclaiming underused urban pockets—from industrial fringes to highway-adjacent sites—the Stealth House is a new model for private living in the city.


BLT Built Design Awards 2026
Privacy Overview

This website uses cookies so that we can provide you with the best user experience possible. Cookie information is stored in your browser and performs functions such as recognising you when you return to our website and helping our team to understand which sections of the website you find most interesting and useful.