JOIN BLT AWARDS 2026

 

John Barrett Salon

  • Prize
    Honorable Mention in Interior Design / Retails / Shops
  • Design Company
    Ronnette Riley Architect
  • Lead Designer
    Yumi Moriwaki, AIA, LEED AP
  • Design Team
    Ronnette Riley, Andres Lizarraga, Rachel Schad
  • Architecture Firm
    Ronnette Riley Architect
  • Interior Designer
    Ronnette Riley Architect
  • Construction Company
    The Sweet Construction Group
  • Project Location
    New York, NY
  • Project Date
    April 2019

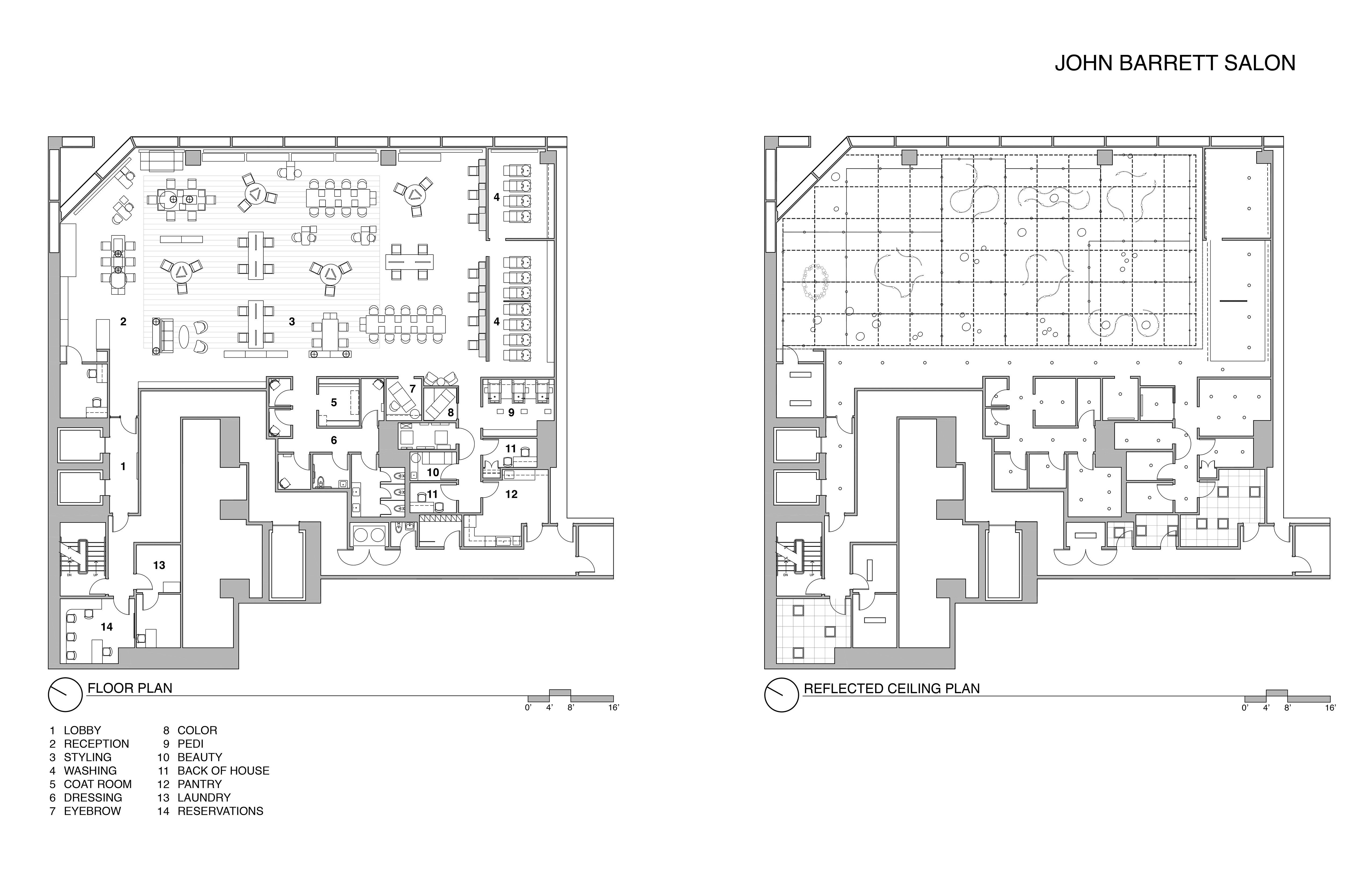
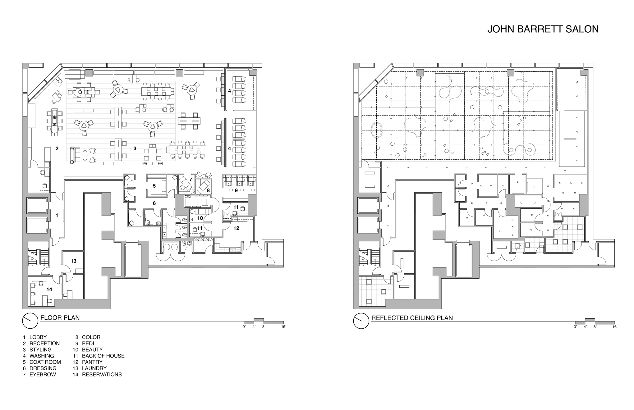
The client wanted a homey atmosphere, so reception is designed as a living room with floor lamps, area rug and vintage modern furniture. Floor-to-ceiling windows look out onto East 57th Street and Four Seasons Hotel. Skin-care, beauty products, art books and jewelry are on offer. The client’s personal artwork is displayed along with rotating art exhibits.

The client re-imagined his new salon as a modern gathering space that could host events as well as patrons. The open layout table arrangements and custom bookshelves with an eclectic book collection are inspired by refectory & reading tables and create a new temple to self-edification in a reading room of sorts.

The main salon is ringed with red terrazzo floors inset with wide-plank oak. Squiggly LED light fixtures, decorative bubble lamps and track lighting illuminate the space. An antique hand-blown glass chandelier reigns over the make-up area.

The colorists are arranged by the windows to take advantage of the abundant natural light while styling stations are scattered throughout. Hair-washing is separated by a clear glass wall. A private VIP room and manicure/pedicure room are located off the main salon.


BLT Built Design Awards 2026
Privacy Overview

This website uses cookies so that we can provide you with the best user experience possible. Cookie information is stored in your browser and performs functions such as recognising you when you return to our website and helping our team to understand which sections of the website you find most interesting and useful.