JOIN BLT AWARDS 2026

 

A Warehouse Design befitting High End Fashion

  • Prize
    Honorable Mention in Architectural Design / Industrial
  • Design Company
    I-Beam Design
  • Lead Designer
    Azin Valy/Suzan Wines
  • Design Team
    Olgu Aytac
  • Architecture Firm
    I-Beam Design
  • Interior Designer
    I-Beam Design
  • Construction Company
    Mara Brothers, Solid Steel Buildings
  • Project Location
    Melville, NY
  • Project Date
    2020

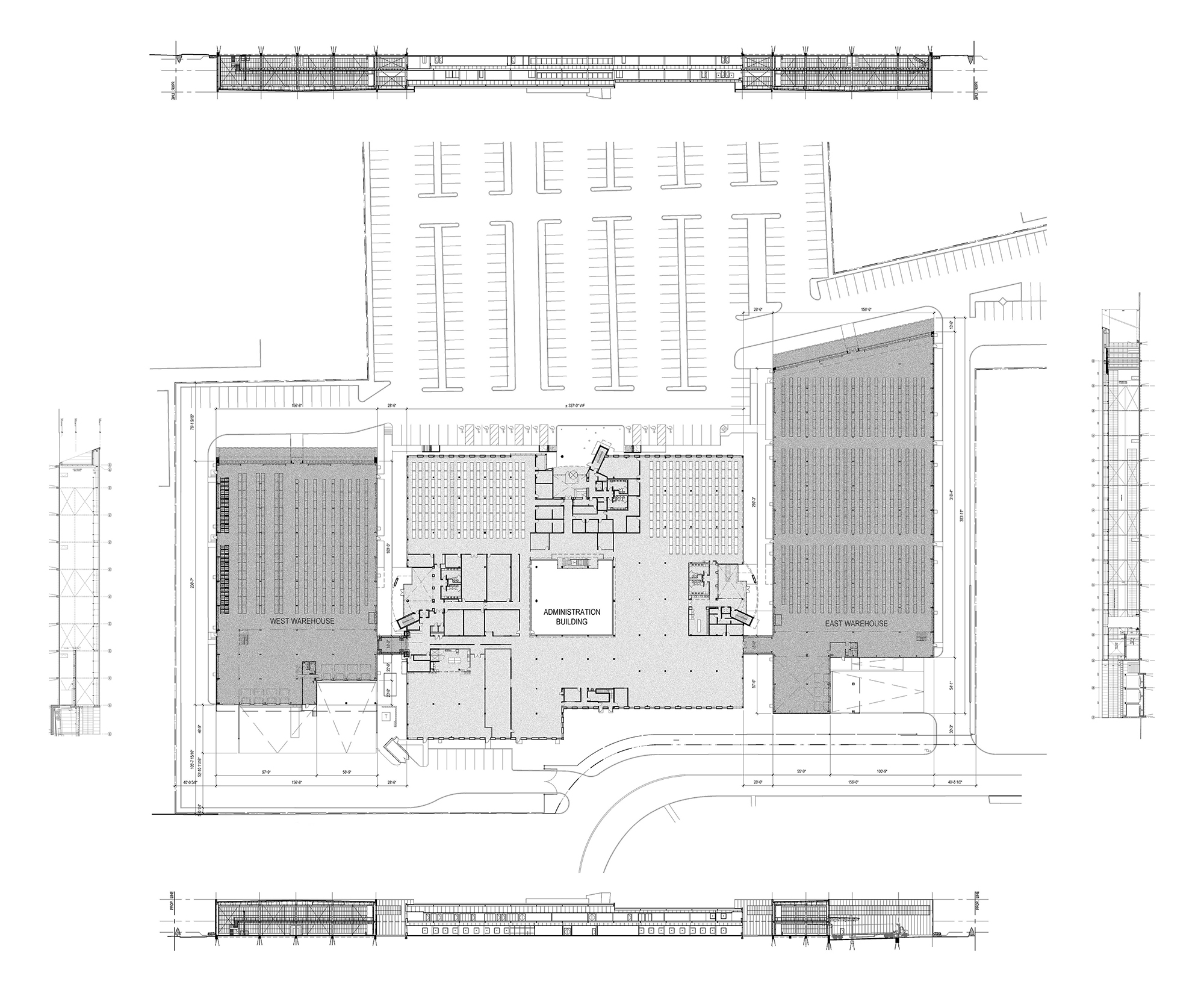
Two 50,000 sf pre-engineered warehouses were designed to flank an existing 150,000 sf office building that was converted into a luxury fashion logistics headquarters for Stellae International.

The new warehouses, clad with MBCI metal panels and punctured with bands of polycarbonate sheets allow diffused light into the 33' high spaces. The angled cantilevered front facades provide a canopy above the recessed translucent walls, framing them with red ribboning panels that accentuate the entry facades which glow at night.

Stellae International Inc., is a luxury goods and fashion logistics company whose clients include major European and American fashion brands. The client’s sense of style and enthusiasm towards design and architecture as well as their hands on approach to every aspect of the project created a collaborative approach throughout the process.

The existing central structure was converted to warehouse spaces, production spaces, administrative offices, dining halls and lounge areas. The entire complex is connected via breezeways and courtyards that provide natural light and air. Bold accent colors were incorporated to create different zones within the building.

Bio
We build museum quality projects ranging in size from 250,000 SF commercial spaces to 250 SF refugee housing projects.

Azin Valy, former partner and co-founder of the award-winning I-Beam Design, as well as the founder of the award-winning fashion brand, Cityzen by Azin, has now launched Cityzen Designs, a new multi-disciplinary design firm.
Under Azin's partnership at I-Beam, her firm was shortlisted by the American Architecture Prize for Best Interior Design Firm 2017 and was included amongst the Top Architecture firms by New York Magazine for years.

Other prizes
https://www.cityzendesigns.com/new-page-1




BLT Built Design Awards 2026
Privacy Overview

This website uses cookies so that we can provide you with the best user experience possible. Cookie information is stored in your browser and performs functions such as recognising you when you return to our website and helping our team to understand which sections of the website you find most interesting and useful.