JOIN BLT AWARDS 2026

 

Laurel Hills Residence

  • Prize
    Honorable Mention in Architectural Design / Residential
  • Design Company
    Assembledge+
  • Lead Designer
    David Thompson
  • Design Team
    Greg Marin, Raul Aguilera
  • Architecture Firm
    Assembledge+
  • Interior Designer
    Susan Mitnick Design Studio
  • Project Location
    Los Angeles, California
  • Project Date
    June 2019
  • Project Link

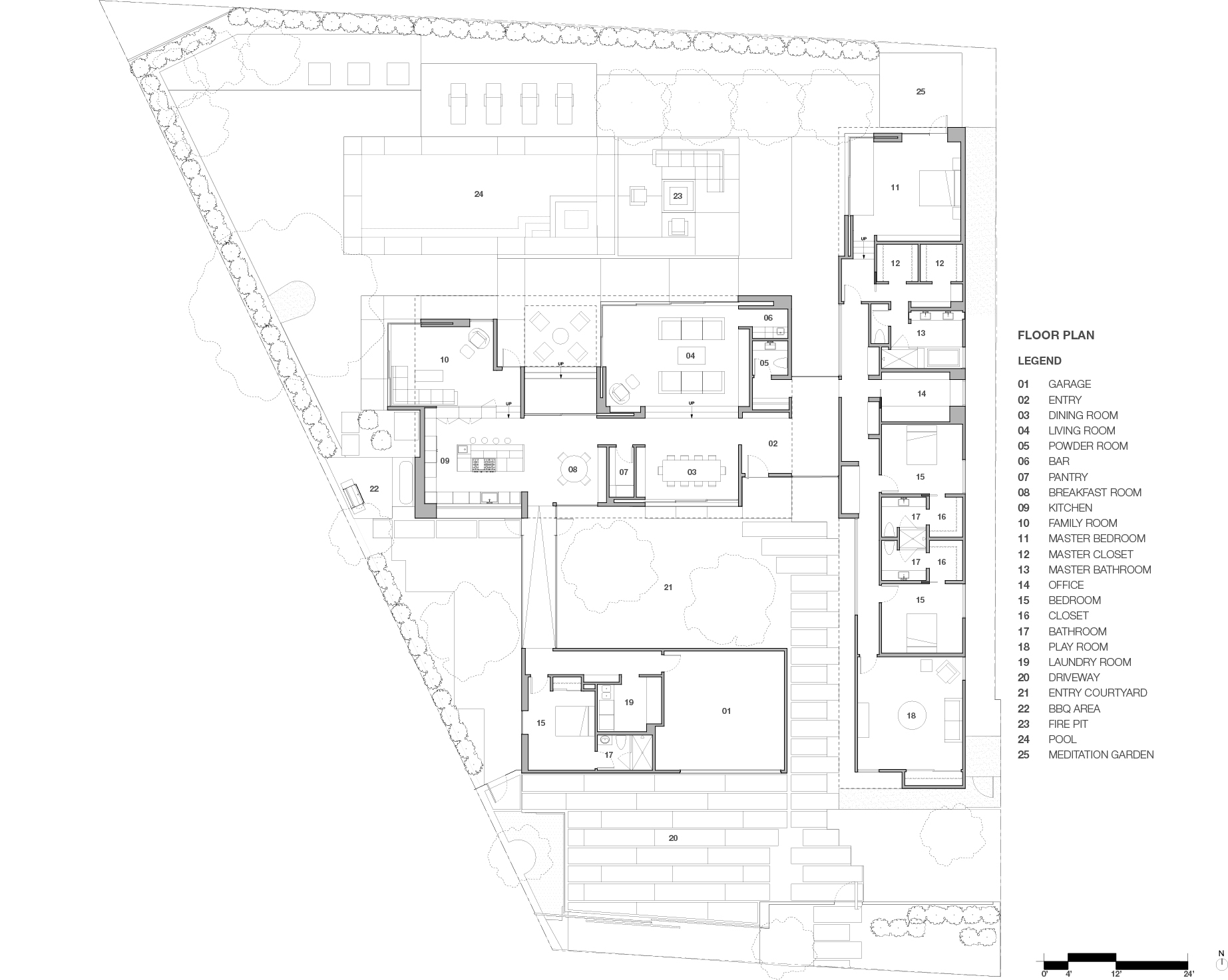
Composed of three pavilions connected by a series of glass hallways, the single-story residence seeks to create a residential oasis. The Western Red Cedar lined guest house/garage pavilion establishes a datum line that carves and connects the two larger volumes of the living and sleeping pavilions, comprised of the oversized charcoal-coloured board, batten extira and cement board siding. The fluidity between the kitchen, breakfast room and family room, designed for uninterrupted entertainment, creates a harmony of transparency and lightness. The entire site here is treated as we are accustomed to treating interiors. The grounds are interlocked with the interior space and the entire ensemble is activated by the purposeful arrangement of deeply layered sightlines, vignettes and circulation connections. Large windows, skylights, and pocketing doors infuse the home with natural light, reflecting off wooden floors and marble countertops. Principles of effective site orientation are utilized with southern-facing walls that are without glazing or protected by overhangs. The formal decision to build a single-story residence ensures permits the installation of a 15kW photo-voltaic system.




BLT Built Design Awards 2026
Privacy Overview

This website uses cookies so that we can provide you with the best user experience possible. Cookie information is stored in your browser and performs functions such as recognising you when you return to our website and helping our team to understand which sections of the website you find most interesting and useful.