JOIN BLT AWARDS 2026

 

CURRO Digi-Ed in Delft

  • Prize
    Honorable Mention in Architectural Design / Educational
  • Design Company
    Bpas Architects
  • Lead Designer
    Landseer Collen and Ian Cox
  • Design Team
    Theo Gutter, Cuan Stephens and Salmon Smith
  • Architecture Firm
    BPAS Architects
  • Interior Designer
    BPAS Architects
  • Construction Company
    Buildaway
  • Project Location
    Delft, Cape Town, South Africa
  • Project Date
    2019

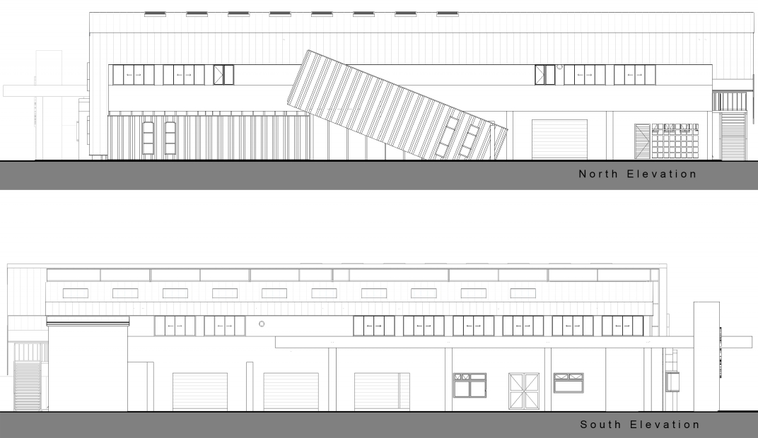
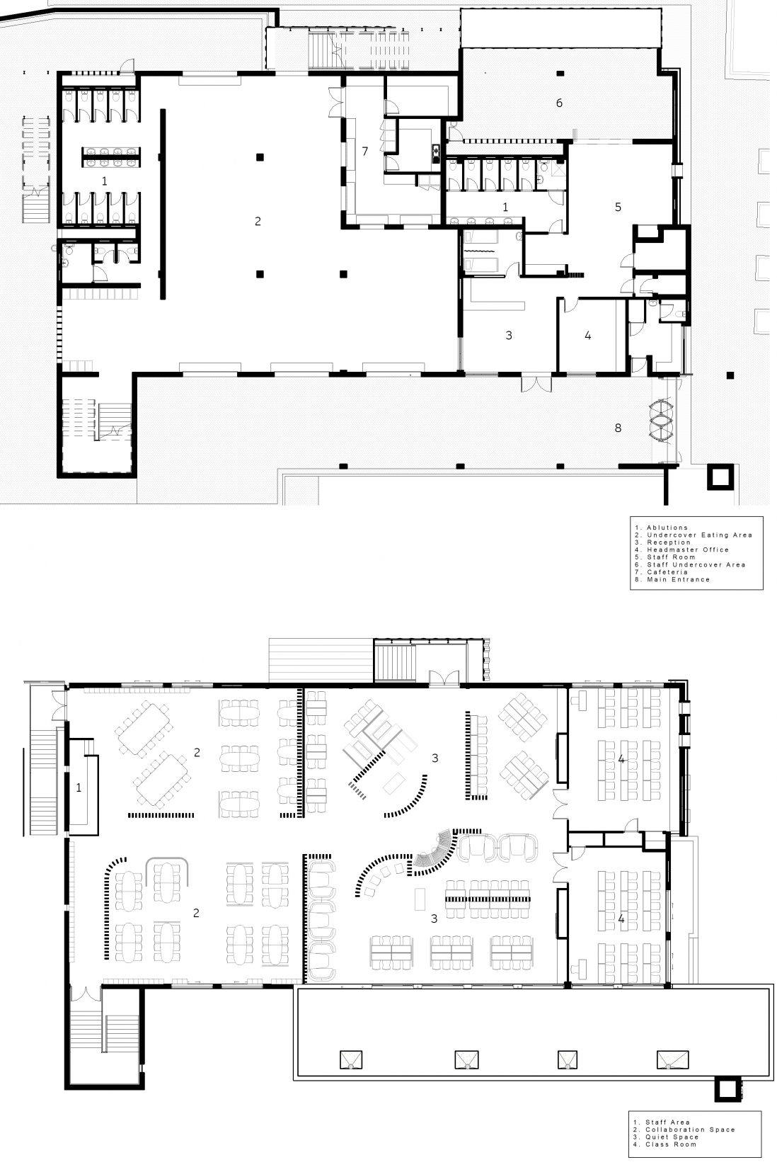
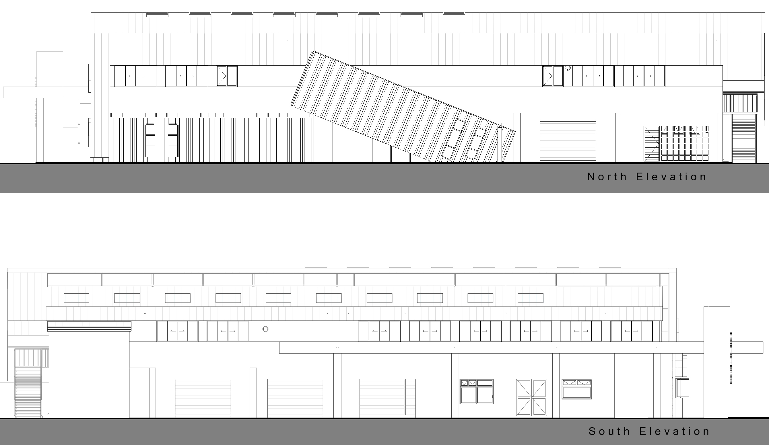
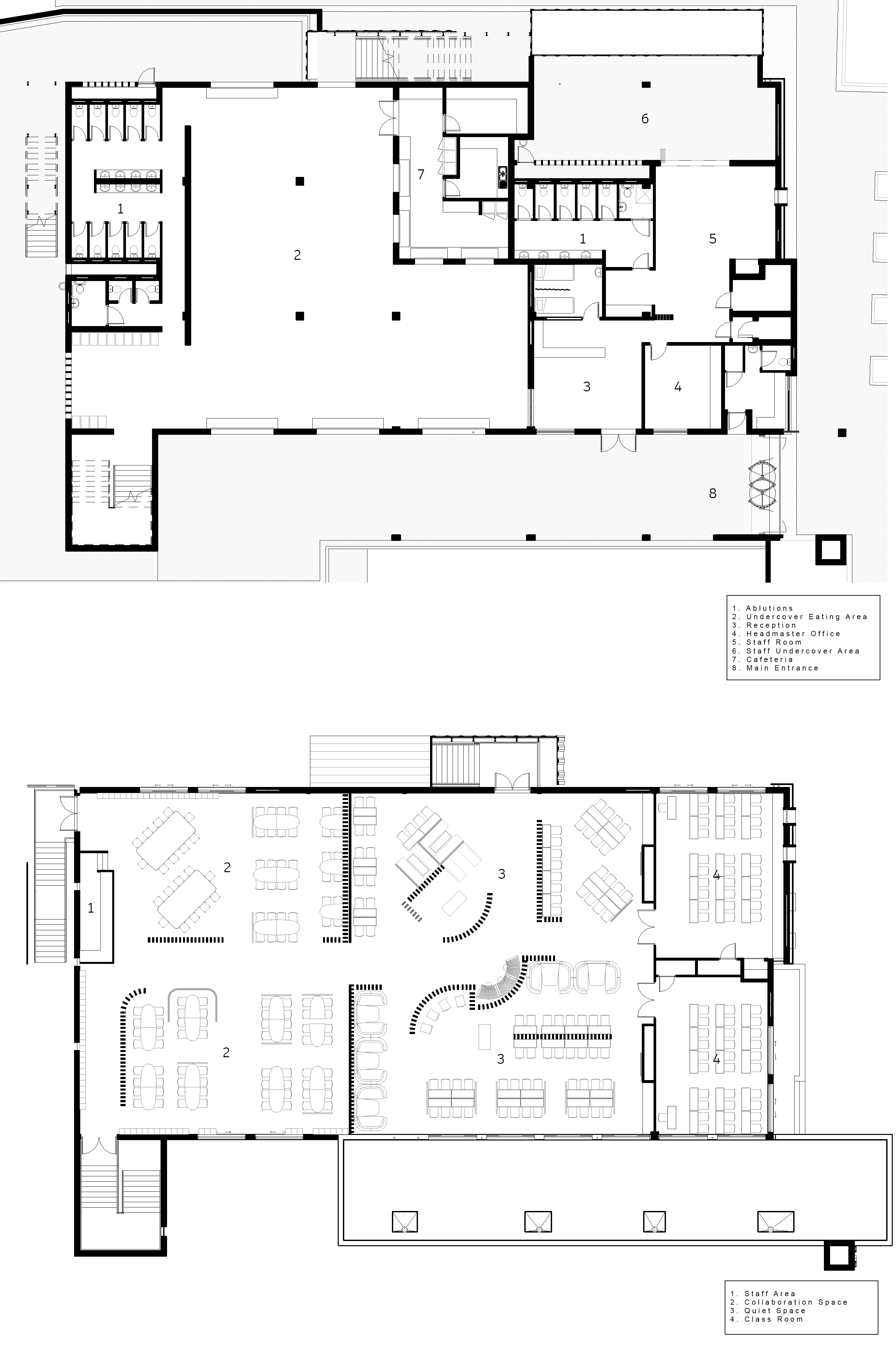
Curro Delft is an innovative, technologically advanced high school that opened in January 2020. The project brief was to create a space that would challenge the traditional classroom, its teaching mediums and facilities, as the school’s learning material is predominantly delivered through digital channels.

The accommodation of the building is arranged over two levels. Only a small admin component was required for the limited amount of teaching staff, which is situated at the entrance to the building with an informal cafeteria and gathering space linked behind it. Three distinctive staircases link this gathering space with the open plan teaching area above it.

This open-plan layout allows the school to be adaptable, with the teachers/facilitators having the opportunity to rearrange the classes according to their needs. The building has an active urban edge with a secure inner courtyard, addressing both the urban fabric and its environmental conditions. The first building will form part of a series of structures, which will hopefully act as an urban catalyst for the larger future development of the entire area.




BLT Built Design Awards 2026
Privacy Overview

This website uses cookies so that we can provide you with the best user experience possible. Cookie information is stored in your browser and performs functions such as recognising you when you return to our website and helping our team to understand which sections of the website you find most interesting and useful.