JOIN BLT AWARDS 2026

 

CMSK Yuyue Marketing Centre Wu Han

  • Prize
    Honorable Mention in Interior Design / Commercial
  • Design Company
    LIA INTERIOR DESIGN.
  • Lead Designer
    Bingfeng Li
  • Design Team
    Ruijun Feng Jieru Zhong Yubing Zhang
  • Project Location
    Wuhan,Hubei

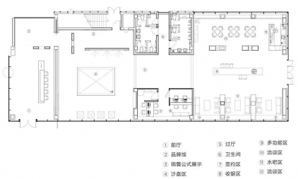
This is a small and refined design project, located in Wuhan. Through reasonable segmentation and combination of space, we introduce different natural light for each space, and strive to make people feel concise, relaxed and comfortable.This space focuses on a comfortable aesthetic experience, which is based on the traditional and modern humanistic basis, especially in the use of light and the way of expression, direct, indirect and colorful.It combines nature with material, so that every space and every corner is full of elegant and interesting atmosphere, and has a pleasant feeling of visiting the garden.




BLT Built Design Awards 2026
Privacy Overview

This website uses cookies so that we can provide you with the best user experience possible. Cookie information is stored in your browser and performs functions such as recognising you when you return to our website and helping our team to understand which sections of the website you find most interesting and useful.