JOIN BLT AWARDS 2026

 

BE29

  • Prize
    Honorable Mention in Interior Design / Exhibition / Gallery
  • Design Company
    Arshia Architects
  • Lead Designer
    Arshia Mahmoodi
  • Design Team
    Cui Fang
  • Architecture Firm
    Arshia Architects
  • Interior Designer
    Arshia Mahmoodi
  • Construction Company
    Ferrante Koberling Construction Inc.
  • Project Location
    229 N Beverly Dr, Beverly Hills, CA 90212
  • Project Date
    October 2018

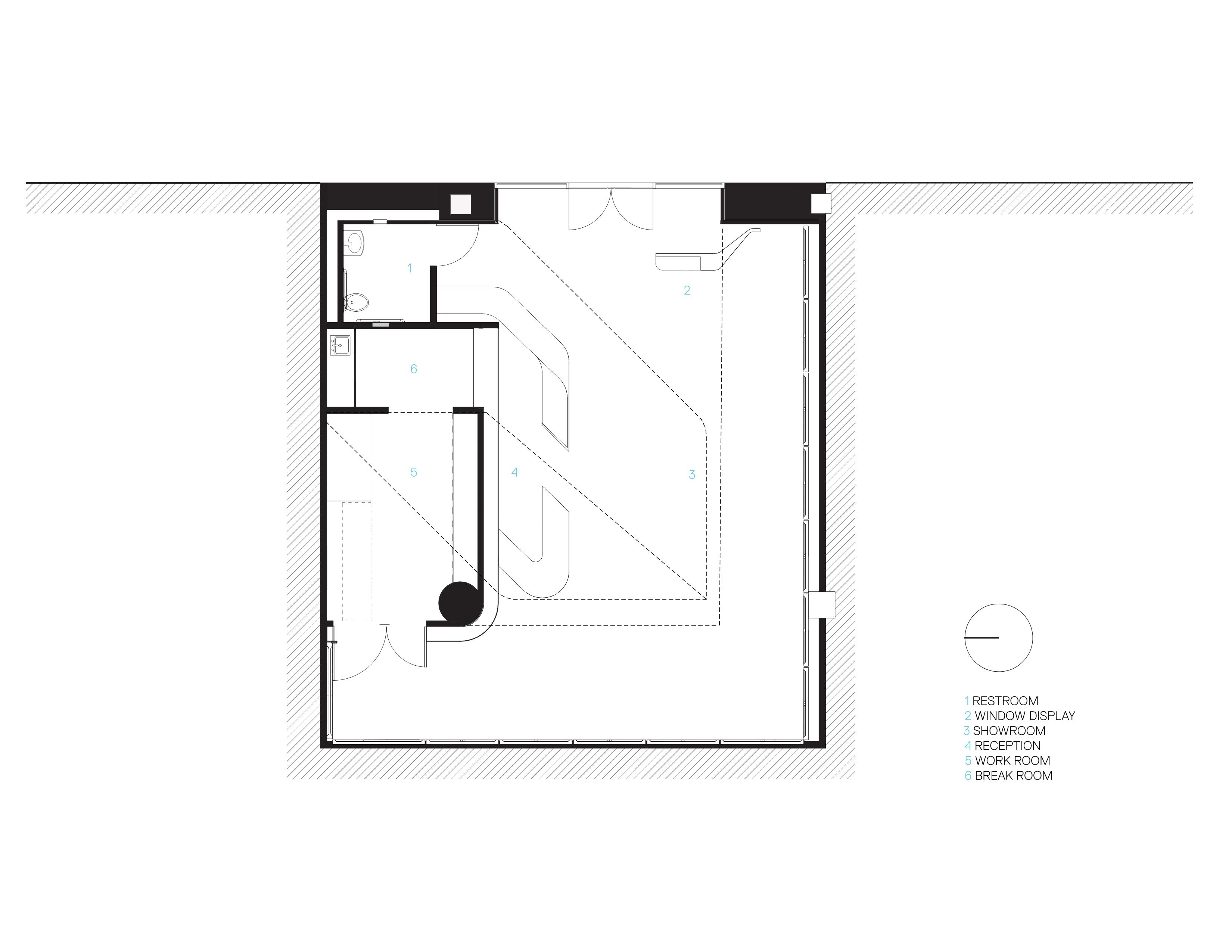
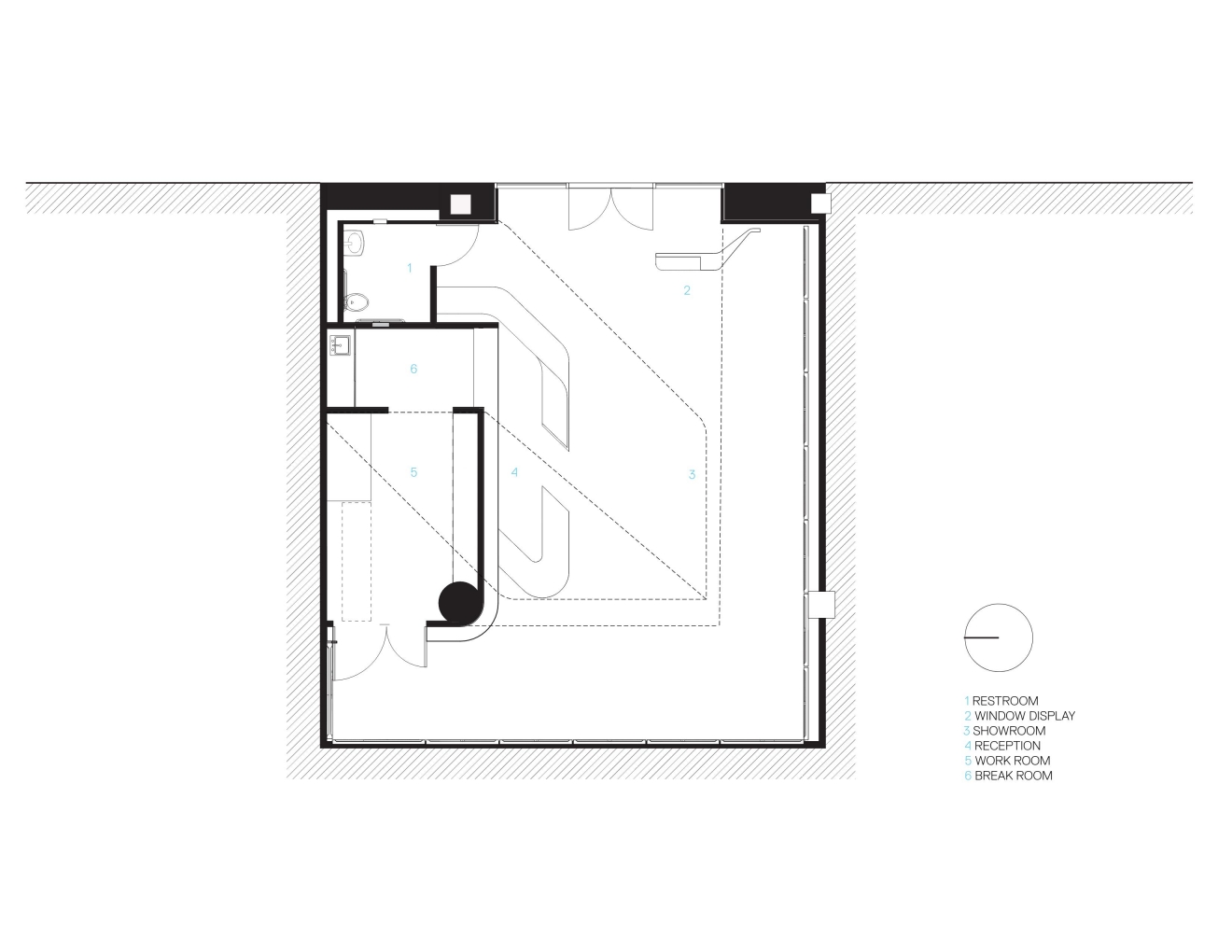
Gallery 19C is a portfolio of rare impressionist artwork from the turn of the 19th Century. True to radical departure in impressionist art and borrowed from the bedroom in "2001: A Space Odyssey", the project endures to create a stark and minimal aesthetic by delivering an environment that is materially incorporeal. The Future Garment will serve as a garment for cloaking the space or a “tablecloth” providing backdrop for the subject of the art, a technique mastered by the bravado of Impressionism Paul Cézanne.
The wall paneling of the gallery is created as a vogue concept to classical wainscoting. These panels present opportunities for displaying art as precious and unique artifact. The size and stacking of these panels allow for the arrangement of artwork in multiple configurations, including stacked “Salon Style”, the prevalent style of art display until the late 19th Century.




BLT Built Design Awards 2026
Privacy Overview

This website uses cookies so that we can provide you with the best user experience possible. Cookie information is stored in your browser and performs functions such as recognising you when you return to our website and helping our team to understand which sections of the website you find most interesting and useful.