JOIN BLT AWARDS 2026

 

VILLA ANDERSSON

  • Prize
    Honorable Mention in Architectural Design / Residential
  • Design Company
    Abelardo Gonzalez Arkitektbyrå Ab
  • Lead Designer
    Abelardo Gonzalez
  • Architecture Firm
    Abelardo Gonzalez Arkitektbyrå Ab
  • Project Location
    FRÖSAKULL, HALMSTAD, SWEDEN
  • Project Date
    MAY 2021
  • Project Link

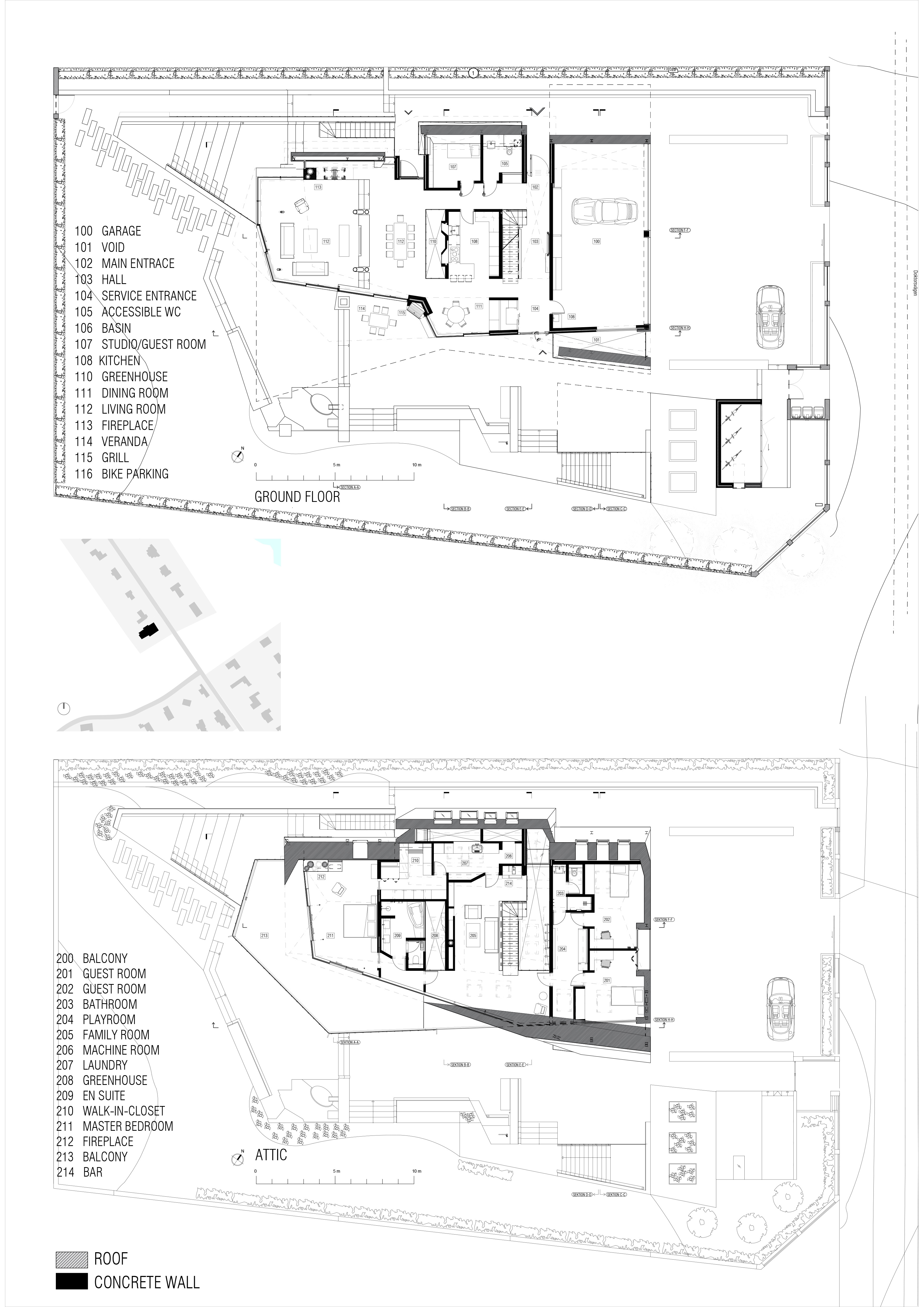
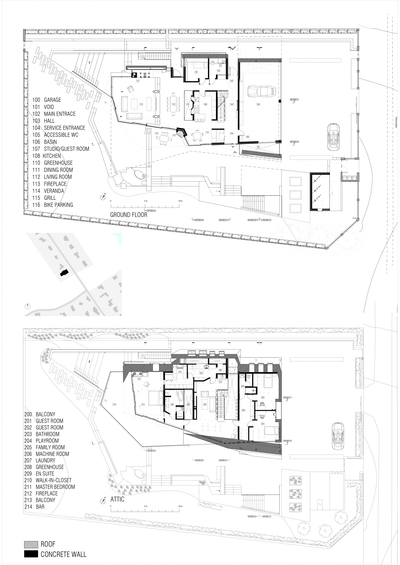
VILLA ANDERSSON is a single family home located in Frösakull, overlooking the sea of Kattegatt.

The house is designed to have “lungs”. These “lungs” are a combination of large voids and skylights that together create a passive ventilation method while providing an abundance of natural light. When opening a skylight, a chimney effect occurs in the void and a natural circulation is achieved. Due to regulations, the project is also equipped with an active ventilation system that can ensure a pleasant indoor climate in case of extreme weather conditions or during harsh winters.
The project consists of two architectonic bodies, a rectangular concrete core and a protective shell folding over itself. The shell, which is made of a metal construction and cladded in wooden panels, fuses with the concrete core creating a building envelope that blurs the lines of the traditional architectural elements.
The protective shell’s outside is clad with carbonized “Accoya”, wood processed with the Japanese method of “Shou-Sugi-Ban”. This process ensures that the wood is protected from rain, rot and pests. The inside of the shell is clad in oak panels while other walls and soffit are made of concrete




BLT Built Design Awards 2026
Privacy Overview

This website uses cookies so that we can provide you with the best user experience possible. Cookie information is stored in your browser and performs functions such as recognising you when you return to our website and helping our team to understand which sections of the website you find most interesting and useful.