JOIN BLT AWARDS 2026

 

Shift House

  • Prize
    Honorable Mention in Architectural Design / Residential
  • Design Company
    Measured Architecture
  • Lead Designer
    Clinton Cuddington + Piers Cunnington
  • Design Team
    James Papa, Ryan Arceneaux, Hannah Newton
  • Architecture Firm
    Measured Architecture
  • Interior Designer
    Measured Architecture
  • Construction Company
    Powers Construction
  • Photo Credit
    Ema Peter
  • Project Location
    Vancouver, Canada
  • Project Date
    2018

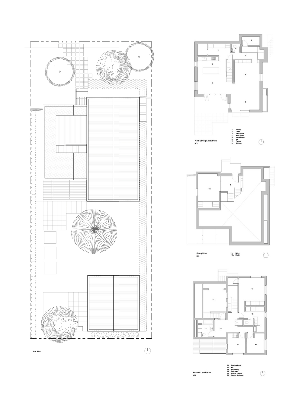
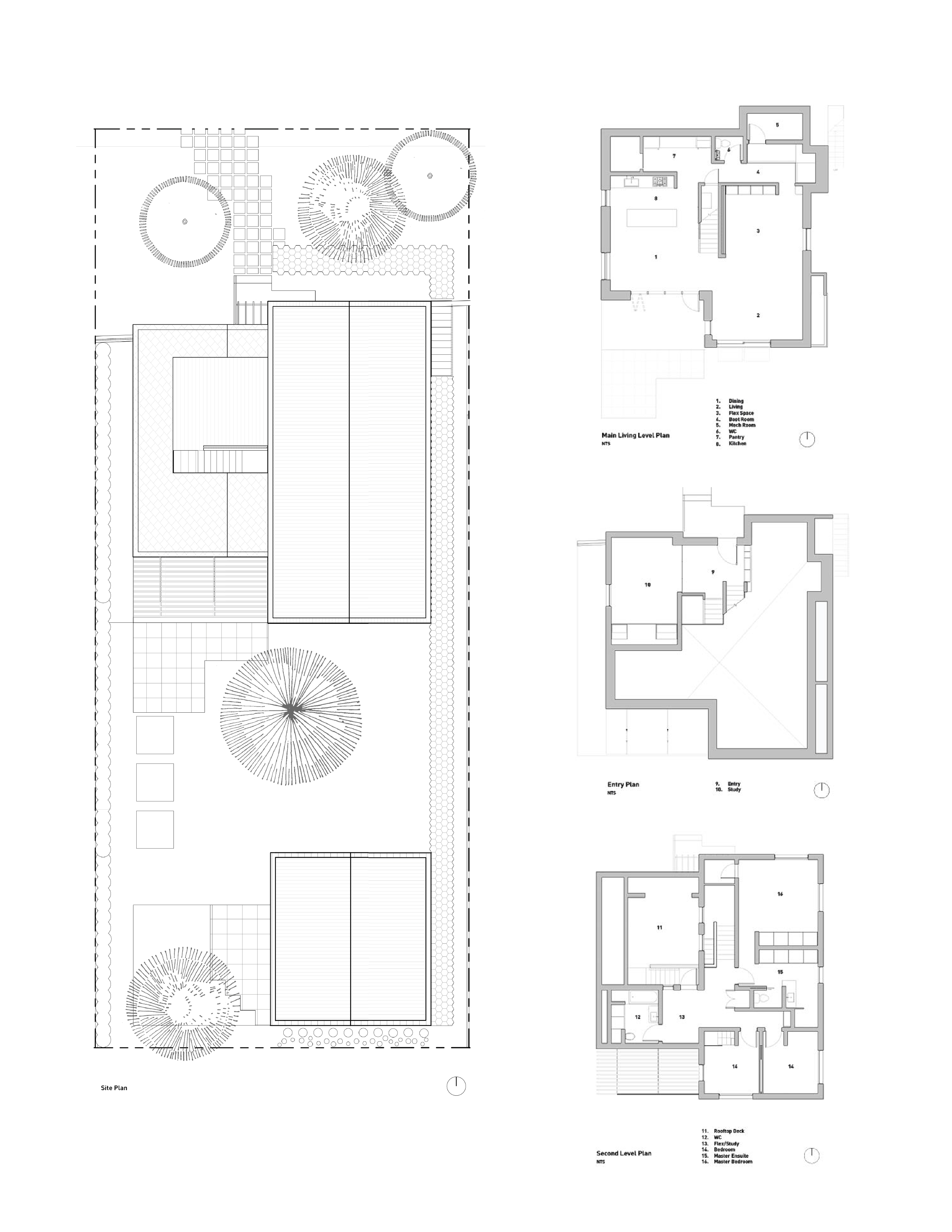
Shift House sits on a family-friendly street in Vancouver’s east side. Its massing of two distinct ridged elements reflect and respect the common architectural silhouette of the neighborhood while expressing a distinct and playful identity. This sense of play starts with the outside. The cladding, a 45-degree pixelated cedar shake pattern, picks up the contextual coloration of the site, referencing the unpretentious diamond shingle of a fisherman’s shack. Inside, exposed galvanized conduit lines, exposed structure and construction-grade plywood cabinetry are all part of the language of the house — a considered composition of coarse and rough materials that together evoke a modest yet unmistakably modern typology of style. The 10-foot drop from front to back provided a unique opportunity to explore volumes within space. Upon entering Shift House, you rise to the sleeping quarters or descend to the living areas. This design leverages stair volume to create a stacked effect, engaging passive cooling. Shift House was completed with a small yet intimate team of artisans.




BLT Built Design Awards 2026
Privacy Overview

This website uses cookies so that we can provide you with the best user experience possible. Cookie information is stored in your browser and performs functions such as recognising you when you return to our website and helping our team to understand which sections of the website you find most interesting and useful.