JOIN BLT AWARDS 2026

 

Veil House

  • Prize
    Honorable Mention in Architectural Design / Residential
  • Design Company
    Measured Architecture
  • Lead Designer
    Clinton Cuddington + Piers Cunnington
  • Design Team
    Javed Khan, Ryan Arceneaux, James Papa, Julia Ogier
  • Architecture Firm
    Measured Architecture
  • Interior Designer
    Measured Architecture
  • Construction Company
    Powers Construction
  • Photo Credit
    Ema Peter / Drone picture: Jesse Laver
  • Project Location
    Vancouver, Canada
  • Project Date
    2020

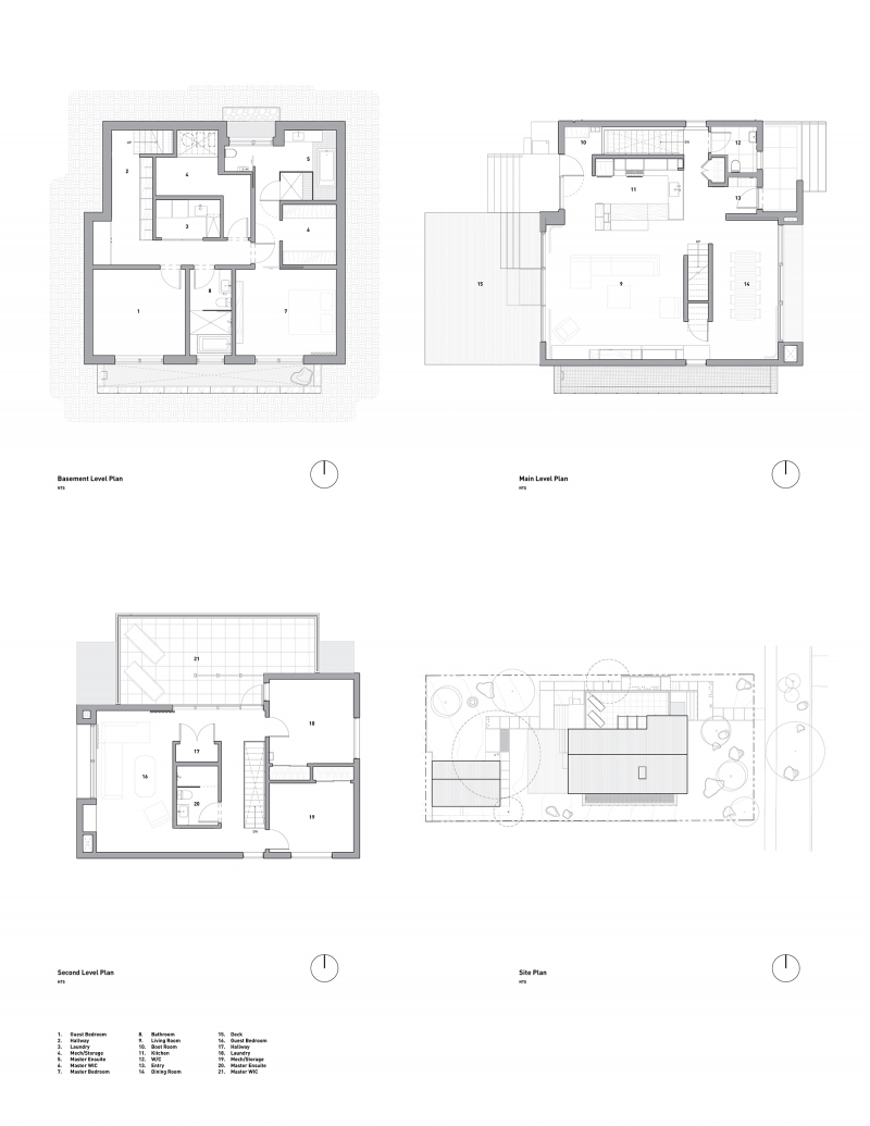
Our client, a family of four, wanted to root themselves in this charismatic neighbourhood in Vancouver. At the same time, this private client requested that their house be a refuge somehow veiled from the street. The architects realized they could achieve this by bucking the extroverted facades typical of Vancouver homes. The designers also focused on sustainably dismantling the existing home on the site—less than 7% entered the landfill—74,000 kg of materials was repurposed and 9,000 kg was sent for reuse on other builds in the region. The front facade features Western red cedar tongue-and-groove stained grey, purposefully muted in display and tone. The home’s energies focus inward, the materials palette warm and simple: whitewashed plywood, painted cabinetry, artisanal subway tile, blackened steel, concrete floors, and linen and felt curtains. This is also a house designed for indoor-outdoor living—a cedar deck flows off the living room, while wide concrete steps beckon off the kitchen. Look at the back of the house: the architects resolved the relationship of forms coming together in a balanced composition pivoting off a central axis.




BLT Built Design Awards 2026
Privacy Overview

This website uses cookies so that we can provide you with the best user experience possible. Cookie information is stored in your browser and performs functions such as recognising you when you return to our website and helping our team to understand which sections of the website you find most interesting and useful.