JOIN BLT AWARDS 2026

 

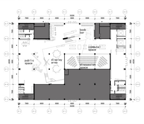
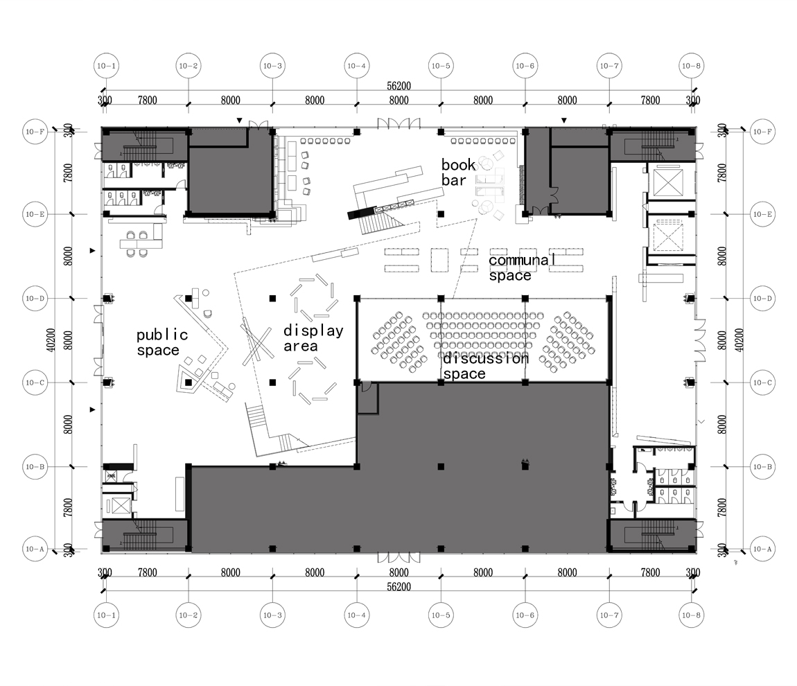
The Tension of Form and Space

  • Prize
    Honorable Mention in Interior Design / Institutional
  • Design Company
    Hangzhou SATYOO Culture and Creativity Co.,Ltd
  • Lead Designer
    Xiaozhe Pan

Because of the natural difference between physical form of space and human feelings, tension is generated, which is based on the conscious perception of the expansion of physical space.




BLT Built Design Awards 2026
Privacy Overview

This website uses cookies so that we can provide you with the best user experience possible. Cookie information is stored in your browser and performs functions such as recognising you when you return to our website and helping our team to understand which sections of the website you find most interesting and useful.