JOIN BLT AWARDS 2026

 

NCCU Center for Public and Business Administration Education

  • Prize
    Honorable Mention in Architectural Design / Educational
  • Design Company
    JJP Architects and Planners
  • Lead Designer
    Joshua J. Pan, Chungwei Su
  • Design Team
    Vincent Wang,Rafael Martinez,S.T. Yeh,Y.P. Weng,Maya Cheng,N.T Su,S.F.Huang,C.L.Yang,W.C.Tang
  • Architecture Firm
    JJP Architects and Planners
  • Construction Company
    Li Jin Engineering Co., Ltd.
  • Photo Credit
    Shawn Liu Studio, Yue-Lun Tsai
  • Project Location
    Taipei, Taiwan
  • Project Date
    2021.08

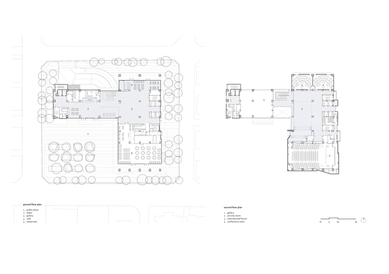
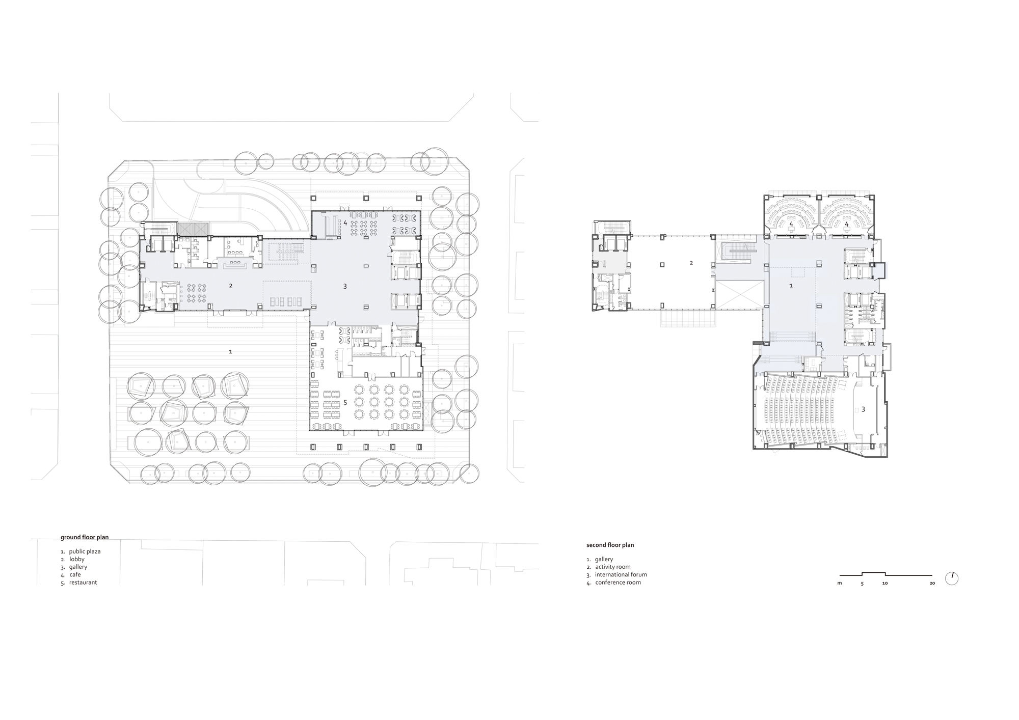
NCCU Center provides executive education for senior civil servants and industry leaders. Having outgrown its original building, the project is conceived as both a conceptual and architectural microcosm of the university and the city.
Situated within a vibrant mixed-use neighborhood, the horizontal axis arrangement of the main campus is turned into a vertical orientation. The program elements are then configured and stacked using a modular grid system and split into two volumes. One volume houses the academic and conference elements and is clad in stone, while the other comprises of 100 guest rooms with an exposed concrete facade. In between, a series of transparent volumes, namely the lobby, atrium and cafe, project the center’s inner workings to the city beyond. The major functional spaces are reachable through a series of hierarchically and sequentially arranged public areas, filled with daylight and ventilated naturally. A 30-meter high central atrium takes the place of the tradition campus quad, which is further enlivened by the glass pods of small meeting room dramatically protruding into the void. The various landscaped terraces further foster social and academic interations.

Bio
JJP is an architectural and planning firm dedicated to providing creative solutions for the built environment. Founded in January, 1981 by Mr. Joshua Jih Pan, FAIA and a recipient of the Taiwan National Award for Arts, the firm is based in Taipei, Taiwan with offices in Beijing, Shanghai and Xiamen. The firm combines talented design capability and diversified technical experience into a comprehensive, world-class package for clients in Taiwan and around the globe.




BLT Built Design Awards 2026
Privacy Overview

This website uses cookies so that we can provide you with the best user experience possible. Cookie information is stored in your browser and performs functions such as recognising you when you return to our website and helping our team to understand which sections of the website you find most interesting and useful.