JOIN BLT AWARDS 2026

 

ATS Office design

  • Prize
    Honorable Mention in Interior Design / Workplace / Office
  • Design Company
    YHD
  • Lead Designer
    Antonio Berton
  • Project Location
    shanghai
  • Client
    ATS
  • Project Date
    2021.1

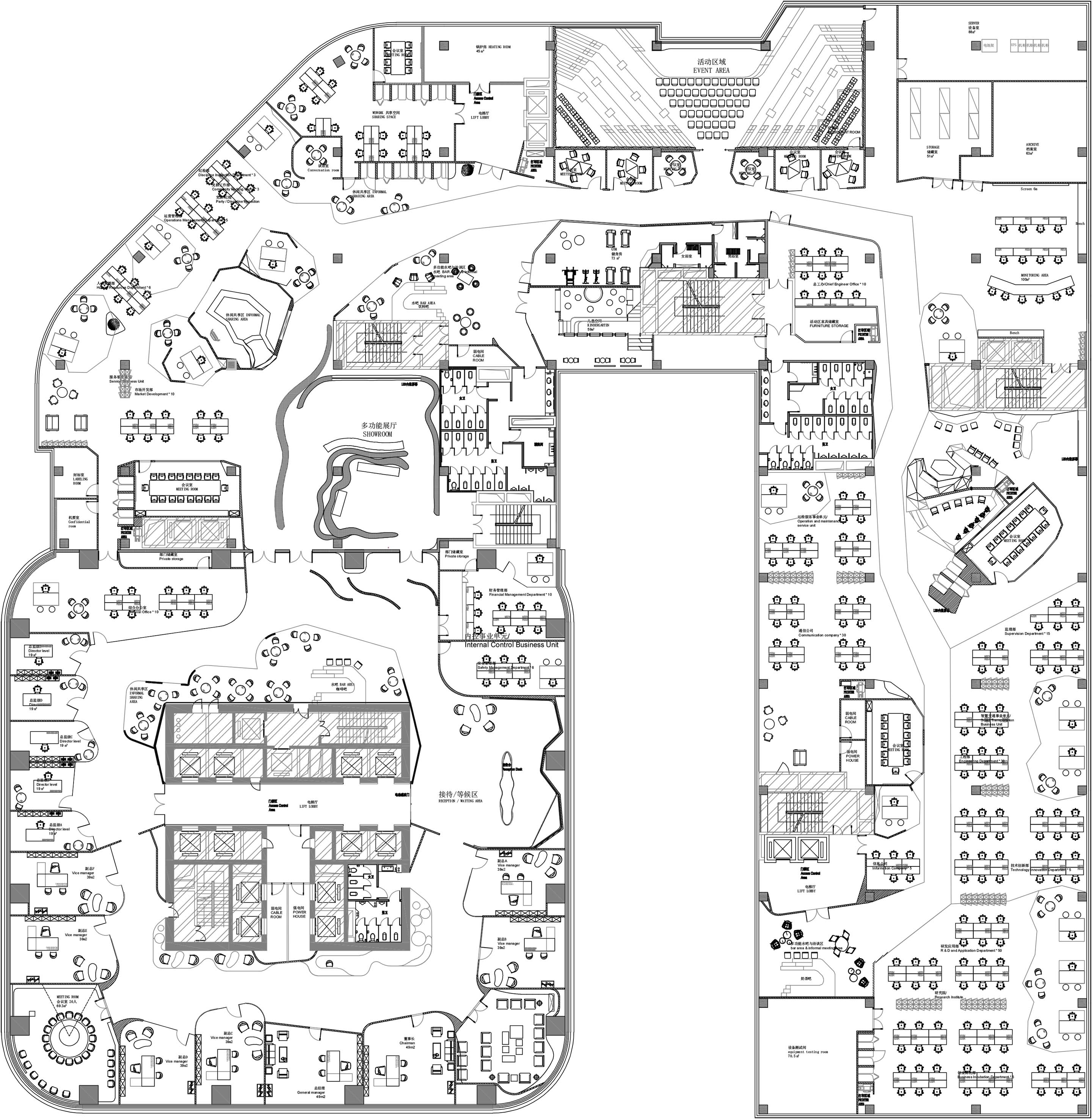
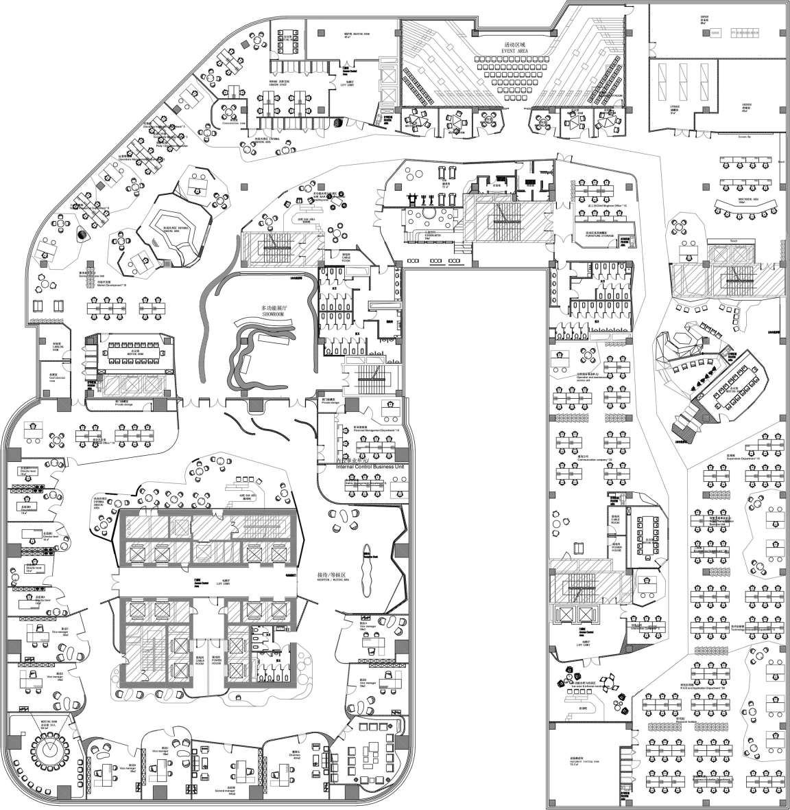
The headquarters of ATS, a ground-breaking IT company known for its creative mindset, is located on two floors of an office building in the center of Shenyang, a city in the north of China.

Young H Design, the architectural firm behind the project, took as its inspiration the client’s day-to-day business operations, which involve integrating digital and physical data on transportation into one online platform. The idea was to create a design language which is a balance between rigid faceted surfaces, representing the abstract network of coordinates connecting the virtual world of data, teamed with more gentle lines, which symbolize physical landscapes found within the natural world.




BLT Built Design Awards 2026
Privacy Overview

This website uses cookies so that we can provide you with the best user experience possible. Cookie information is stored in your browser and performs functions such as recognising you when you return to our website and helping our team to understand which sections of the website you find most interesting and useful.