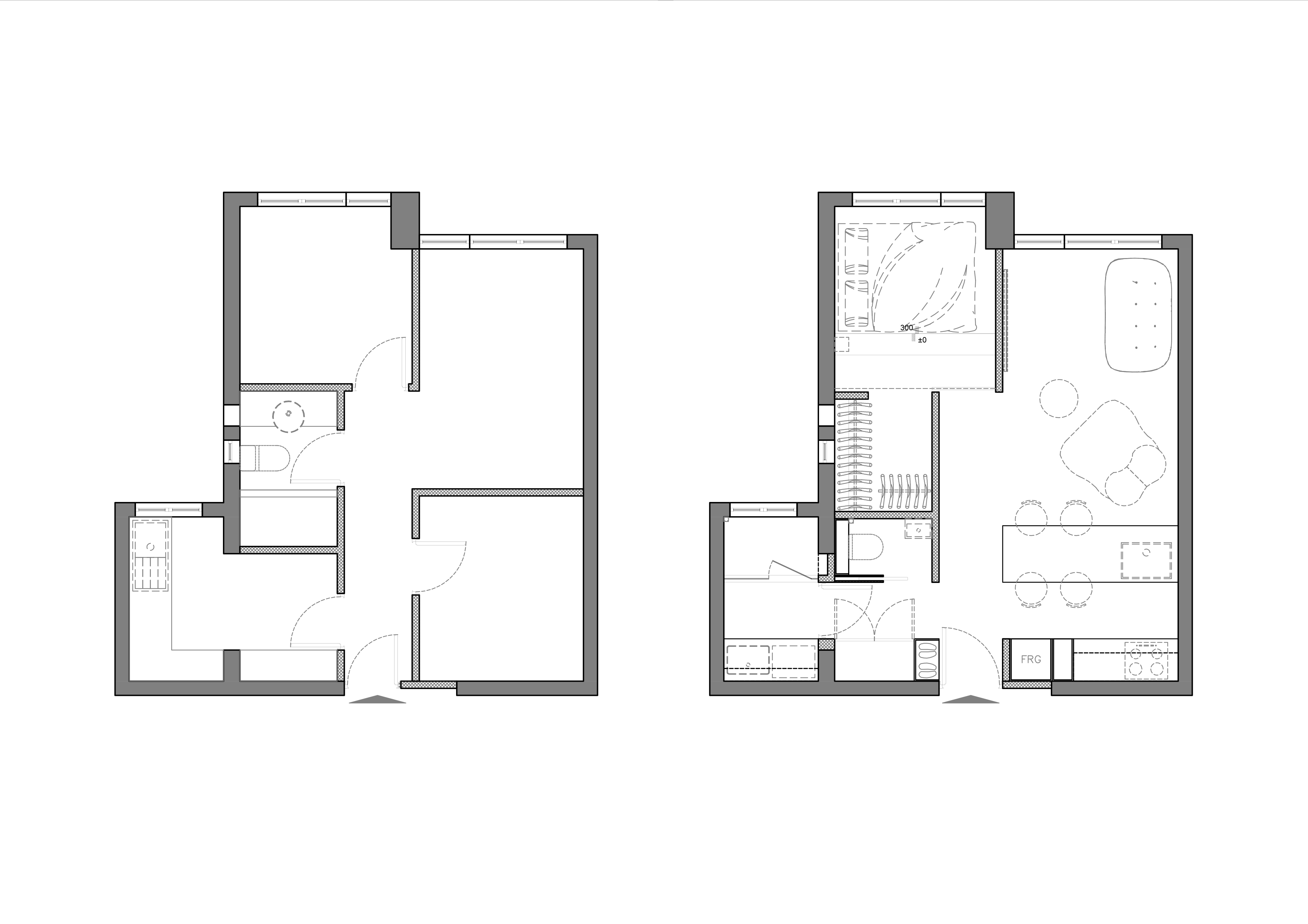
Project of 300 ft2 apartment – A feast of Black, far more than Black

  • Prize
    Honorable Mention in Interior Design / Apartment
  • Design Company
    in Him's Interior Design
  • Lead Designer
    Samuel Lam

Black, the most contractile color, usually represents boring, depression, negative; Nothing is absolute, this project may change your opinion a bit.

Black is being used to frame the structure, Main wall & floor merged in piece that enhancing visual extension and weakening boundary, light grey ceiling connects with window and spreads sunlight, further enlarge volume of the house.

Black is also being chosen as the main colour, furniture is selected with various types of reflective material, their shape are outlined by touch of lighting, presenting plentiful and identical of Black.

The whole concept is begun with a streak of light in the darkness. Every cloud has a silver lining.




BLT Built Design Awards 2026
Privacy Overview

This website uses cookies so that we can provide you with the best user experience possible. Cookie information is stored in your browser and performs functions such as recognising you when you return to our website and helping our team to understand which sections of the website you find most interesting and useful.