JOIN BLT AWARDS 2026

 

Xinhua County YuanQuan Children's Public Library

  • Prize
    Honorable Mention in Interior Design / Public Building
  • Design Company
    Yuan Ye Architects
  • Lead Designer
    YUAN Ye
  • Design Team
    WANG WEI, Mariano Matteo
  • Architecture Firm
    Yuan Ye Architects
  • Interior Designer
    Yuan Ye Architects
  • Construction Company
    Loudi Jieda Decoration Engineering Co., Ltd
  • Photo Credit
    YuanQuan Children's Public Library Stuff
  • Project Location
    Xinhua County, Hunan Province,China
  • Client
    Xinhua County YuanQuan Children's Public Library
  • Project Date
    09/2022

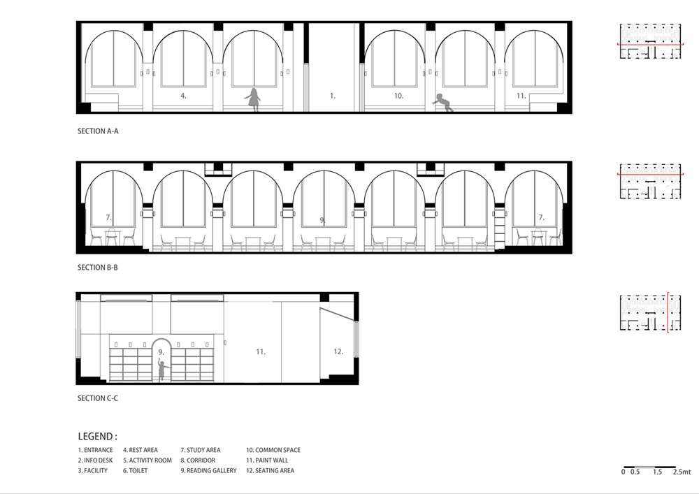
The reading hall is located on the second floor of a street-facing commercial building in Xinhua County, Hunan Province. The original space is in a rough state, with an area of 340 square meters. The interior is horizontally divided into two long and narrow parallel parts by three rows of concrete square columns with a spacing of only 3.4 m (axis spacing), and a gap of about one meter is left between the north and south rows of columns and the exterior wall. After careful study of the original plan and site survey, the architect decided to take advantage of the limitations of the dense column network and space division to implant another new space form—a vault, "eliminate" the existence of columns, transform the fragmented and impersonal parallel space into a "spiritual" space, accommodate the function of children's reading hall, and create a highly recognizable and symbolic learning place. Bookshelves are embedded in the arch wall to form a "book wall", and this row of space is divided into seven small "studies". A 1.5m wide arcade passage runs through the seven vaulted study rooms and divides each small study room into two small spaces.se




BLT Built Design Awards 2026
Privacy Overview

This website uses cookies so that we can provide you with the best user experience possible. Cookie information is stored in your browser and performs functions such as recognising you when you return to our website and helping our team to understand which sections of the website you find most interesting and useful.