JOIN BLT AWARDS 2026

 

The Daylight Circle of Fullness

  • Prize
    Honorable Mention in Interior Design / Residential
  • Design Company
    House of Sunshine
  • Lead Designer
    Wei-Cheng Chiu
  • Photo Credit
    Yaocheng Chen
  • Project Location
    Taichung City, Taiwan
  • Project Date
    2021/12/23

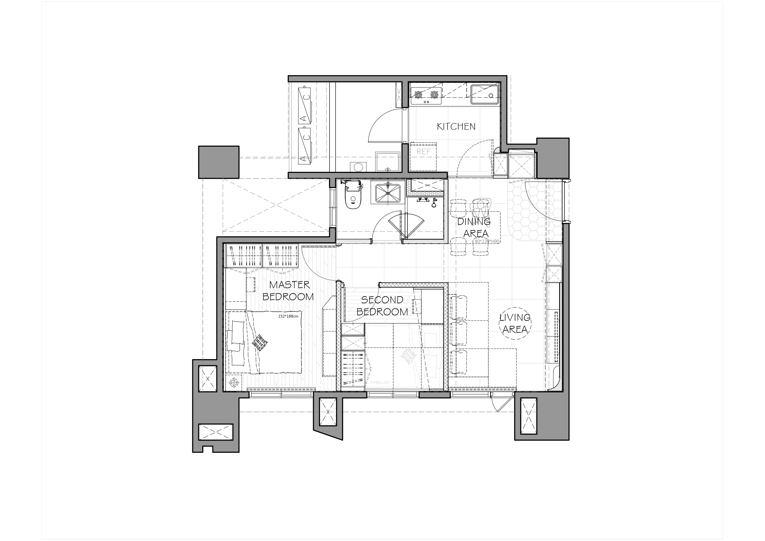
This is an interior design project for a newlywed couple's home. The couple has an intense emotional bond with their family, and this has served as the inspiration for the design of their home. With a focus on elements like "daylight" and "roundness," the design team has incorporated the daughter's name and wedding anniversary into the design to symbolize their affection and care. The designer is committed to bringing the owner's vision to fruition with the highest precision and excellence, capturing the essence of family emotion in their home.

As one enters, a lovely yellow wall lamp greets you, casting a gentle glow that washes away the fatigue of a busy day. The space layout is intelligently planned, with an open design approach that integrates the living and dining areas. Glass partitions define the kitchen area, giving it a sense of independence while maintaining openness. The couple's wedding anniversary is lovingly engraved on the stainless steel door handle, a testament to their tender love. To prevent small spaces from crunching, the dining table has transparent legs, giving it a light and airy feel.




BLT Built Design Awards 2026
Privacy Overview

This website uses cookies so that we can provide you with the best user experience possible. Cookie information is stored in your browser and performs functions such as recognising you when you return to our website and helping our team to understand which sections of the website you find most interesting and useful.