JOIN BLT AWARDS 2026

 

Cliff Hotel

  • Prize
    Honorable Mention in Architectural Design / Commercial
  • Design Company
    Guangdong Prefabricated Building Design Institute Co. , Ltd.
  • Lead Designer
    Wei Zhang
  • Project Location
    Jianchuan County, Yunnan Province

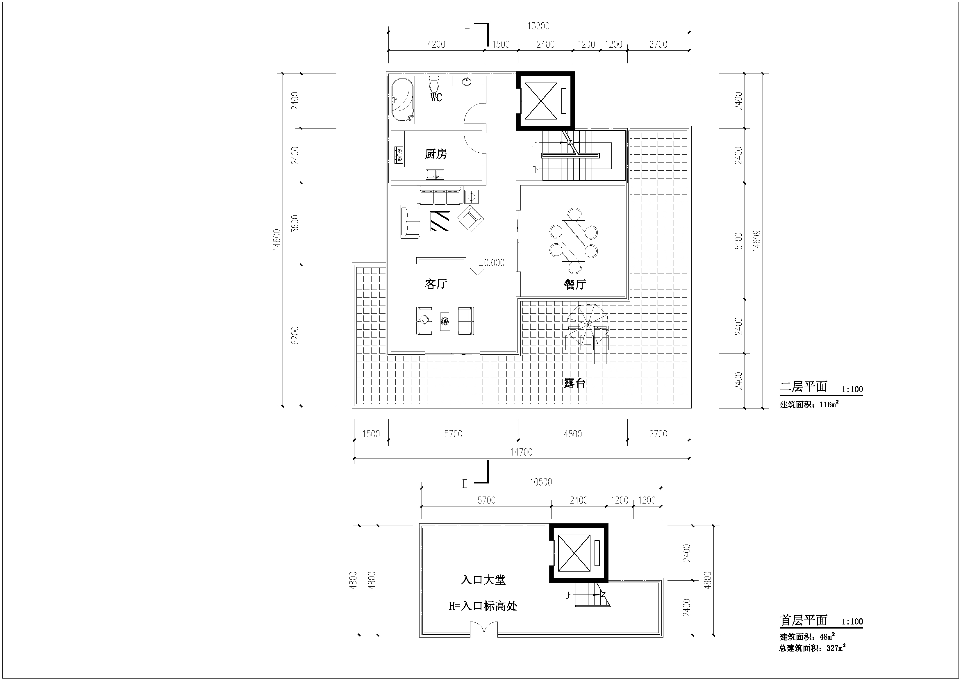
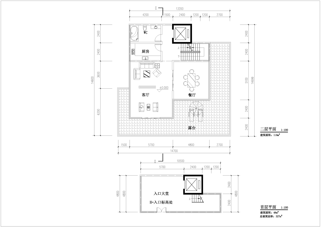
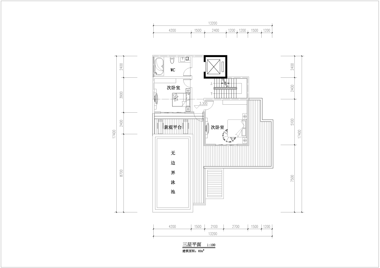
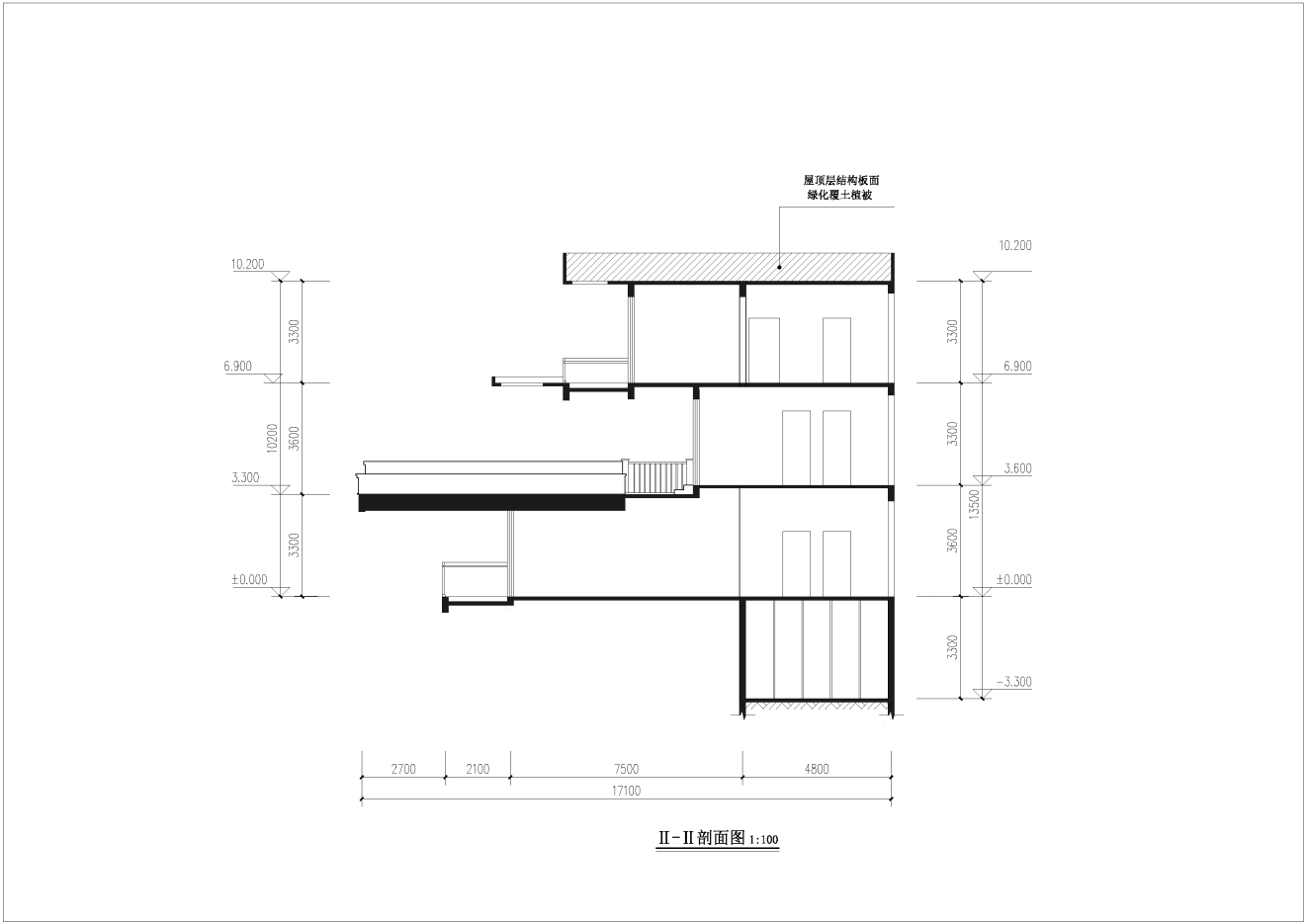
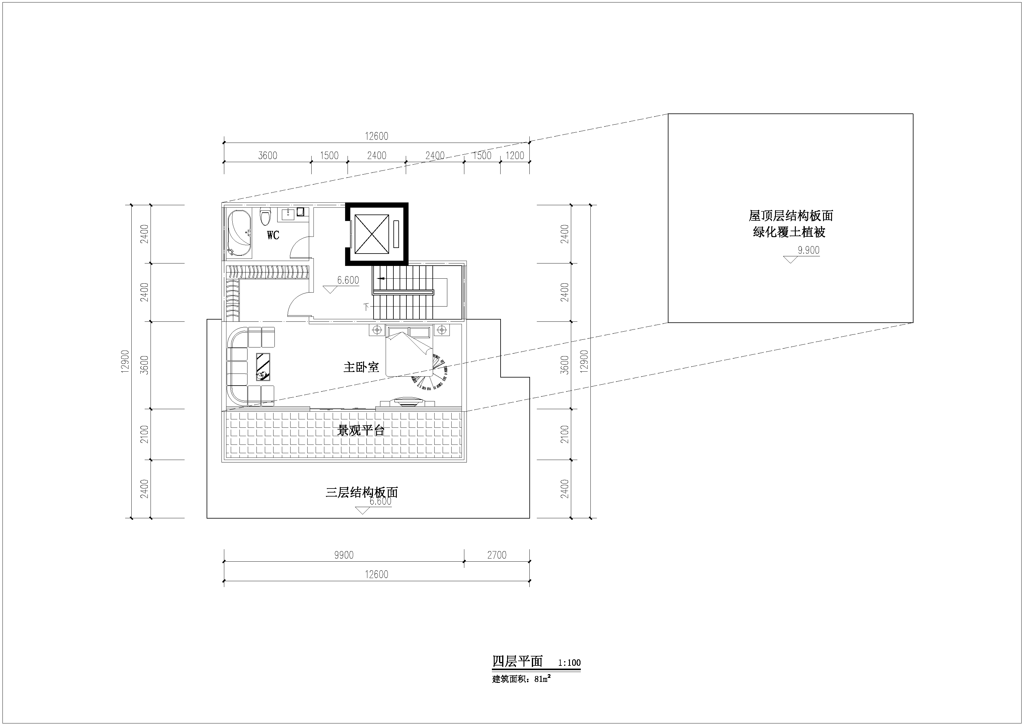
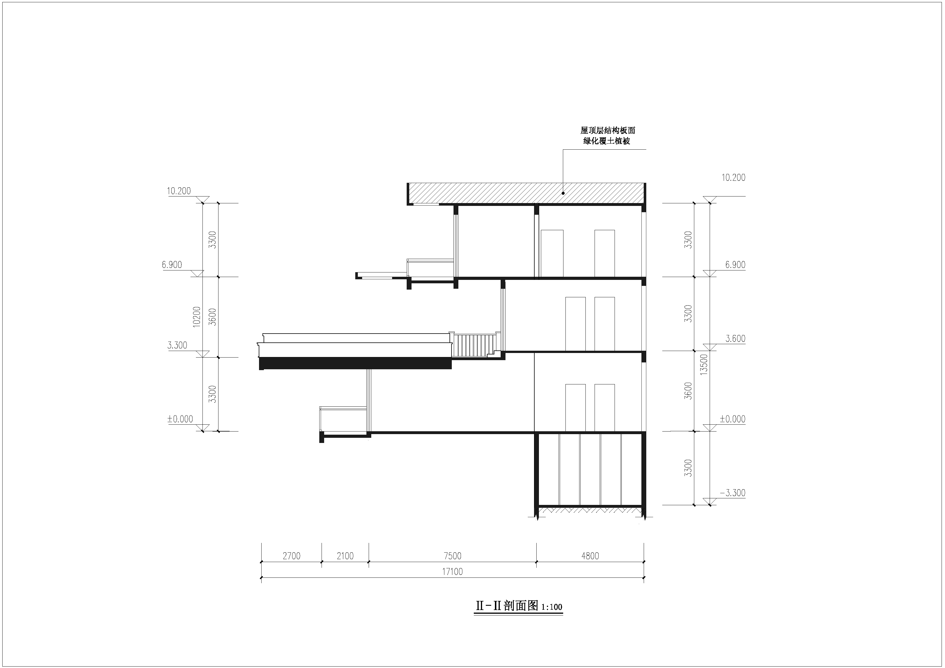
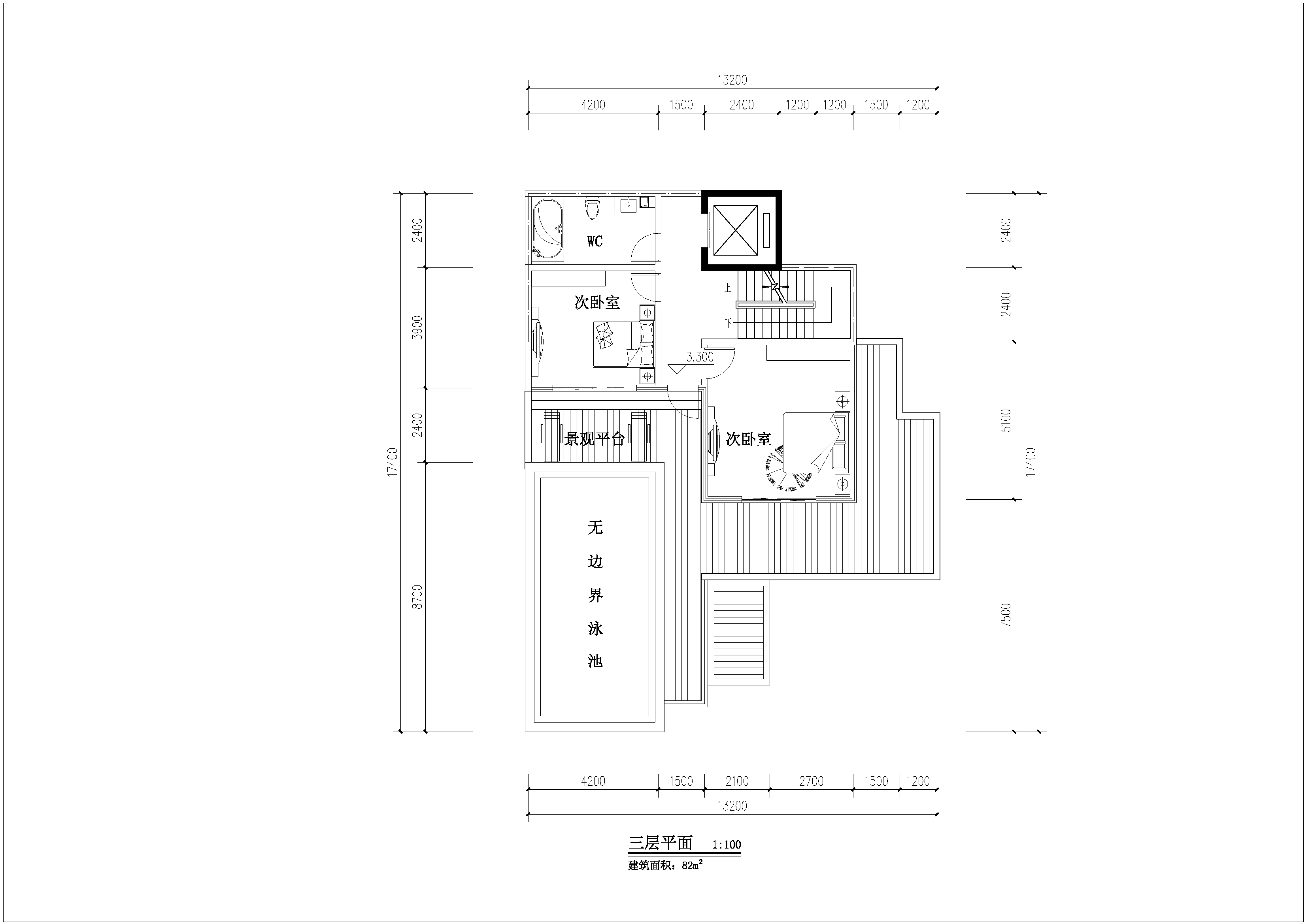
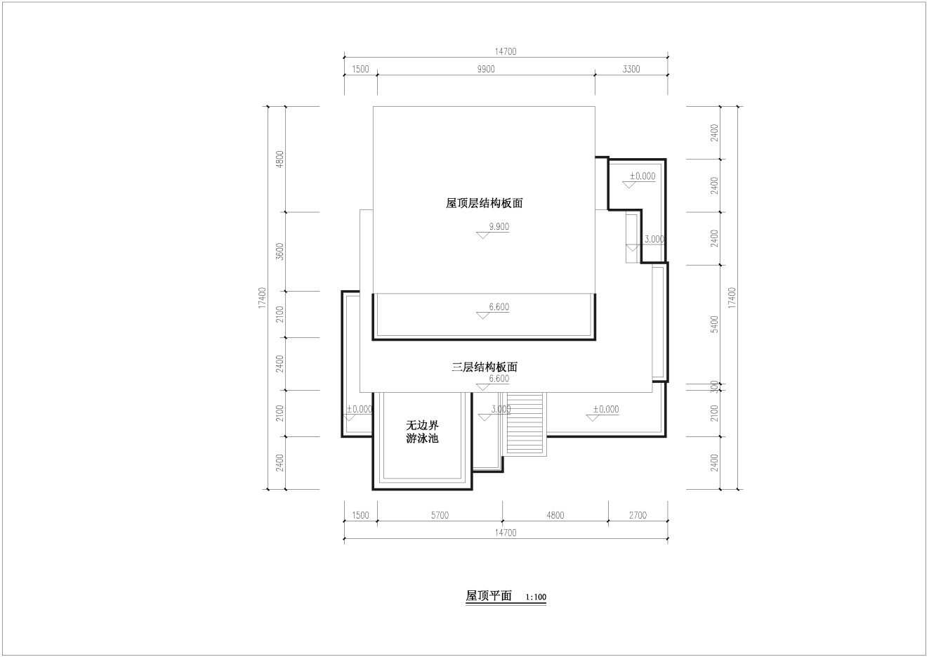
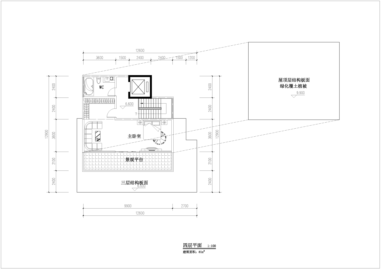
The cliff hotel is located at the foot of Modou Mountain in Jianchuan County, Yunnan. It adheres to the concept of "integrating four states" by combining traditional culture with modern design. The hotel incorporates elements of Bai ethnic architecture as its foundation, while providing modern facilities and a comfortable accommodation environment. The overall design of the hotel respects the environment and harmoniously coexists with nature, allowing guests to enjoy the magnificent mountains and natural landscapes surrounding it. The choice of building materials is influenced by local culture, with a simple and rustic exterior and clean and concise lines that emphasize the beauty of natural materials.




BLT Built Design Awards 2026
Privacy Overview

This website uses cookies so that we can provide you with the best user experience possible. Cookie information is stored in your browser and performs functions such as recognising you when you return to our website and helping our team to understand which sections of the website you find most interesting and useful.