JOIN BLT AWARDS 2026

 

Modular Villa in Mallorca

  • Prize
    Honorable Mention in Architectural Design / Residential
  • Design Company
    Casas Inhaus
  • Lead Designer
    Casas inHAUS
  • Architecture Firm
    Casas Inhaus
  • Construction Company
    Casas Inhaus
  • Photo Credit
    Eduardo Marquez
  • Project Location
    Mallorca
  • Project Date
    03/01/2021
  • Project Link

The nine 3D modules that shape this 684 square meters premium prefabricated villa, traveled by truck on a ship between Valencia and the island of Mallorca.

In the Balearic Islands the building works are banned for 4 months a year to secure the rest of the inhabitants for summer holidays. To build an offsite house was the best and faster option.

We took care of the entire project of this modular house that blends in perfectly with its surroundings. A large garden with different levels, a swimming pool with solarium and 'firepool' and views of the Mediterranean and the mountains. On the roof, the solar panels are integrated, being completely invisible from the outside.

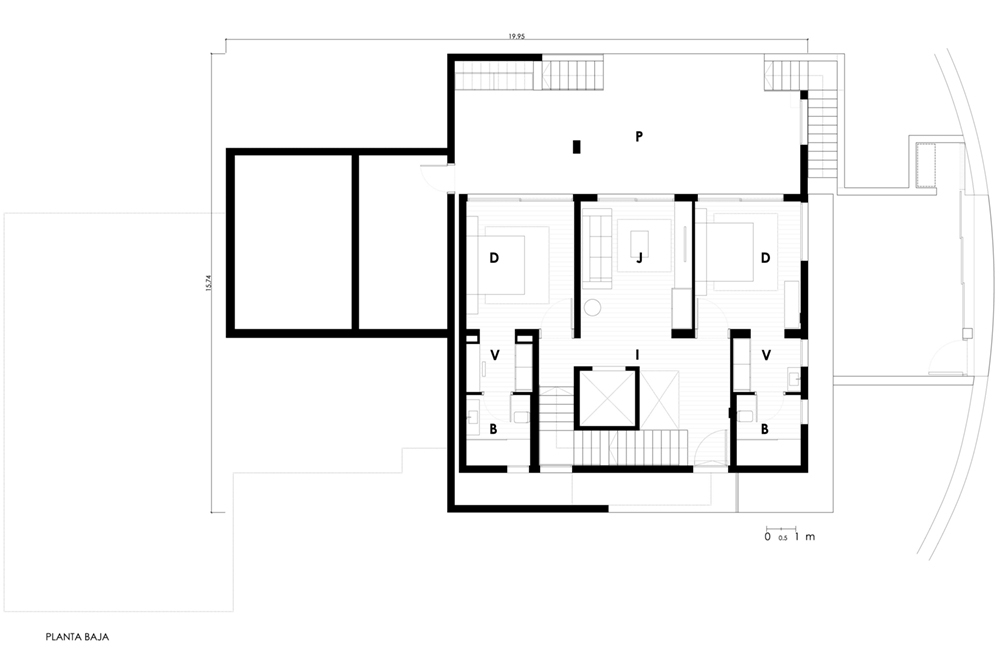
On a plot with a certain unevenness and beautiful views of the Mediterranean Sea, this custom-made 3-storey house is located. The volume of the house closes on its rear façade, which overlooks the public access road, and opens the views of all the rooms towards the sea. The large glass panels allow the spaces to establish a harmonious dialogue with the environment and blur the boundaries between interior and exterior.

Finished house video: https://youtu.be/_zNWaBgGaV0

Bio
At inHAUS, one of the leading companies in the sector of the sale of prefabricated concrete houses, we are known for always offering a quality service focused on satisfying the needs and tastes of each individual client.

Other prizes
IF Design Awards, Iconic Awards - Innovative Architecture - German Design Council, Offsite Awards, Quality Innovation Award, World of Modular Awards, Luxury Lifestile Awards




BLT Built Design Awards 2026
Privacy Overview

This website uses cookies so that we can provide you with the best user experience possible. Cookie information is stored in your browser and performs functions such as recognising you when you return to our website and helping our team to understand which sections of the website you find most interesting and useful.