JOIN BLT AWARDS 2026

 

Double Slash // Coffee Space

  • Prize
    Honorable Mention in Architectural Design / Small Architecture
  • Design Company
    Spacy Architecture
  • Lead Designer
    Pramoth Kitkanasiri
  • Architecture Firm
    Spacy Architecture
  • Interior Designer
    Spacy Architecture
  • Lighting Design
    Spacy Architecture
  • Construction Company
    By project owner
  • Photo Credit
    Mr. Rungkit Chareonwat
  • Project Location
    Bangkok, Thailand
  • Client
    Mr.Gornphong Wiwatchaikamol
  • Project Date
    January 2022

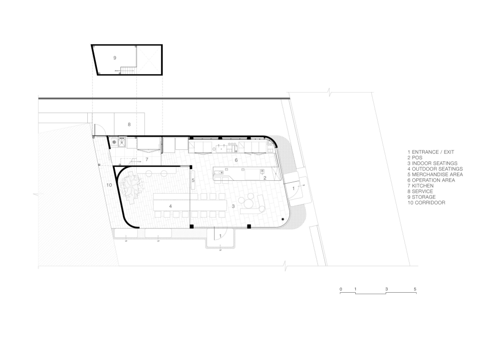
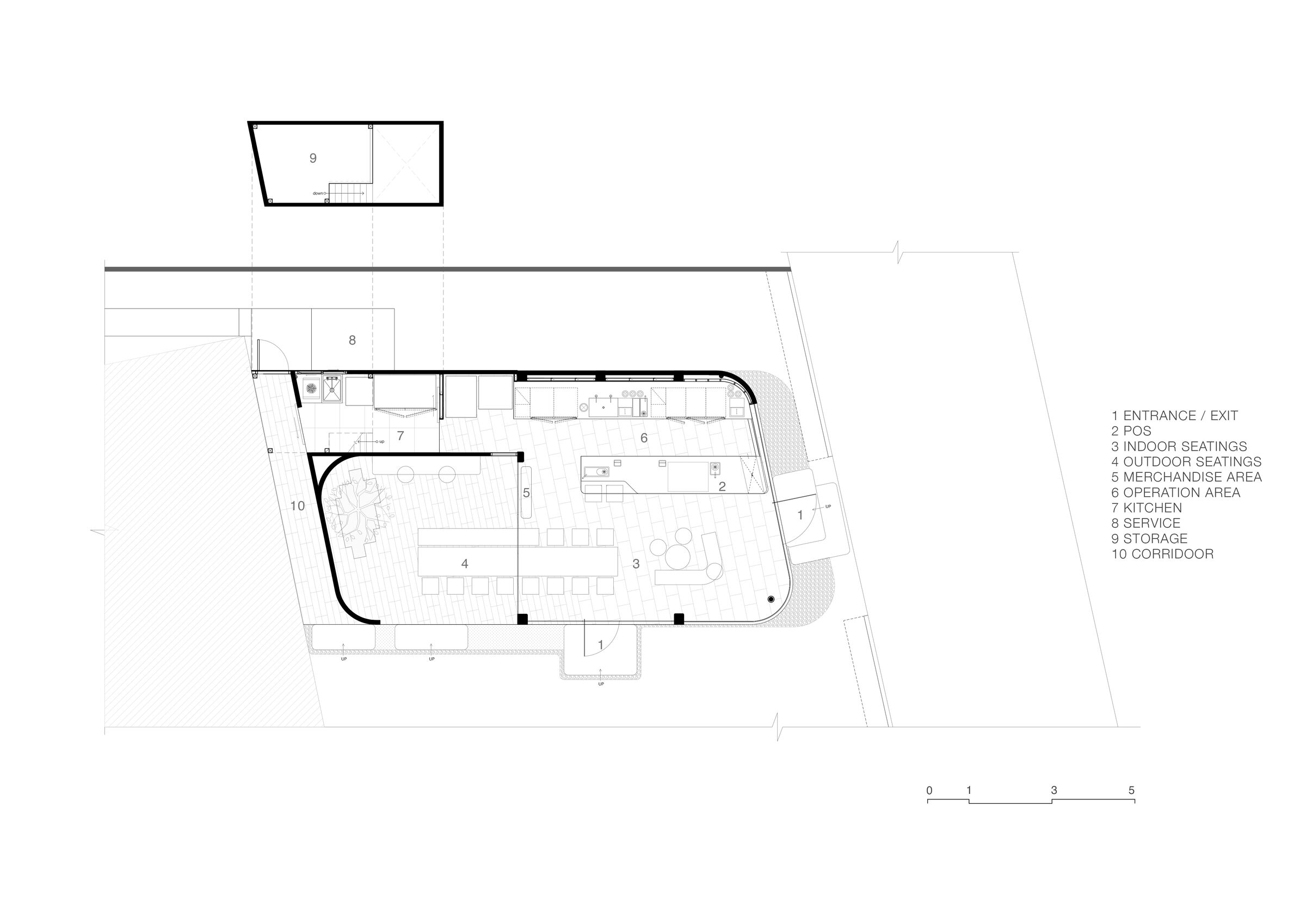
Double Slash's architectural identity was influenced by streamline moderne style during Art Deco period, when aerodynamic design was basically applied to household products and architectures. Without excess ornamentation, both curving form and angled planning orientation build flow and visual movement to the building. Under flat roof structure, the long horizontal framework with minimal distraction humbly accommodates plain space that enhances the essence of stillness and elevates artisan coffee experience within. The interior space somewhat allows customers to contemplate whatever sensation arising amidst the city of Bangkok.

Glass panels on the architecture establish clear visibility and connectivity between interior and exterior. Curved wall and floating rounded glass corner welcome visitors from every direction and increase movement throughout the footprint. Two-toned oblique floor pattern emphasizes Double Slash’s identity and blurs the interior-exterior boundary from glass panel placed in the middle. Connected wooden tables visually link indoor space with enclosed outdoor surroundings. Concrete finishing on the counter reflects truth to materials and acceptance of nature.




BLT Built Design Awards 2026
Privacy Overview

This website uses cookies so that we can provide you with the best user experience possible. Cookie information is stored in your browser and performs functions such as recognising you when you return to our website and helping our team to understand which sections of the website you find most interesting and useful.