JOIN BLT AWARDS 2026

 

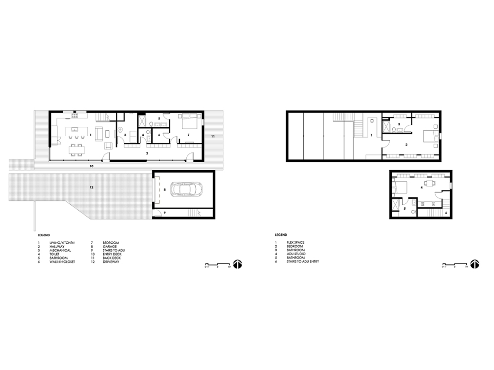
432 Indiana Street

  • Prize
    Honorable Mention in Architectural Design / Residential
  • Design Company
    Studio 804
  • Lead Designer
    DAN ROCKHILL
  • Design Team
    The Students of Studio804_23
  • Architecture Firm
    Studio 804, Inc
  • Interior Designer
    Studio 804, Inc
  • Lighting Design
    Studio 804, Inc
  • Construction Company
    Studio 804, Inc
  • Photo Credit
    Gaffer Photography
  • Project Location
    Lawrence, KS
  • Client
    N/A
  • Project Date
    12 May 2023
  • Project Link

432 Indiana is in the Pinkney neighborhood and is at the bend of the Kansas River and part of the original Lawrence townsite of 1854. We see potential in the location despite the challenges, as we often try to acquire orphaned lots that have not held the interest or area developers but work well with the studio’s interests. The flood zone becomes an extended, forested backyard that feels secluded, despite having to raise the grade and deal with proper submittals with FEMA to assure our compliance with their requirements.
The house has achieved LEED Platinum certification. The highest certification level possible under the U.S. Green Building Council’s (USGBC) standards for sustainable practice.

The neighborhood is among many valuable living amenities. Just a few blocks away, Downtown Lawrence pulses with vibrant shopping, dining, and cultural experiences. Also nearby is the Kansas River which is a National Water Trail with its waterfront parks that extend up to downtown. There is also access to the Lawrence Loop bike route that runs for 22 miles through and around town. As well as being a pedestrian friendly neighborhood, there is easy access to the city bus system.




BLT Built Design Awards 2026
Privacy Overview

This website uses cookies so that we can provide you with the best user experience possible. Cookie information is stored in your browser and performs functions such as recognising you when you return to our website and helping our team to understand which sections of the website you find most interesting and useful.