JOIN BLT AWARDS 2026

 

BuGaan Mengjai

  • Prize
    Honorable Mention in Architectural Design / Residential
  • Design Company
    makeAscene
  • Lead Designer
    Pitchaya Ratpiyasoontorn
  • Design Team
    Vasin Chulewattanaphong, Chitsanupong Runglertnirund
  • Architecture Firm
    makeAscene
  • Interior Designer
    Warranz Design
  • Construction Company
    Koranit Contraction
  • Photo Credit
    BKKgrapher, Blowithand, makeAscene
  • Project Location
    Rama 9 ,Bangkok
  • Client
    Sansiri PLC
  • Project Date
    15/01/2024

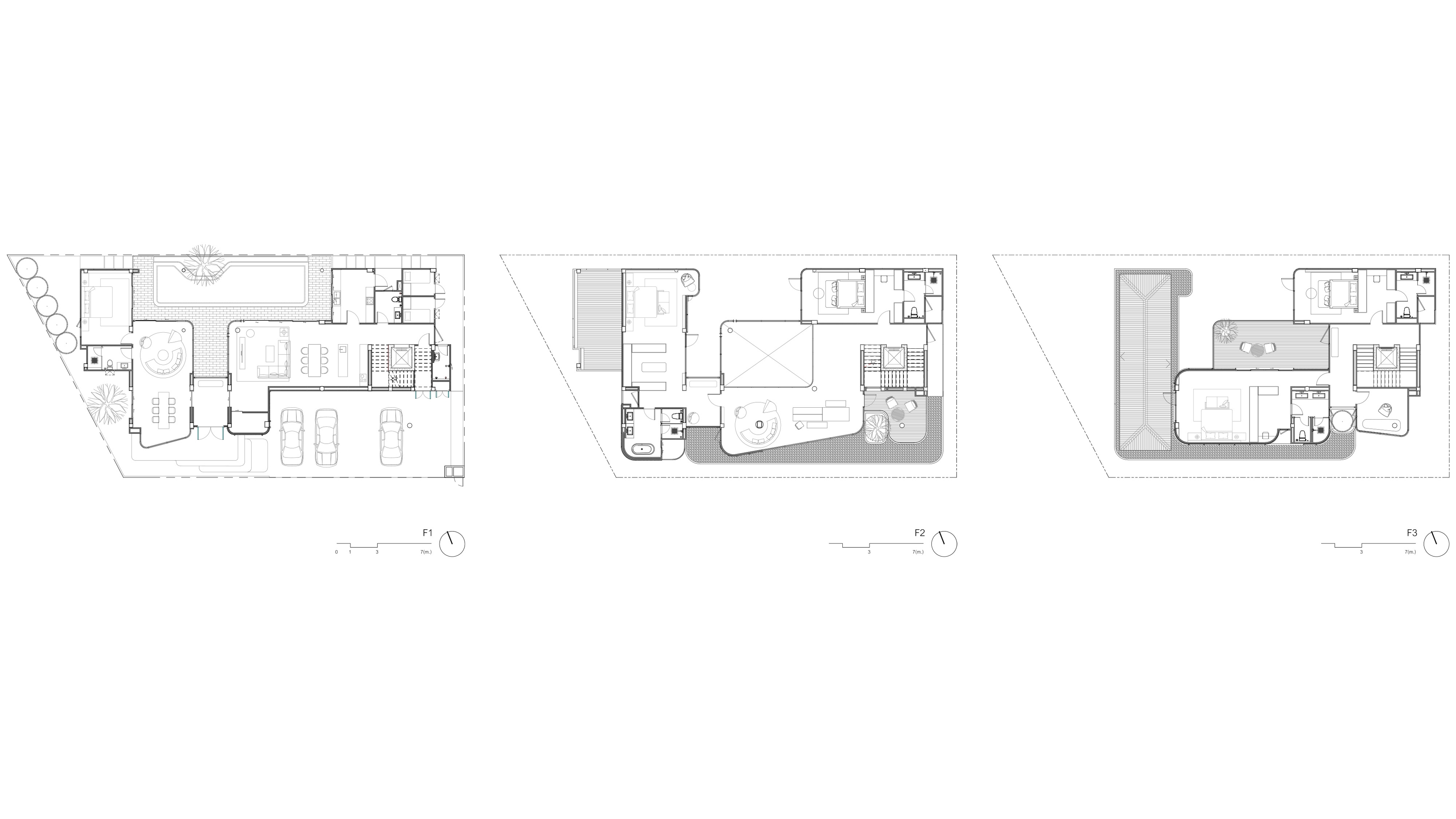
BuGaan Mengjai rethink architectural interpretation in urban living, its name translating to "my freaking house" in Thai, setting a playful tone. Inspired by the smooth lines of natural pebbles, its design breaks away from conventional housing, boasting softened, organic forms.

In contrast to the rigid structures dominating cityscapes, the building mass resemble stacked pebbles, adorned with warm, earthy tones and subtle textures. This unique aesthetic offers a refreshing departure from the ordinary, creating a visual and tactile experience that captivates.

Beyond its refined appearance, the architecture integrates semi-outdoor spaces that blur the boundaries between indoors and outdoors, fostering a deeper connection with nature. Residents are invited to enjoy natural ventilation and daylight while gathering around the central swimming pool, serving as a cooling oasis to the house.

At the heart of the house lies the 'Gu space,' a personalized retreat where residents can express their individuality and passions. This intimate setting adds a layer of uniqueness to the project, enhancing the sense of belonging and pride.

Bio
Architectural & Interior design firm

Other prizes
Archello : one of 25 best architecture firm in Bangkok 2023 Architizer : A+A awards finalist in best commercial firm Archdaily : Fynn 31 condominium building of the year nominee




BLT Built Design Awards 2026
Privacy Overview

This website uses cookies so that we can provide you with the best user experience possible. Cookie information is stored in your browser and performs functions such as recognising you when you return to our website and helping our team to understand which sections of the website you find most interesting and useful.