JOIN BLT AWARDS 2026

 

Music Children Foundation - LYSCW Music Children Centre

  • Prize
    Honorable Mention in Interior Design / Institutional
  • Design Company
    Richards Basmajian
  • Lead Designer
    Bernice Leung
  • Design Team
    Emily Wong/Kenneth Kong/Chan Wai Long
  • Architecture Firm
    -
  • Interior Designer
    Emily Wong, Kenneth Kong, Chan Wai Long
  • Lighting Design
    Richards Basmajian
  • Construction Company
    Law Wing Kee Construction & Decoration
  • Photo Credit
    Gold Name Photography - Tyson Chan
  • Project Location
    The Globe,79 Wing Hong Street, Cheung Sha Wan, Kowloon
  • Client
    Music Children Foundation
  • Project Date
    3 April 2023

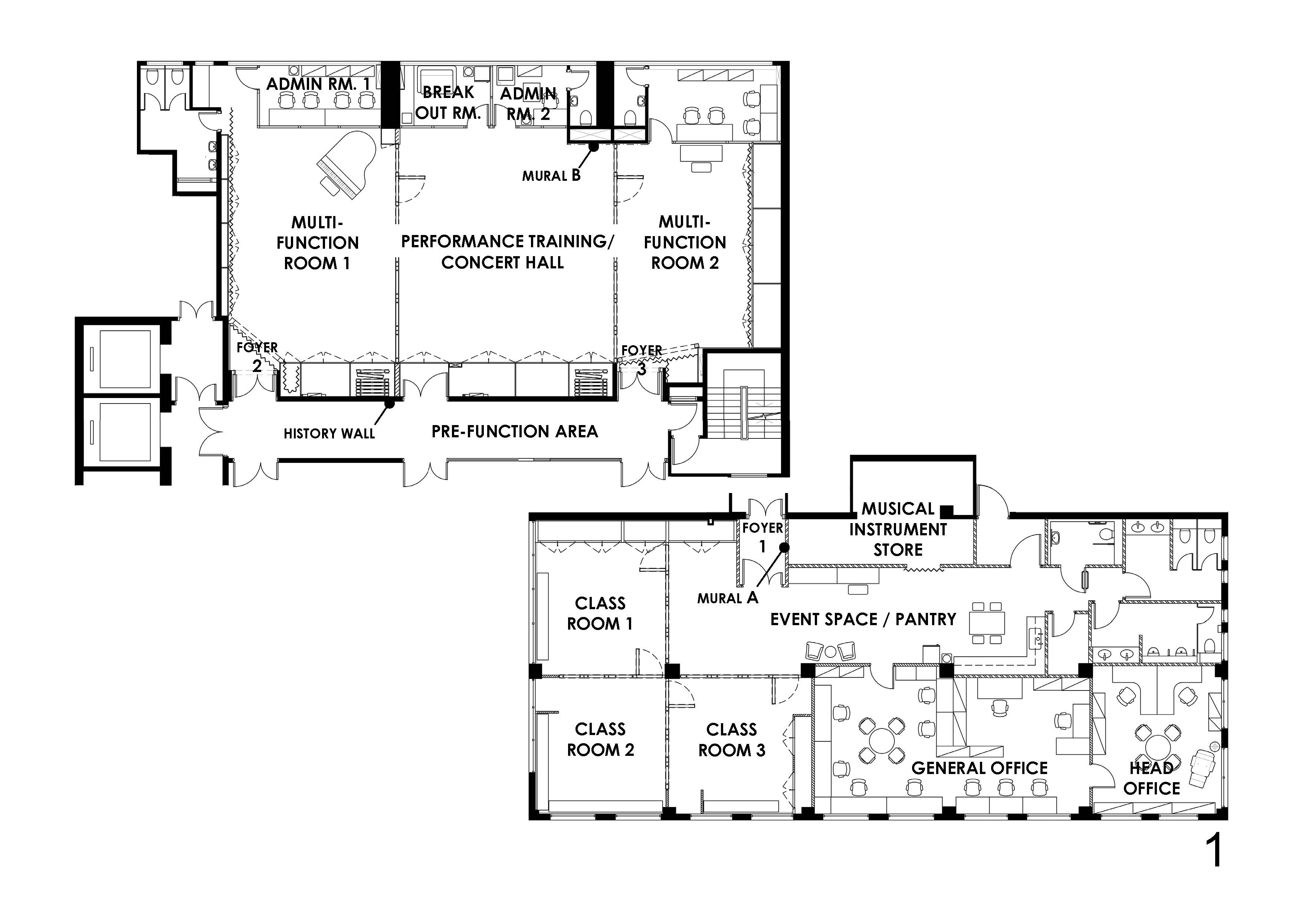
Believing that music should be part of our lives for all of us, MCF launched an NGO to provide free music programs for local underprivileged children under 16.

In 2023, MCF secured two new facilities in the same block to realise this vision: one with 3 classrooms and support; the other a Performance Training Center/Concert Hall.

MCF seek to achieve:

- professional quality, acoustically and aesthetically to facilitate training, practice and performance;

- flexibility to conduct classes of various size/age groups, community/family support, choir/orchestra practice, performance and events;

- efficient use of space to provide a good work environment using recycled furniture;

- creative use of budget and resources, inherited fittings, donated materials and fixtures from suppliers and consultants;

- MCF branding conveyed through murals reflecting their values and the history wall telling their story;

- sustainability with use of locally available and rapidly renewable materials and energy efficient lighting, equipment and appliances.

All to make the voice of change for good in Hong Kong heard OUT LOUD!




BLT Built Design Awards 2026
Privacy Overview

This website uses cookies so that we can provide you with the best user experience possible. Cookie information is stored in your browser and performs functions such as recognising you when you return to our website and helping our team to understand which sections of the website you find most interesting and useful.