JOIN BLT AWARDS 2026

 

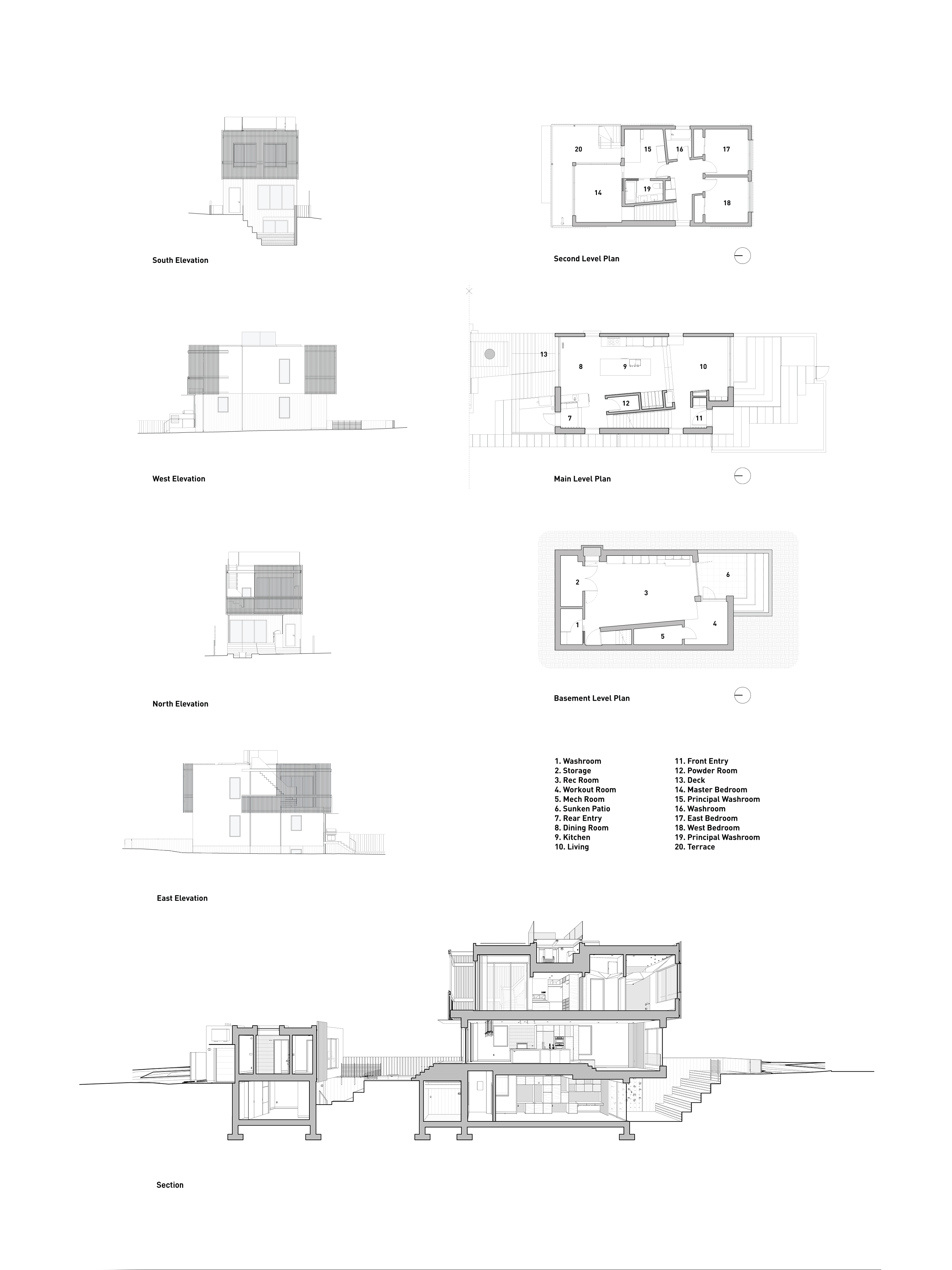
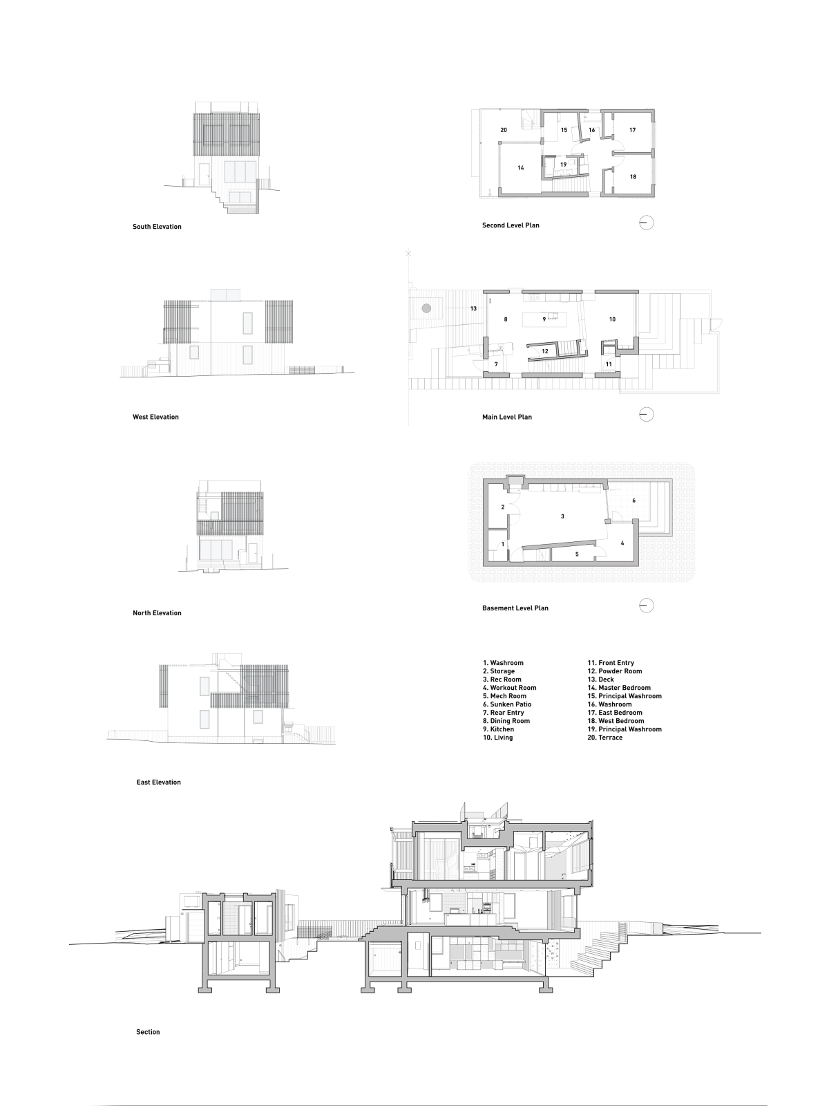
Frame House

  • Prize
    Honorable Mention in Architectural Design / Residential
  • Design Company
    Measured Architecture
  • Lead Designer
    Clinton Cuddington & Piers Cunnington
  • Design Team
    Javed Khan, Annie Sokoloff, Julia Ogier, Claire Purdon, James Papa
  • Architecture Firm
    Measured Architecture
  • Construction Company
    Vanglo Sustainable Construction Group
  • Photo Credit
    Ema Peter Photography
  • Project Location
    Vancouver
  • Project Date
    2023

To frame is to celebrate. Frame House is a play structure designed for everyday living, where children and adults can live and play freely. This is a small house with dignity and presence, using multiple modes of framing to achieve a presence far beyond its modest size. Walls are designed to take a beating; suspended netting can be lounged in or traversed from room-to-room; and kinetic elements transform spaces to frame different levels of openness and privacy. With design ingenuity like this, the Frame house is a demonstration of how rich opportunities for family living can be achieved within a simple construction on a small lot. The luxury of wasted space is one few Vancouverites with young children can afford, and this house delivers, through a clever framing of family living.




BLT Built Design Awards 2026
Privacy Overview

This website uses cookies so that we can provide you with the best user experience possible. Cookie information is stored in your browser and performs functions such as recognising you when you return to our website and helping our team to understand which sections of the website you find most interesting and useful.