JOIN BLT AWARDS 2026

 

Renovation of Exhibition Spaces of Umelka Gallery

  • Prize
    Honorable Mention in Interior Design / Renovation
  • Design Company
    BOGAR Architekti
  • Lead Designer
    Mária Bogárová, Michal Bogár
  • Design Team
    BOGAR Architekti
  • Architecture Firm
    BOGAR Architekti
  • Interior Designer
    Mária Bogárová, Michal Bogár
  • Lighting Design
    JASA, s.r.o. - Ján Straka
  • Construction Company
    STRNAD - Martin Strnad
  • Photo Credit
    Michal Bogár; Archives of Architecture Department HÚ SAV
  • Project Location
    Bratislava, Slovakia
  • Client
    Slovak Art Union (Slovenská výtvarná únia)
  • Project Date
    05 / 2024

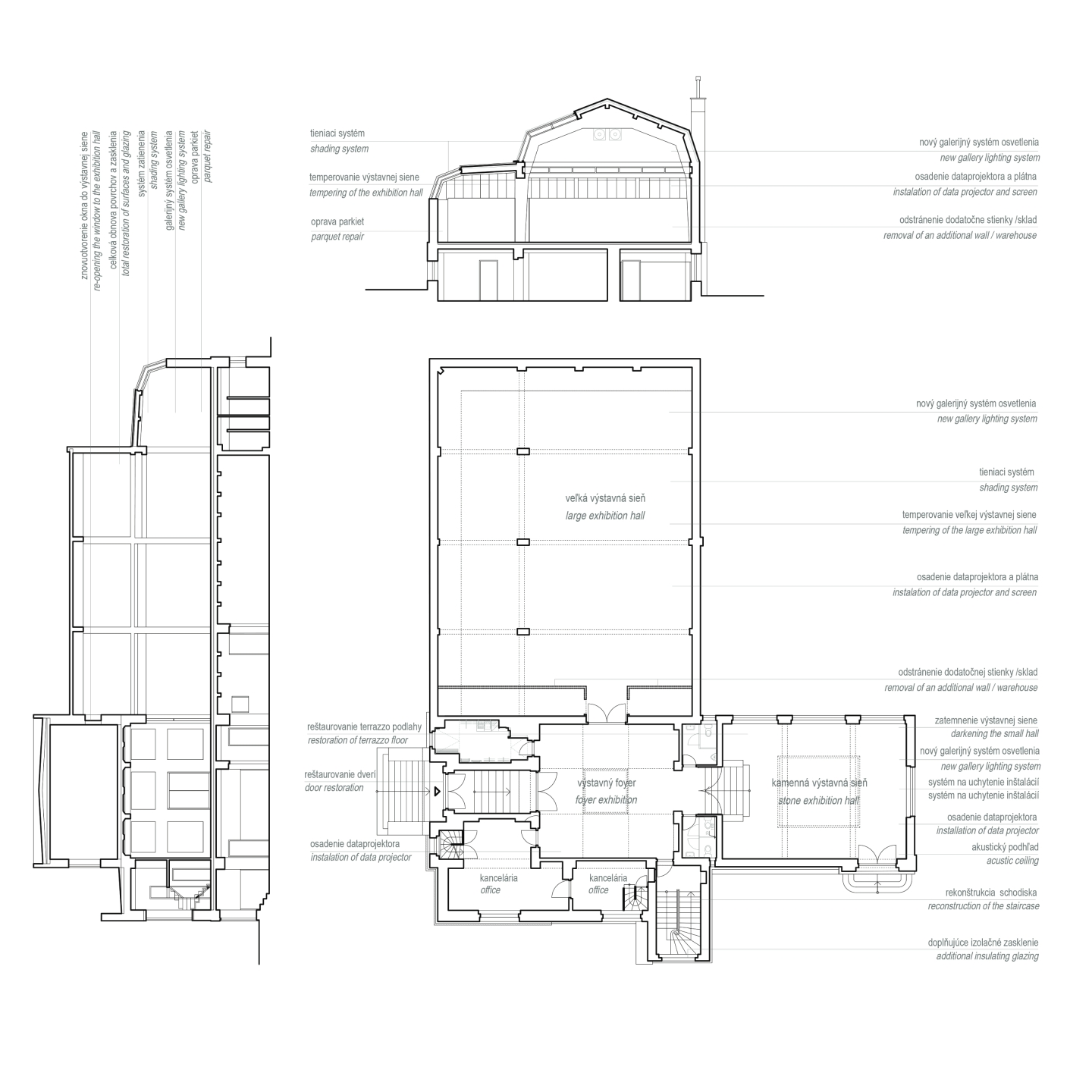
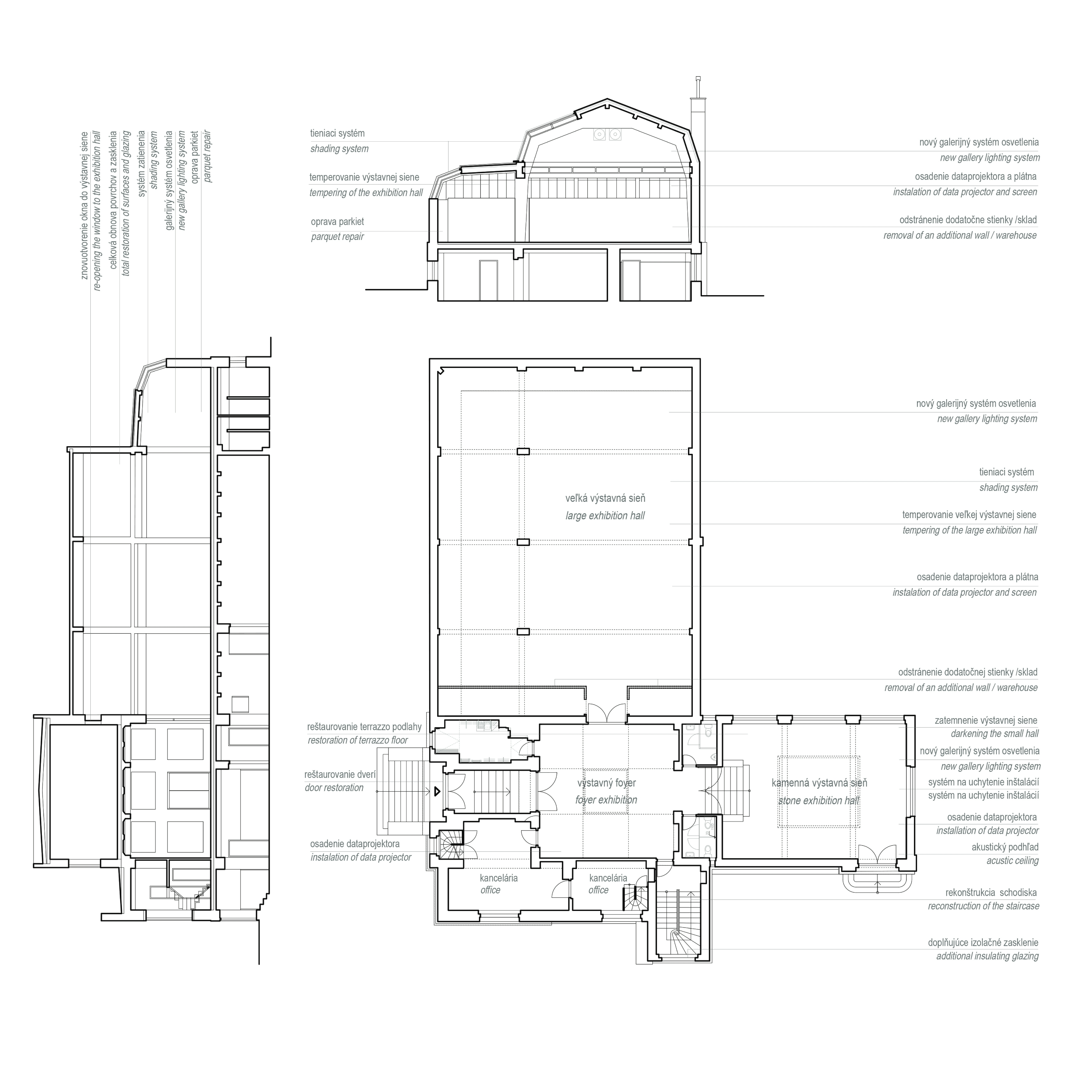
The building of Umelka Gallery (former UBS pavilion) has been used as a gallery space since 1926. The gallery was built in the functionalist era of Czechoslovak architecture and now it is protected as heritage of the modern movement. After several partial renovations, the period 2020-2024 was an important stage for the complex gallery renovation. During this period the original interior spaces and elements from the period of modern movement were restored with respect to the original architectural concept and with minimal necessary contemporary interventions. Both the Large and Small halls were equipped with contemporary shading systems and video projection. New high-quality and economical gallery lighting and other equipment supporting the top quality presentation of art were also installed.
The architects of the interior renovation collaborated with a team of specialists, among others with a methodologist from the field of monument protection, with researchers and restorers and others. This team discovered and presented several findings as the original details, colors of the walls and of the plastic decoration of the ceilings in entrance foyer.

Other prizes
BIG SEE Architectural Award 2024 CE-ZA-AR Architectural Award Nomination 2022




BLT Built Design Awards 2026
Privacy Overview

This website uses cookies so that we can provide you with the best user experience possible. Cookie information is stored in your browser and performs functions such as recognising you when you return to our website and helping our team to understand which sections of the website you find most interesting and useful.