JOIN BLT AWARDS 2026

 

SIMPLIFIED HIGH-RISE HOUSING AT CITY EDGE

  • Prize
    Honorable Mention in Architectural Design / Residential
  • Design Company
    Atelier Yao
  • Lead Designer
    Yinzhu Yao
  • Interior Designer
    Yinzhu Yao
  • Photo Credit
    Yinzhu Yao
  • Project Location
    Zurich, Switzerland

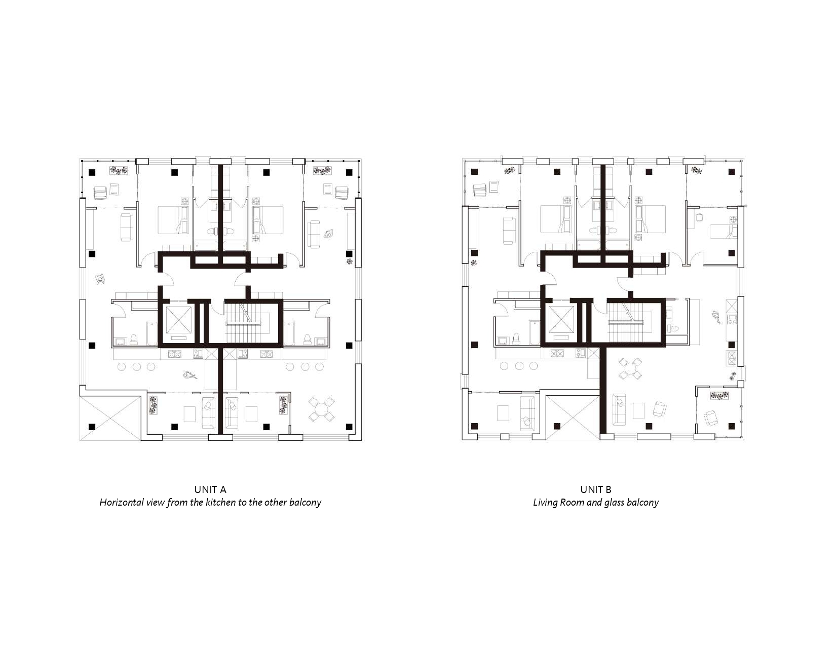
The building is strategically serving as a gateway between the Zurich city and suburban area, and echoing the architectural heritage of the old town. Together with its surrounding high-rises, the building forms a prominent focal point above the railway station. Given the constraints of the limited site, the design focuses on achieving a balance between simplicity in form and comfort in living. The architectural approach is streamlined, ensuring that the building integrates harmoniously with its surroundings while while providing a modern, comfortable living experience for its residents.




BLT Built Design Awards 2026
Privacy Overview

This website uses cookies so that we can provide you with the best user experience possible. Cookie information is stored in your browser and performs functions such as recognising you when you return to our website and helping our team to understand which sections of the website you find most interesting and useful.