JOIN BLT AWARDS 2026

 

Academy for Global Citizenship

  • Prize
    Honorable Mention in Architectural Design / Educational
  • Design Company
    SMNG A Ltd. with Farr Associates Architecture & Urban Design
  • Lead Designer
    SMNG A Ltd.
  • Design Team
    Todd Niemiec, Chey Hsiao, Angel Valtierra, Len Sciarra, Doug Farr
  • Architecture Firm
    SMNG A Ltd. (AOR) with Farr Associates Architecture & Urban Design (Assoc. Architect)
  • Interior Designer
    SMNG A Ltd. with Farr Associates Architecture & Urban Design
  • Lighting Design
    dbHMS
  • Construction Company
    Power Construction
  • Photo Credit
    Tom Rossiter, FAIA
  • Project Location
    Chicago, IL
  • Client
    Cultivate Collective
  • Project Date
    2023

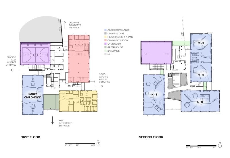
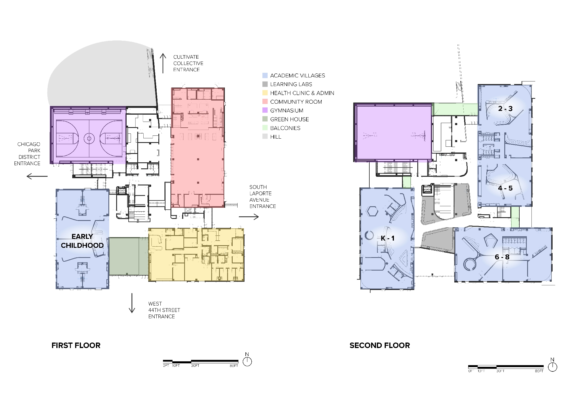
The Academy for Global Citizenship (AGC) is a non-profit public PreK-8 charter school housing a community-based health center, a Head Start center, teaching kitchens, and a three-acre urban farm with fresh food market. AGC reimagines the education model by embracing a pedagogy of self-directed experiential learning, emphasizing relationship-driven environments beyond traditional classrooms. The building embodies AGC’s mission of earth stewardship, physical connection to nature, community engagement, health, and wellness. Upon entering, occupants are immersed in a two-story greenhouse leading to a central gathering space, surrounded by learning villages equipped with individual teaching kitchens and wonder labs for unique breakout activities. The 71,000 sf learning laboratory is the largest Phius-Certified School in the world and is in the final steps of becoming Living Building Challenge-certified. The building is all-electric and designed for climate resiliency with battery back-up and achieves net-positive energy with a geothermal heat-pump system for heating and cooling via radiant slab, energy recovery ventilation, and a super-insulated air-tight building envelope.




BLT Built Design Awards 2026
Privacy Overview

This website uses cookies so that we can provide you with the best user experience possible. Cookie information is stored in your browser and performs functions such as recognising you when you return to our website and helping our team to understand which sections of the website you find most interesting and useful.