JOIN BLT AWARDS 2026

 

Casa del Este

  • Prize
    Honorable Mention in Architectural Design / Sustainable and Energy Saving
  • Design Company
    JVL Architects
  • Lead Designer
    Jesus Eduardo Velazco
  • Design Team
    Jesus Eduardo Velazco, Daniel Leos, Andrea Ramos, César Uscanga, José Tavizon y Nadia Caro.
  • Architecture Firm
    JVL Architects
  • Interior Designer
    Mariana Cabrera
  • Lighting Design
    JVL Architects
  • Construction Company
    JVL Architects
  • Photo Credit
    Cesar Bejar
  • Project Location
    Los cabos, Baja California Sur
  • Project Date
    2025
  • Project Link

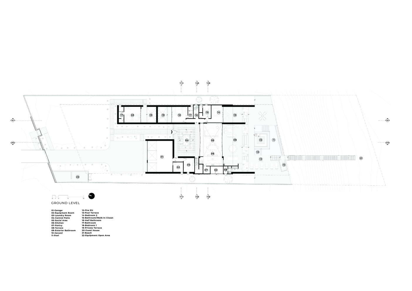
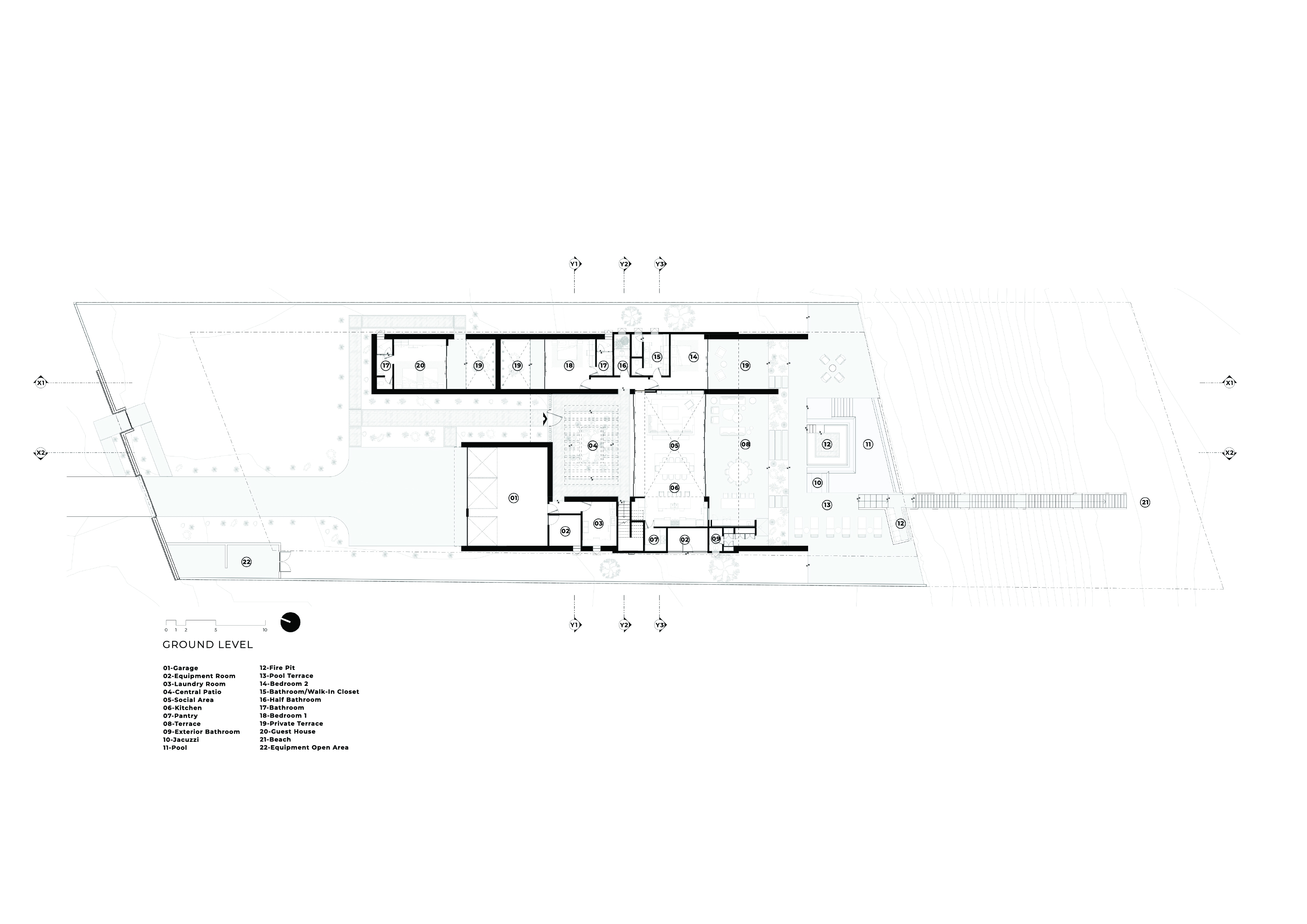
The house is a self-sufficient, beachfront residential retreat in Cabo del Este, Mexico. The house emerges from the desert with rammed earth walls built from local soil, employing thermal mass to stabilize interior temperatures while maximizing passive cooling and solar control. Entirely off-grid, it operates on solar energy and autonomous water treatment systems, supported by drought-tolerant landscaping that reduces consumption and reinforces integration with the arid environment.The project emerged from a close dialogue with the clients and a primary objective to integrate the lifestyle of a contemporary family from Alaska that balances functional efficiency, environmental responsibility, interior-exterior design with high aesthetic value.Inspired by traditional Mexican patios, the central courtyard is designed around a native torote tree that becomes the heart of the home, providing natural light, shade, cross ventilation, clean views, while articulating the transition between social and private spaces. The material palette—earth, concrete, stone, and oak—balances solidity and warmth, generating an atmosphere of calm that dissolves boundaries between architecture and landscape.




BLT Built Design Awards 2026
Privacy Overview

This website uses cookies so that we can provide you with the best user experience possible. Cookie information is stored in your browser and performs functions such as recognising you when you return to our website and helping our team to understand which sections of the website you find most interesting and useful.