JOIN BLT AWARDS 2026

 

Ecotone

  • Prize
    Jury's Favorite in Architectural Design - Others architectural projects
  • University
    The University of Jordan
  • Lead Designer
    Bushra Ateyyeh
  • Project Location
    Amman, Jordan

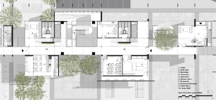
Ecotone is a prototype for food production in urban areas, which enables the development of a local, sustainable, and resilient food system that integrates the latest technologies to make urban farming a more productive and engaging process.
The design process was based on the exploration of the relationship between human and non-human entities from a post-humanistic perspective, which does not completely exclude Anthropocene, but rather surpasses it.
The project offers different methods of urban farming:
1. U-Pick Farm. Uses the traditional way of planting in soil.
2. The Grow Room. Uses hydroponics which involves growing plants without soil by using water based mineral nutrient solutions. And it saves between 70-90% of water.
3. The Farm Pods. A mobile prefabricated kinetic pod that moves continuously to maintain optimum growing conditions for the crops inside the pod. Uses aeroponics which is a method of growing plants in an air or mist environment. It can reduce water usage by 98%.
The project also aims to redevelop and revive the brownfields of Amman to create breathing spaces within the existing fabric of the city.




BLT Built Design Awards 2026
Privacy Overview

This website uses cookies so that we can provide you with the best user experience possible. Cookie information is stored in your browser and performs functions such as recognising you when you return to our website and helping our team to understand which sections of the website you find most interesting and useful.