JOIN BLT AWARDS 2026

 

Oasis Medicare Clinic

  • Prize
    Jury's Favorite in Interior Design - Institutional
  • University
    Cape Peninsula University of Technology
  • Lead Designer
    Jaime Scholz
  • Project Location
    Cape Town
  • Project Date
    May 2022

The primary care clinic focuses on wellness visits, physicals, vaccinations, screenings for illness, and
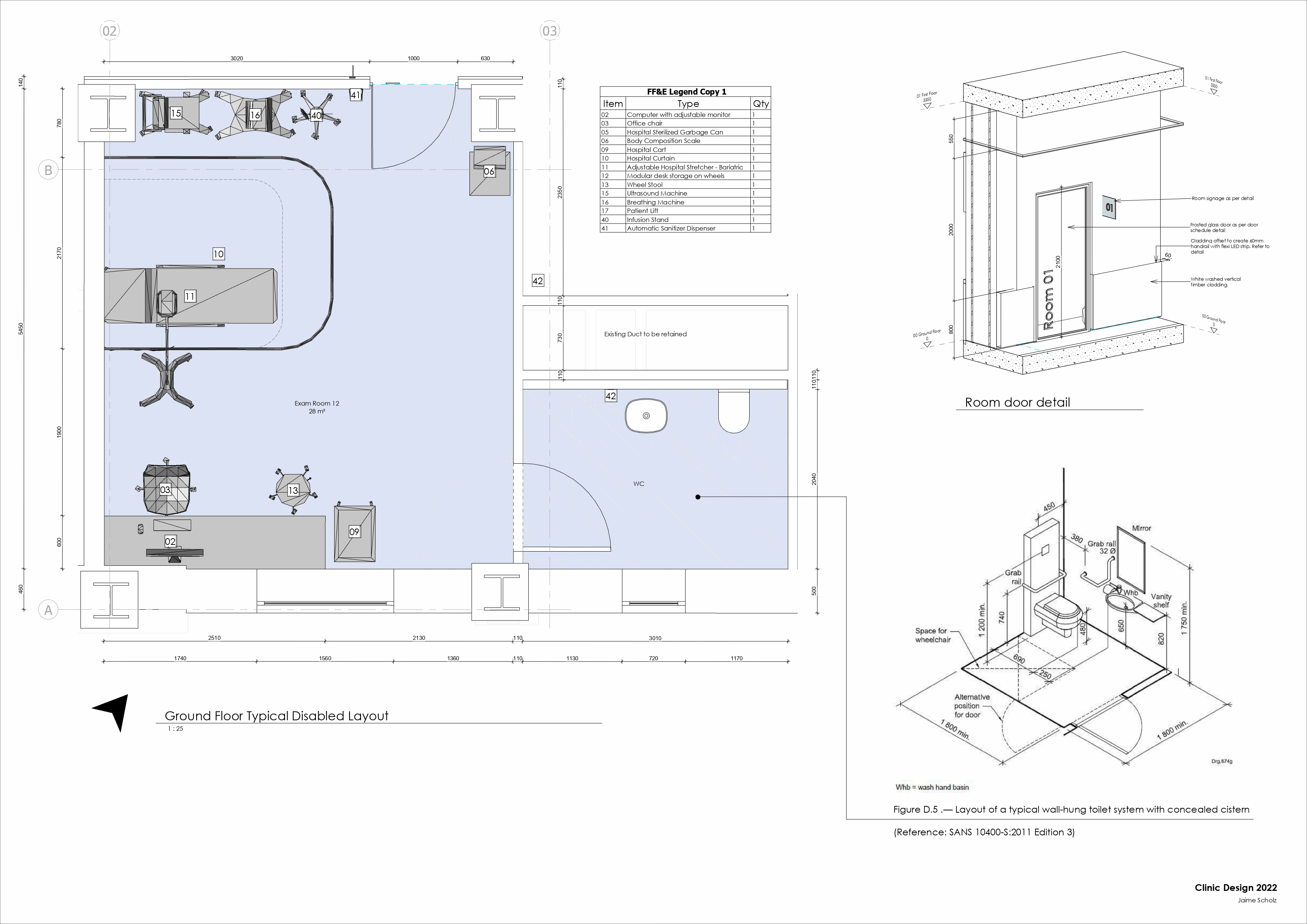
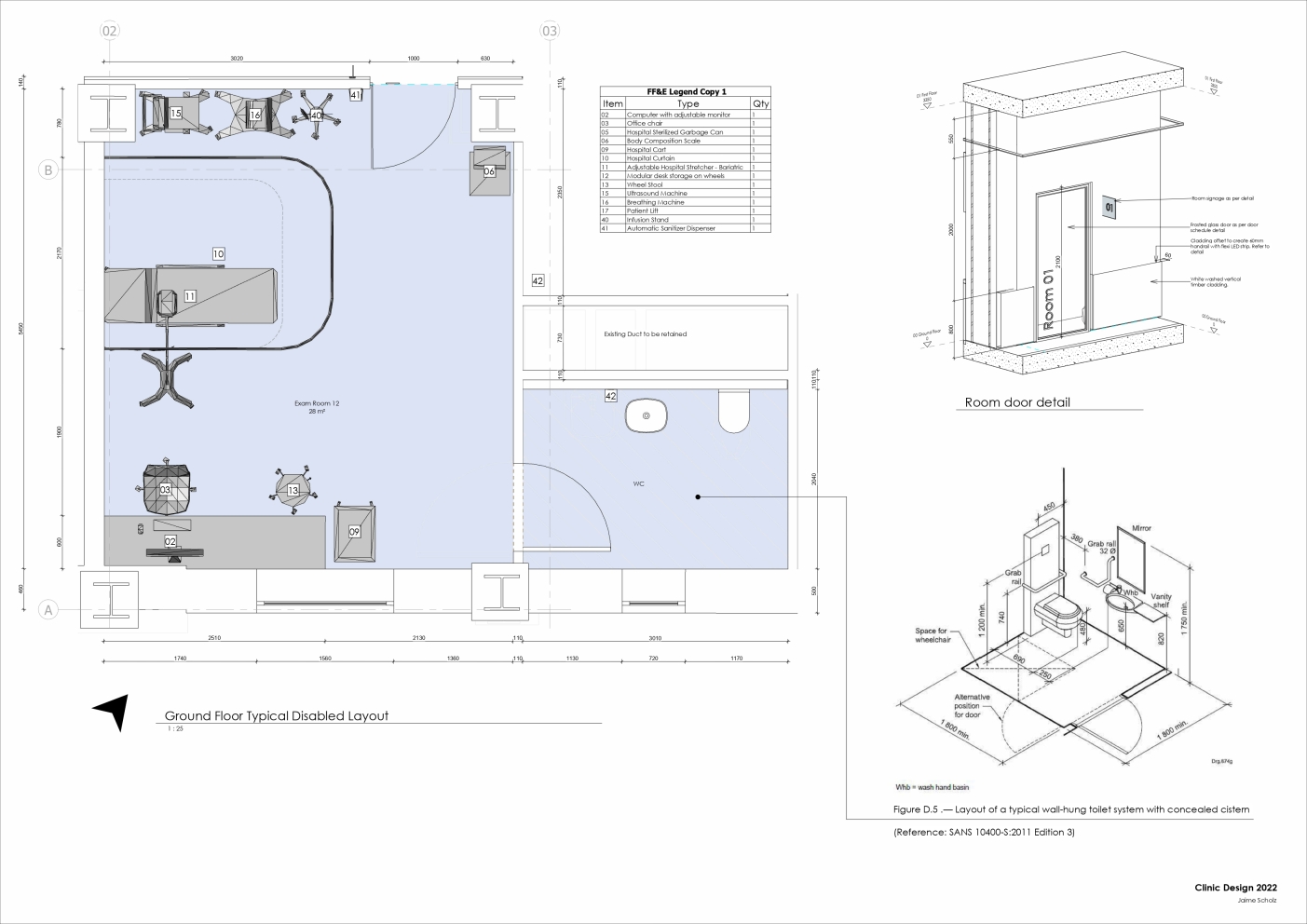
acute illness and/or injury care for all patients With a strong focus on an inclusive design we ensured specialized kitted examination rooms for pediatric, bariatric, disabled, elderly and the general
patient The flexible special design allows for growth in the clinic We aimed to be environmentally conscious and reuse or refurbish the existing walls instead of demolishing and rebuilding.

The spatial design concept was initiated with the idea to maximize usable space without sacrificing the already gloomy hallway. Together with the additional waiting area and pause seating, it not only create a more assessable space but shortens the long hallway. The
Frosted glass doors to examination rooms allow natural light into the hallway All materials in the clinic are high quality durable and easy to clean Most of the furniture and equipment is sourced from local South African suppliers/manufacturers. This allows the clinic to have a spa-like feel creating a sense of comfort and well being for all patients.




BLT Built Design Awards 2026
Privacy Overview

This website uses cookies so that we can provide you with the best user experience possible. Cookie information is stored in your browser and performs functions such as recognising you when you return to our website and helping our team to understand which sections of the website you find most interesting and useful.