JOIN BLT AWARDS 2026

 

Oratorio NSM

  • Prize
    Jury's Favorite in Architectural Design - Religious and Spiritual
  • Design Company
    Jose Lombana Arquitectos
  • Lead Designer
    Jose Lombana
  • Architecture Firm
    Jose Lombana Arquitectos
  • Interior Designer
    Jose Lombana Arquitectos
  • Lighting Design
    Jose Lombana Arquitectos
  • Construction Company
    Jose Lombana Arquitectos
  • Photo Credit
    Diana Arnau, Arturo Arrieta
  • Project Location
    Mexico City
  • Client
    Colegio Northridge
  • Project Date
    2021

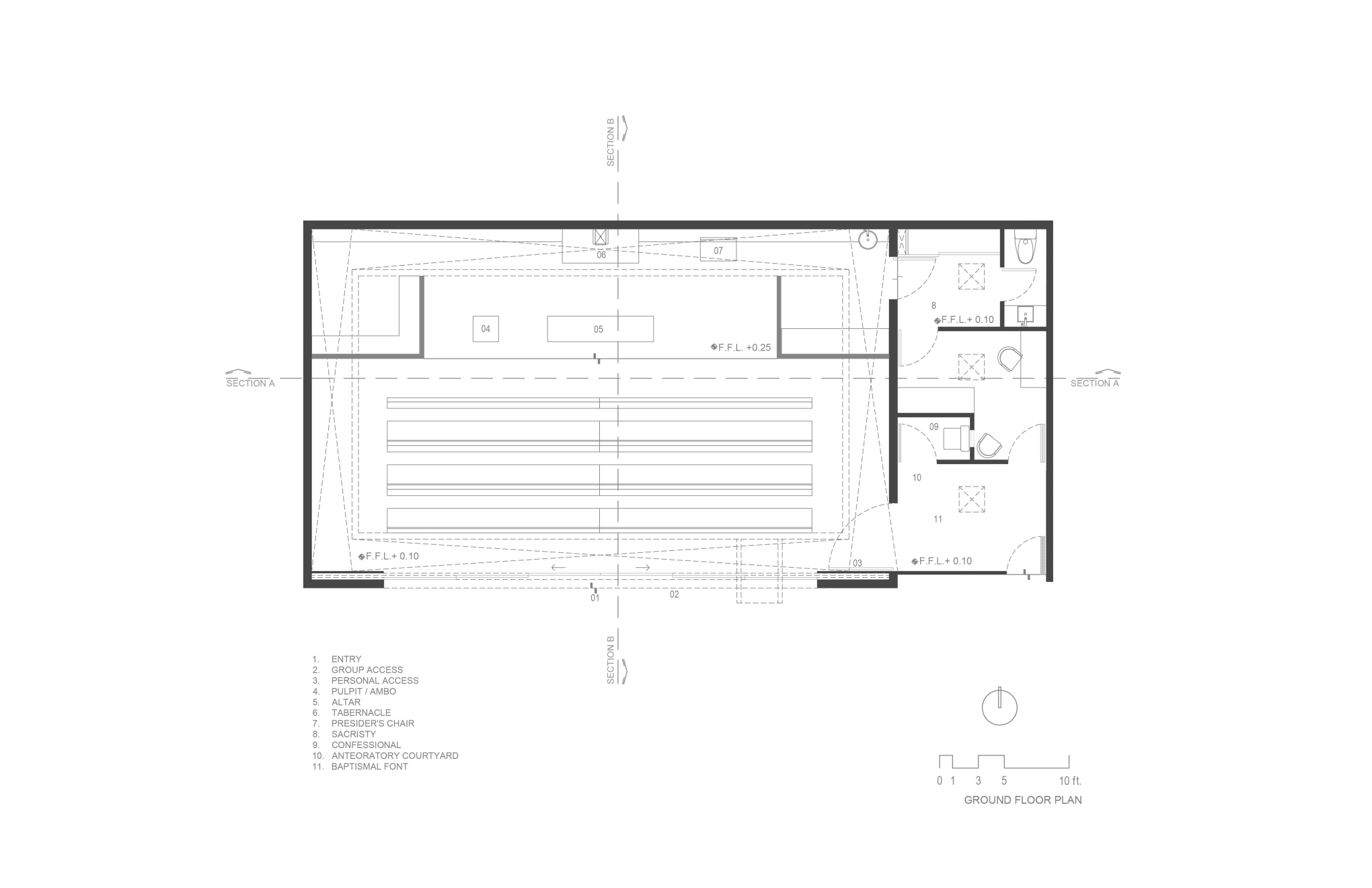
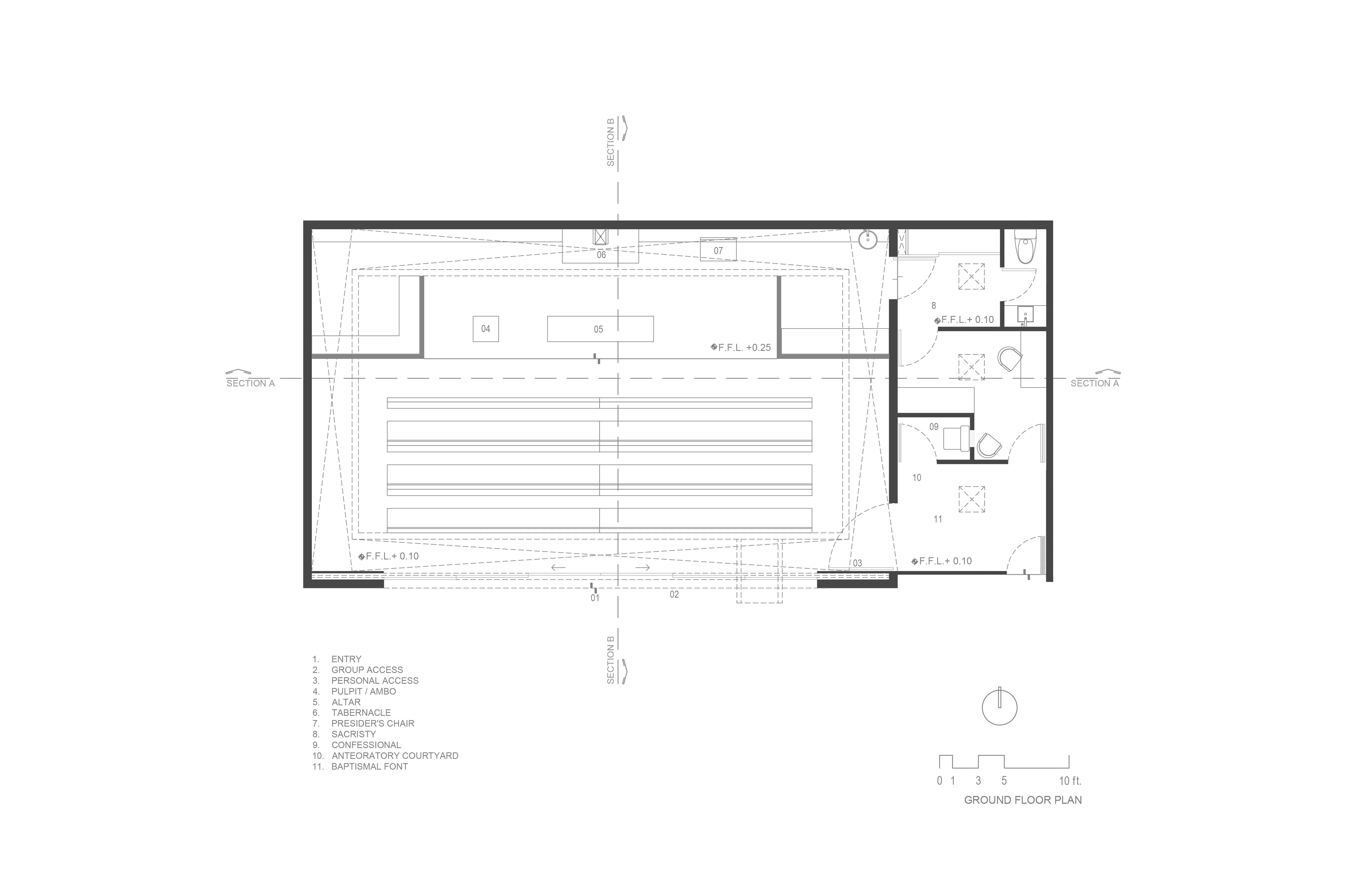
This religious project in Mexico City it´s located in a Catholic elementary school for children is simple but elegant, reflecting in its design and materiality, the values promoted by this place of prayer; it also highlights the light as a symbolic element and protagonist over the simplicity of the environment.

The purpose of this design is to dialogue in a more contemporary way with the youth of the school, seeking to attract them to spirituality in a space full of peace and a very human scale that invites reflection.

The facade of this one is in perfect divine proportion since the entrance is in a ratio of thirds with respect to the whole volume.

The enclosure is bathed with zenithal light thanks to double walls that function as a suspended inscribed cube, creating a perimeter span, reinterpreting a baldachin of an ancient catholic temple, generating a change of proportions and chiaroscuro.

This project combines in an elegant, discreet, and very respectful way, materials, textures, lighting, and scales, to achieve a comfortable and introspective experience, providing the necessary mysticism to the space so that the youth who attend the building feel closer to God.




BLT Built Design Awards 2026
Privacy Overview

This website uses cookies so that we can provide you with the best user experience possible. Cookie information is stored in your browser and performs functions such as recognising you when you return to our website and helping our team to understand which sections of the website you find most interesting and useful.